Version: 8.22.4Navigation überspringen
16 €
Immowelt logo

Laden zur Miete
16 Euro pro Quadratmeter

TWENTYONE - REALISE YOUR VISION - CENTRAL HUB

Das TwentyOne besteht insgesamt aus sechs sogenannten "Hubs", welche gesamthaft als Ökosystem wirken. Durch flexible Raumkonzepte, innovative Technik, bedarfsorientierte Infrastruktur sowie weitere moderne Angebote wird aus einem Office-Park ein lebendiges Business-Quartier. Einerseits gegliedert nach Themenbereichen sorgen die Hubs zum Beispiel durch ihre Mischnutzungsmöglichkeit in den Bereichen Versorgung, Shopping, Event und Office für fließende Übergänge zwischen Berufsleben, Alltag und Freizeit. Jeder Hub leistet seinen Beitrag zu einem perfekt funktionierenden und diversen Gesamt-Ensemble! Innovativ, ökonomisch und ökologisch in Planung, Umsetzung und Betrieb!

Der auf 9.800 m² Grundfläche entstehende Central Hub bietet neben innovativen Office-Konzepten, wie zum Beispiel Co-Working-Spaces und geteilten Besprechungsräumen mit flexiblen Trennwänden, auch Laborflächen sowie Schulungs- und Konferenzflächen. Die Erdgeschoßzone punktet mit einer intensiven Mischnutzung für einen Showroom oder Verkaufsflächen.

Die überdachte Ladezone ist exklusiv für die Gewerbefläche nutzbar und mit Rolltoren ausgestattet. Hier passen bis zu sieben Fahrzeuge der Größe "Sprinter mit Aufbau" hinein. Die Entladung kann ebenerdig erfolgen.

Der Central Hub besticht vor allem durch seine ausgezeichnete Sichtbarkeit und ist somit für jegliche Unternehmen reizvoll, die von Auslageflächen profitieren. Ein großzügig begrünter Innenhof wird als stimmungsvolle Wohlfühloase gestaltet und bietet ebenso wie die große, öffentliche, grün gestaltete Dachterrasse den idealen Raum für eine Pause vom Büroalltag.

- 28.000 m² Büro, Co-Working & Laborflächen
- 2.200 m² Retail & Gastronomie
- 2.000 m² Veranstaltungs- & Konferenzräume
- 2.000 m² Gewerbe & Last Mile Logistik

Merkmale

  • 2 Stellplätze: Garage, Tiefgarage
  • voll klimatisiert

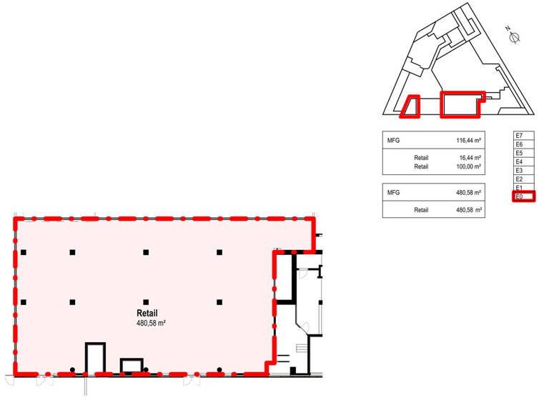
Grundrisse

Grundrisse
1 / 1

Realisiere Dein Projekt

Bausubstanz und Energie

Heizwärmebedarf (HWB)

B

Gesamtenergieeffizienz (fGEE)

A+
Immowelt logo

Mietkosten

Gesamtmiete
12.041,42 €
Nettokaltmiete
16 €/m²
7.689,28 €
Betriebskosten
2.345,23 €
Nicht in Gesamtmiete enthalten
Miete pro Stellplatz
127 €
Provision für Mieter
3 Bruttomonatsmieten zzgl. 20% USt.
Kaution
3-6 BMM
Weitere Preisinformationen
1 Garagenstellplatz, Miete: 95,00 EUR
1 Tiefgaragenstellplatz, Miete: 127,00 EUR
Nettokaltmiete: 7.689,28 EUR

Lage

address-icon
Wien (1210)
Der Anbieter hat die genaue Adresse nicht freigegeben

Weitere Informationen

Sonstiges Wir weisen darauf hin, dass zwischen dem Vermittler und dem Auftraggeber ein wirtschaftliches Naheverhältnis besteht. Der Vermittler ist als Doppelmakler tätig. Stichworte Nutzfläche: 480,58 m², Bundesland: Wien

Weitere Services

Lust auf eine Besichtigung?
Eine Frage zur Immobilie?
Nachricht hinzufügen
Mit der Nutzung der oben angegebenen Telefonnummer oder durch Klicken auf „Kontaktieren“ akzeptierst Du die Allgemeinen Nutzungsbedingungen, denen Du jederzeit widersprechen kannst. Weitere Informationen zum Datenschutz

Über den Anbieter

Prinz-Eugen-Strasse 8-10, 1040 WIEN
partner badge
Partnerschaft
Herr Christoph Paul
Herr Christoph PaulDein Kontakt
Online-ID: 2kfqr5p
Referenznummer: R2501166
EHL Gewerbeimmobilien GmbH
EHL Gewerbeimmobilien GmbH
Nachricht hinzufügen
Mit der Nutzung der oben angegebenen Telefonnummer oder durch Klicken auf „Kontaktieren“ akzeptierst Du die Allgemeinen Nutzungsbedingungen, denen Du jederzeit widersprechen kannst. Weitere Informationen zum Datenschutz
Wie zufrieden bist du mit dieser Seite (nicht mit der Immobilie selbst)?