Version: 8.24.1Navigation überspringen
525.000 €
14.684 m² Grundstück
Immowelt logo

Grundstück zum Kauf • provisionsfrei
525000 €
35,75 €/m²
14.684 m² Grundstück

Finca-Baugrundstück mit Baugenehmigung bei Llucmajor, Mallorca

Zum Kauf steht ein außergewöhnliches Baugrundstück in Llucmajor, Mallorca, das mit einer gültigen Baugenehmigung für eine stilvolle Finca mit Pool ausgestattet ist. Die strategische Lage, nur 25 Minuten von Palma und fünf Minuten von Llucmajor entfernt, bietet sowohl die Ruhe der ländlichen Umgebung als auch die Nähe zu städtischen Annehmlichkeiten. Das großzügige, ebene Grundstück von 14.684 m² ist bequem über Asphaltstraßen erreichbar und bietet einmalige Aussichten auf den Galdent sowie den Randa-Berg. An der Grundstücksgrenze ist bereits Strom vorhanden und es besteht eine Lizenz für einen eigenen Brunnen.

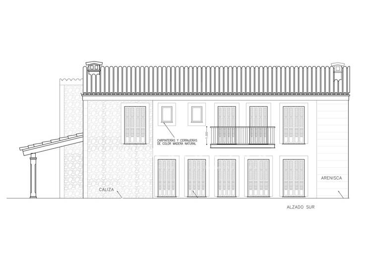
Die geplante Finca, deren Bau Sie unmittelbar beginnen können, wurde von einem renommierten Architekten entworfen und besticht durch ihre klassische Südausrichtung, Steinfassaden und große Fenster, die für ein helles und luftiges Ambiente sorgen. Der Entwurf sieht eine Gesamtwohnfläche von etwa 285 m² und eine Nutzfläche von 353 m² vor. Im Erdgeschoss befindet sich ein großzügiger Wohn- und Essbereich mit offener Küche, einer Kücheninsel, einem Gäste-WC, einer Speisekammer und einem Abstellraum. Darüber hinaus verfügt das Erdgeschoss über ein Doppel-Schlafzimmer mit eigenem Bad.

Das Obergeschoss bietet drei weitere Doppel-Schlafzimmer, jeweils mit eigenem Bad en Suite, und gewährleistet höchsten Wohnkomfort. Ein Teil des Hauses ist unterkellert und umfasst einen Hauswirtschaftsraum sowie einen Technikraum. Des Weiteren gehört ein Poolhaus mit Bad (7m²) sowie eine "casita" (11m²) zu den Annehmlichkeiten des Anwesens. Das gesamte Haus ist von teilweise überdachten Terrassen (insgesamt 50 m²) umgeben, die alle Himmelsrichtungen abdecken und zu einem entspannten Lebensstil einladen. Ein Kamin sorgt zusätzlich für behagliche Wärme und eine besondere Atmosphäre an kühleren Abenden.

Der Pool, mit einer Größe von 10x4 m, ergänzt das luxuriöse Lebensgefühl dieses besonderen Anwesens. Durch die hervorragende Planung und die Möglichkeit zur individuellen Gestaltung, erweisen sich dieses Baugrundstück und das darauf entstehende Traumhaus als ideale Investition in eine Zukunft voller Komfort und Lebensqualität auf der wunderschönen Insel Mallorca.

Eine Gelegenheit in erstklassiger Lage - ein perfekter Raum für diejenigen, die Exzellenz im Wohnen und Investieren schätzen.

Merkmale

  • Bezug: Immediately
  • 14.684 m² Grundstück
  • Keller
  • Balkon
  • Garten
  • Terrasse
  • Bad mit Dusche

Grundrisse

Grundrisse
1 / 5

Realisiere Dein Projekt

Bausubstanz und Energie

Möchtest du Details zum Energieverbrauch?info_energy_calculation-icon
Immowelt logo

Preisdetails

Kaufpreis
525000 €
35,75 €/m²
Provision für Käufer
provisionsfrei

Lage

address-icon
Llucmajor (07609)
Der Anbieter hat die genaue Adresse nicht freigegeben
Llucmajor ist eine historische Stadt im malerischen Süden der Insel, etwa 21 Kilometer südöstlich von Palma de Mallorca gelegen. Hervorzuheben sind der ländliche Charme und die Nähe zum wunderschönen, kilometerlangen Naturstrand Es Trenc. Dank der guten Erreichbarkeit über die MA-19-Autobahn ist man schnell am Flughafen und in Palma.

Die Stadt dient als Zentrum der gleichnamigen Gemeinde und zeichnet sich durch ihre traditionelle mallorquinische Architektur und ihr reiches kulturelles Erbe aus. Umgeben von fruchtbarem Ackerland und Weinbergen ist Llucmajor für seine landwirtschaftliche Produktion bekannt. Die Stadt verfügt über eine charmante Altstadt mit engen Gassen, historischen Kirchen und malerischen Plätzen.

Genießen Sie alle Vorzüge Mallorcas und die einzigartige Natur...

Mallorca ist ein Paradies für alle, die ein Leben im Einklang mit der Natur und dem Zauber des mediterranen Lebensstils genießen möchten.

Auf dem Land mit absoluter Privatsphäre und doch nah am Meer. Der Süden Mallorcas bietet eine ganzjährig gut funktionierende Infrastruktur, ein reichhaltiges Kulturangebot, schöne Wochenmärkte, gehobene Gastronomie und viele Möglichkeiten für Hobby, Sport und Freizeit sowie die Nähe zu den schönsten Sandstränden und herrlichen Buchten des Mittelmeers mit glasklarem, türkisblauem Wasser.

Das Königreich Spanien ist ein sozialer und demokratischer Rechtsstaat - Mallorca bietet eine hervorragende medizinische Versorgung, ein hohes kulturelles Niveau, eine wunderschöne Natur und ein angenehmes Klima. Vorteilhaft sind auch die ganzjährig günstigen Flugverbindungen mit kurzen Flugzeiten innerhalb Europas.

Weitere Informationen

Sonstiges Wir von Kensington bieten Ihnen einen umfassenden Service rund um den Immobilienerwerb. Gerne können wir Ihnen namhafte Architekten und Bauunternehmen empfehlen, um Ihre Wünsche professionell umzusetzen.

Bitte haben Sie Verständnis, dass alle hier gemachten Angaben auf Informationen beruhen, die uns von Dritten zur Verfügung gestellt wurden. Für Richtigkeit, Vollständigkeit und Aktualität können wir daher keine Gewähr übernehmen. Zwischenverkauf, Preisänderungen und Irrtümer bleiben vorbehalten. Die in diesem Exposé enthaltenen Flächen- und Ausstattungsangaben dienen lediglich der unverbindlichen Orientierung.

Kontaktieren Sie uns jederzeit für weitere Informationen oder einen Besichtigungstermin - wir freuen uns, Sie bei der Immobiliensuche begleiten und beim Kauf oder Verkauf beraten zu dürfen.

Bitte finden Sie dieses und weitere attraktive Objekte auf der Homepage unter https://www.kensington-llucmajor.com

KENSINGTON South Mallorca - https://kensington-international.com/de/de/mallorca/llucmajor/expose/finca-baugrundstueck-mit-baugenehmigung-bei-llucmajor-mallorca Stichworte Stellplatz vorhanden, Wohnfläche: 285,00 m², Nutzfläche: 353,00 m², Anzahl der Schlafzimmer: 4, Anzahl der Badezimmer: 5, Anzahl Balkone: 1, Anzahl Terrassen: 4, Bundesland: Mallorca, 3 Etagen

Weitere Services

Lust auf eine Besichtigung?
Eine Frage zur Immobilie?
Nachricht hinzufügen
Mit der Nutzung der oben angegebenen Telefonnummer oder durch Klicken auf „Kontaktieren“ akzeptierst Du die Allgemeinen Nutzungsbedingungen, denen Du jederzeit widersprechen kannst. Weitere Informationen zum Datenschutz

Über den Anbieter

Konstanzerstrasse 37, 8274 TÄGERWILEN
partner badge
Partnerschaft
Herr Oliver GläserDein Kontakt
Online-ID: 2384EMA9UT3G
Referenznummer: KMSL07055
KENSINGTON Finest Properties International AG
KENSINGTON Finest Properties International AG
Bewertung: 4,8 von 5 Sternen
Nachricht hinzufügen
Mit der Nutzung der oben angegebenen Telefonnummer oder durch Klicken auf „Kontaktieren“ akzeptierst Du die Allgemeinen Nutzungsbedingungen, denen Du jederzeit widersprechen kannst. Weitere Informationen zum Datenschutz
Wie zufrieden bist du mit dieser Seite (nicht mit der Immobilie selbst)?