Version: 8.22.6Navigation überspringen
147.400 €
670 m² Grundstück
Immowelt logo

Grundstück zum Kauf • provisionsfrei
147400 €
220 €/m²
670 m² Grundstück

Baugrundstück im Neubaugebiet Groß Wittensee

Herzlich willkommen in Groß Wittensee! Seit Sommer 2023 entsteht ein Neubaugebiet in diesem wunderschönen Ort am Wittensee. Damit erhalten Bauinteressentinnen und Bauinteressenten die Möglichkeit ihre eigenen vier Wände in dieser gesund wachsenden Gemeinde zu errichten.

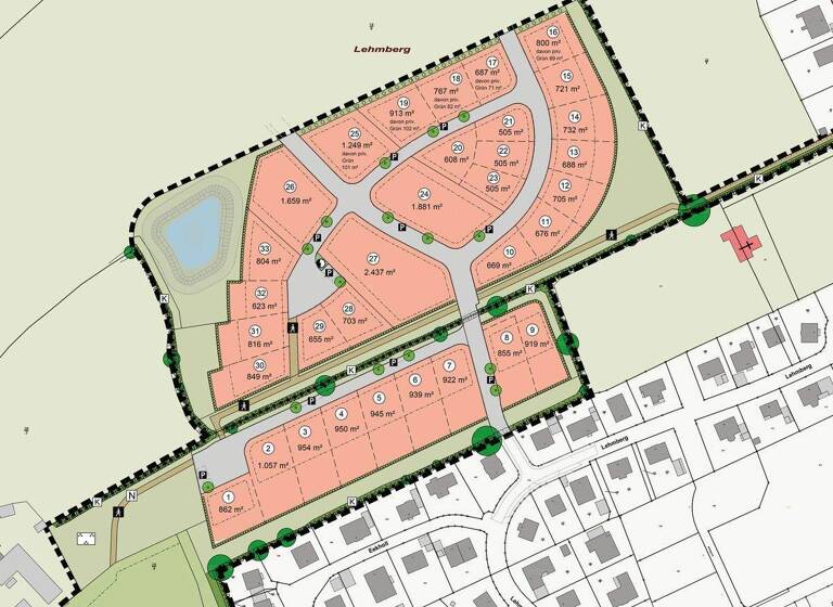
In Groß Wittensee wohnen derzeit über 1.300 Menschen. Auf dem 6,8 Hektar großen Neubaugebiet wurden 33 Baugrundstücke unterschiedlicher Größen geben, für Einfamilienhäuser, Doppelhäuser, seniorengerechte Bungalows und Geschosswohnungsbau. Der Ort erfüllt durch seine hervorragende Lage und Verkehrsanbindung sowie den hohen Freizeitwert am Wasser viele Kriterien, die an einen modernen und lebenswerten Wohnstandort gestellt werden.

Die Vermarktung fast aller Baugrundstücke ist abgeschlossen, dieses Grundstück ist nach längerer Phase der Reservierung wieder frei geworden und somit eines der letzten beiden Grundstücke. Für eine Bebauung zulässig sind Bungalows mit einem Vollgeschoss und einem Dachgeschoss bis zu einer maximalen Gebäudehöhe von 7,00m. Die GRZ liegt bei 0,3.

Das Baugrundstück wird provisionsfrei und ohne Architekten-/Haus- und Finanzierungsbindung verkauft. Im Vorwege haben wir jedoch für Sie zu einem namhaften Bauunternehmen und einem Finanzierungsexperten aus der Region Kontakt aufgenommen, um Ihnen konkret aufzeigen zu können, welche Haustypen zu welchen Finanzierungskonditionen vor Ort möglich sind. Wir übermitteln Ihnen auf Wunsch gern die Anbieter.

Nähere Informationen zu freien Grundstücken, Preisen und vielem mehr erhalten Sie auf Anfrage!

Merkmale

  • Bezug: sofort
  • 670 m² Grundstück
  • voll erschlossen
Die Grundlage stellt der rechtsgültige Bebauungsplan Nr. 17 der Gemeinde Groß Wittensee.

Für eine Bebauung zulässig sind Bungalows mit einem Vollgeschoss und einem Dachgeschoss bis zu einer maximalen Gebäudehöhe von 7,00m. Die GRZ liegt bei 0,3. Weitere Details können Sie unseren Vermarktungsunterlagen entnehmen; wir übersenden auch den gültigen B-Plan.

Im Vergleich zu anderen Neubaugebieten werden in Groß Wittensee die Kosten für die Anschlussarbeiten ( hier enthalten im ANSCHLUSSPAKET) und die Wärmeversorgung/ Heizung (hier enthalten im WÄRMEPAKET) um ca. 20.000 € geringer als aktuell üblich angeboten werden können. Der Grundstückspreis werden daher im Endeffekt durch das ANSCHLUSSPAKET und das WÄRMEPAKET verringert, denn bei den Preisen für den Quadratmeter Bauland (220 €) sind die zusätzlichen Einsparungen von ca. 30 € bis 40 € je Quadratmeter zu berücksichtigen.

Käufer ersparen sich zudem durch das ANSCHLUSSPAKET diverse Einzelgespräche mit den Anbietern der einzelnen Gewerke, wie z.B. Strom, Trinkwasser, Telekommunikation (Glasfaser), Heizung und Schmutz- und Regenwasser, Bodengutachten.

Zudem kann über das WÄRMEPAKET ein "Kaltes Nahwärmenetz" (Erdwärmepumpe) der Wittenseer Wärmegesellschaft angeboten werden. Dies beinhaltet eine moderne Erdwärmepumpe. Im Preis sind der Anschluss (Bohrung + Sonden) und die Heizung inkl. Installation enthalten. Die Kosten für eine Heizung können Sie somit in vielen Fällen aus den Hauspreisangeboten der Bauträger streichen.

Alle Informationen hierzu erhalten Sie auf Anfrage.

Grundrisse

Grundrisse
1 / 1

Realisiere Dein Projekt

Bausubstanz und Energie

Der Anbieter hat keine Informationen zu Energieverbrauch oder Zustand der Immobilie bereit gestellt.
Immowelt logo

Preisdetails

Kaufpreis
147400 €
220 €/m²
Provision für Käufer
provisionsfrei
Geschätzte Gesamtkosten
147.400 €1
Kaufpreis
147.400 €
1Der angezeigte Wert ist eine automatisch berechnete Schätzung von immowelt.

Lage

address-icon
Groß Wittensee (24361)
Der Anbieter hat die genaue Adresse nicht freigegeben
DIE GEMEINDE GROß WITTENSEE:
Die imposante Wasserfläche des Wittensees mit optimalen Windverhältnissen ist Austragungsort für deutschlandweite Regatten. In Verbindung mit einem kleinen Segelclub ist der See für Wassersportler besonders attraktiv. Das Hügelgelände und die weiten Waldflächen verleihen der Landschaft ihren ganz besonderen Reiz. Dank der hervorragenden Lage des Neubaugebietes können Sie fußläufig Besorgungen und Erledigungen vornehmen. Ein Lebensmittelmarkt, ein Ärztehaus sowie eine Grundschule und eine Kindertagestätte befinden sich in unmittelbarer Nähe. Eine neue Grundschule ist zudem unweit des Neubaugebietes geplant. Auch den Wittensee erreichen Sie von Ihrem Grundstück aus fußläufig. Ergänzt wird all dies durch die gute Verkehrsanbindung nach Kiel (erreichbar in ca. 35 min), Rendsburg und Schleswig. Selbst Hamburg und Flensburg sind durch die günstig gelegene Autobahn A7 schnell erreichbar. Das Baugebiet befindet sich nur etwa 1 km entfernt vom Ortskern. Zum Wittensee sind es ca. 500m Luftlinie. Die Autobahn A7 ist in 6min (8km) erreicht, Eckernförde in 7min (8km).

Weitere Informationen

Stichworte GRZ: 0,3, Bundesland: Schleswig-Holstein, Distanz zum Kindergarten: 0.40, Distanz zur Grundschule: 0.40, Distanz zum Gymnasium: 13.60, Distanz zur Autobahn: 6.50

Weitere Services

Lust auf eine Besichtigung?
Eine Frage zur Immobilie?
Nachricht hinzufügen
Mit der Nutzung der oben angegebenen Telefonnummer oder durch Klicken auf „Kontaktieren“ akzeptierst Du die Allgemeinen Nutzungsbedingungen, denen Du jederzeit widersprechen kannst. Weitere Informationen zum Datenschutz

Über den Anbieter

Kieler Straße 86, 24340 Eckernförde
partner badge
Partnerschaft
Herr Thorben Hofmann
Herr Thorben HofmannDein Kontakt
Online-ID: 2nr4l5g
Referenznummer: 2026-1131-TH
Binko & Hofmann Immobilien GmbH
title
Binko & Hofmann Immobilien GmbH
Nachricht hinzufügen
Mit der Nutzung der oben angegebenen Telefonnummer oder durch Klicken auf „Kontaktieren“ akzeptierst Du die Allgemeinen Nutzungsbedingungen, denen Du jederzeit widersprechen kannst. Weitere Informationen zum Datenschutz
Wie zufrieden bist du mit dieser Seite (nicht mit der Immobilie selbst)?