Version: 8.25.1Navigation überspringen
1.826 €
Immowelt logo

Ladenfläche zur Miete
1.826 €

Zentral gelegenes Lokal in Weiz zur Miete - IDEAL FÜR PIZZERIA

Erfüllen Sie sich Ihren Traum von einer eigenen Pizzeria oder Lokal im Herzen von Weiz!
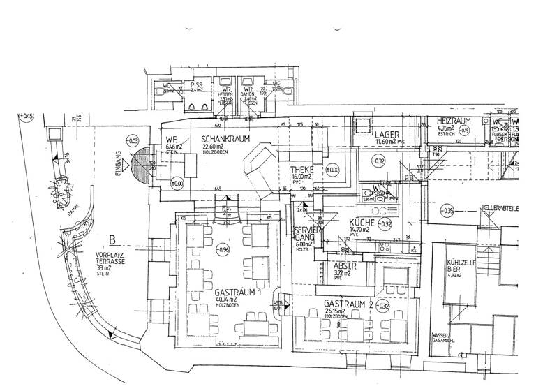
Dieses zentral gelegene Lokal bietet auf ca. 166 m² die ideale Grundlage für Ihr Gastronomieprojekt und überzeugt durch eine durchdachte Raumaufteilung sowie eine hervorragende Lage.

Ausstattung und Räumlichkeiten:

* Schrankraum: Praktischer Stauraum für Ihre Bedürfnisse.
* 2 Gästeräume: Zwei einladende Gästeräume mit insgesamt ca. 67 m² schaffen eine gemütliche Atmosphäre für Ihre Gäste.
* Küche: Die Küche ist im Edelrohbau fertiggestellt und wartet darauf, mit Ihren Geräten ausgestattet zu werden.
* Abstellraum und Lagerraum: Zusätzliche Räume bieten reichlich Platz für Lagerung und Organisation.
* Sanitäreinrichtungen: Separate WCs für Personal und Gäste sorgen für Komfort und Hygiene.

Eine großzügige Außenterrasse mit ca. 33 m² bietet zusätzlichen Platz für Ihre Gäste und lädt zu entspannten Stunden im Freien ein.

_Nutzen Sie diese Gelegenheit und verwirklichen Sie Ihr Gastronomieprojekt in einer erstklassigen Lage von Weiz!_

 

 

 

 

4o

Wir weisen darauf hin, dass zwischen dem Vermittler und dem zu vermittelnden Dritten ein familiäres oder wirtschaftliches Naheverhältnis besteht.

Der Vermittler ist als Doppelmakler tätig.

Infrastruktur / Entfernungen

Gesundheit
Arzt <500m
Apotheke <500m
Krankenhaus <1.000m

Kinder & Schulen
Schule <500m
Kindergarten <500m

Nahversorgung
Supermarkt <500m
Bäckerei <500m
Einkaufszentrum <500m

Sonstige
Bank <500m
Geldautomat <500m
Polizei <500m
Post <500m

Verkehr
Bus <500m
Bahnhof <500m
Flughafen <6.000m

Angaben Entfernung Luftlinie / Quelle: OpenStreetMap

Merkmale

  • Bezug: nach Vereinbarung
  • Gäste-WC
  • Terrasse
  • Kantine
  • Bodenbelag: Fliesen, Parkett, Stein

Grundrisse

Grundrisse
1 / 1

Realisiere Dein Projekt

Bausubstanz und Energie

Heizwärmebedarf (HWB)

C

Gesamtenergieeffizienz (fGEE)

C
  • Zustand der ImmobilieAltbau (bis 1945)
  • HeizungsartZentralheizung
  • EnergieträgerFernwärme
Immowelt logo

Mietkosten

Gesamtmiete inkl. Provision, exkl. MwSt.
2.507,16 €
Nettokaltmiete
1.826 €
Betriebskosten
280,27 €
Heizkosten
120 €
Provision für Mieter
3 Bruttomonatsmieten zzgl. 20% USt.
Kaution
3 Bruttomonatsmieten
Weitere Preisinformationen
Nettokaltmiete: 1.826,00 EUR

Lage

address-icon
Weiz (8160)
Die Birkfelder Straße in Weiz bietet eine hervorragende Lage für Gewerbeimmobilien, insbesondere für Gastronomiebetriebe wie Pizzerien. Hier sind einige Punkte, die die Lage charakterisieren:
1) Zentrale Lage: Die Birkfelder Straße verläuft durch das Zentrum von Weiz und ist eine der Hauptverkehrsstraßen der Stadt. Dies garantiert eine hohe Sichtbarkeit und eine große Anzahl an potenziellen Kunden.
2) Hohe Frequenz: Dank der zentralen Lage und der Nähe zu vielen Geschäften, Büros und öffentlichen Einrichtungen ist die Birkfelder Straße stark frequentiert. Sowohl Fußgänger als auch Autofahrer passieren täglich die Straße, was die Chancen auf Laufkundschaft erhöht.
3) Gute Erreichbarkeit: Die Birkfelder Straße ist leicht mit dem Auto und öffentlichen Verkehrsmitteln zu erreichen. Bushaltestellen befinden sich in unmittelbarer Nähe, was die Anreise für Kunden erleichtert.
4) Umgebung: In der Nähe der Birkfelder Straße befinden sich diverse Geschäfte, Dienstleister und Büros, was ein lebendiges Umfeld schafft. Diese Mischung sorgt dafür, dass sowohl Anwohner als auch Berufstätige zur Kundschaft zählen.
5) Parkmöglichkeiten: Es gibt mehrere Parkmöglichkeiten entlang der Birkfelder Straße und in den umliegenden Straßen. Dies ist besonders wichtig für ein Lokal oder eine Pizzeria, um den Gästen eine bequeme Anreise zu ermöglichen.
6) Attraktive Nachbarschaft: Die Birkfelder Straße ist von einem attraktiven Mix aus historischen Gebäuden und modernen Einrichtungen umgeben. Diese Kombination trägt zu einem angenehmen Ambiente bei, das Kunden anspricht.

Weitere Informationen

Stichworte Nutzfläche: 166,00 m², Bundesland: Steiermark

Weitere Services

Lust auf eine Besichtigung?
Eine Frage zur Immobilie?
Mit einer persönlichen Nachricht hast du bessere Chancen auf eine Antwort.
Mit der Nutzung der oben angegebenen Telefonnummer oder durch Klicken auf „Kontaktieren“ akzeptierst Du die Allgemeinen Nutzungsbedingungen, denen Du jederzeit widersprechen kannst. Weitere Informationen zum Datenschutz

Über den Anbieter

Neubaugasse 107, 8020 GRAZ
partner badge
Partnerschaft
Frau Anna BaranovaDein Kontakt
Online-ID: 24TDHU9QHVB6
Referenznummer: OBGC202408061459117381c27a73361
Immo Circle GesbR
Mit einer persönlichen Nachricht hast du bessere Chancen auf eine Antwort.
Mit der Nutzung der oben angegebenen Telefonnummer oder durch Klicken auf „Kontaktieren“ akzeptierst Du die Allgemeinen Nutzungsbedingungen, denen Du jederzeit widersprechen kannst. Weitere Informationen zum Datenschutz
Wie zufrieden bist du mit dieser Seite (nicht mit der Immobilie selbst)?