

Wohn- und Geschäftshaus zur Miete • provisionsfreiMietkosten auf Anfrage1 Zimmer • 335 m² Bürofläche • teilbar von 38 m² bis 198 m²
Mietkosten auf Anfrage
1 Zimmer • 335 m² Bürofläche • teilbar von 38 m² bis 198 m²
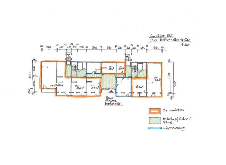
Erdgeschosszone im Wohnhaus Büro/ Praxis/ Schulung, Fläche 355 m² - teilbar von 38 - 198 m²
Merkmale
- 11 Geschosse
- Personenaufzug
- 5 Außen-Stellplätze
- 5 WCs
- DSL-Anschluss
- Nicht möbliert
- Barrierefrei, Rollstuhlgerecht
- 5 Badezimmer
Grundrisse
Grundrisse
1 / 1
Realisiere Dein Projekt
Bausubstanz und Energie
Energieausweis
C
- Baujahr1979
- Letzte Modernisierung2000
- Zustand der ImmobilieIn bewohnbarem Zustand
- HeizungsartZentralheizung: Heizkörper
- EnergieträgerFernwärme
Mietkosten
Miete auf Anfrage
Miete pro Stellplatz
Provision für Mieter
provisionsfrei
Kaution
keine Angabe
Lage

Otto-Rothe-Straße 18, Lusan, Gera (07549)
Weitere Informationen
Weitere Services
Lust auf eine Besichtigung?
Eine Frage zur Immobilie?
Über den Anbieter
Goethestr. 6, 07545 Gera
10 Jahre Partnerschaft
Team WohntelefonDein Kontakt
Online-ID: 259RZ3APUR1X

WBG Aufbau Gera
Bewertung: 3,9 von 5 Sternen
Wie zufrieden bist du mit dieser Seite (nicht mit der Immobilie selbst)?

