Version: 8.25.1Navigation überspringen
55 €
Immowelt logo

Laden zur Miete
55 €
/m²

Geschäftsfläche auf der Mariahilfer Straße Ecke Getreidemarkt zu mieten!

Zur Vermietung steht ein außergewöhnliches Geschäftslokal in absoluter Toplage - direkt an der Mariahilfer Straße, im repräsentativsten Zinshaus an der Grenze zur Wiener Innenstadt. Diese erstklassige Adresse vereint höchste Frequenzlage mit historischem Charme und macht das Objekt zu einer Rarität am Markt.

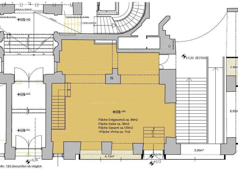
Die Verkaufsfläche im Erdgeschoß umfasst rund 90 m² und ist über zwei Eingänge - sowohl von der Mariahilfer Straße als auch vom Getreidemarkt - bequem erreichbar. Großzügige Schaufensterfronten mit einer Fläche von ca. 7 m² sorgen für maximale Sichtbarkeit und eine hervorragende Präsentationsmöglichkeit Ihrer Produkte.

Zusätzlich stehen im Untergeschoß ca. 35 m² Lagerfläche zur Verfügung, die optimal für Warenbevorratung und Backoffice genutzt werden können.

Das Geschäftslokal wird befristet auf 5 Jahre vermietet und bietet Ihnen die einmalige Gelegenheit, Ihr Unternehmen in einer der gefragtesten Lagen Wiens zu positionieren.

Aufteilung der Geschäftsfläche:
- ca. 90 m² Geschäftsfläche im Erdgeschoß
- ca. 35 m² Geschäftsfläche im Untergeschoß
- ca. 125 m² Gesamtfläche

Grundrisse

Grundrisse
1 / 2

Realisiere Dein Projekt

Bausubstanz und Energie

Möchtest du Details zum Energieverbrauch?info_energy_calculation-icon
Immowelt logo

Mietkosten

Gesamtmiete
8.737,50 €
Nettokaltmiete
55 €/m²
6.875 €
Betriebskosten
262,50 €
Heizkosten
125 €
Provision für Mieter
3 BMM inkl. 20% Ust.
Kaution
35000 €
Weitere Preisinformationen
Nettokaltmiete: 6.875,00 EUR

Lage

address-icon
Wien (1060)
Der Anbieter hat die genaue Adresse nicht freigegeben
Die Geschäftsfläche liegt mitten im Herzen der längsten Einkaufsstraße Österreichs und besticht neben einem attraktiven Flächenkonzept auch durch ein namhaftes internationales Mieterumfeld. Direkt im Haus befindet sich der Abgang zur U2 Museumsquartier. Fußläufig sind die U3 und U4 ebenfalls sehr gut erreichbar.

Weitere Informationen

Sonstiges Hinweis gemäß Energieausweisvorlagegesetz: Ein Energieausweis wurde vom Eigentümer bzw. Verkäufer, nach unserer Aufklärung über die ab 1.12.2012 geltende generelle Vorlagepflicht, sowie Aufforderung zu seiner Erstellung noch nicht vorgelegt. Daher gilt zumindest eine dem Alter und der Art des Gebäudes entsprechende Gesamtenergieeffizienz als vereinbart. Wir übernehmen keinerlei Gewähr oder Haftung für die tatsächliche Energieeffizienz der angebotenen Immobilie.

Wir weisen darauf hin, dass zwischen dem Vermittler und dem Auftraggeber ein wirtschaftliches Naheverhältnis besteht. Der Vermittler ist als Doppelmakler tätig. Stichworte Nutzfläche: 125,00 m², Bundesland: Wien

Weitere Services

Lust auf eine Besichtigung?
Eine Frage zur Immobilie?
Nachricht hinzufügen
Mit der Nutzung der oben angegebenen Telefonnummer oder durch Klicken auf „Kontaktieren“ akzeptierst Du die Allgemeinen Nutzungsbedingungen, denen Du jederzeit widersprechen kannst. Weitere Informationen zum Datenschutz

Über den Anbieter

Prinz-Eugen-Strasse 8-10, 1040 WIEN
partner badge
Partnerschaft
Frau Franziska Patay, MScDein Kontakt
Online-ID: 25HZY724XU9M
Referenznummer: R2501293
EHL Gewerbeimmobilien GmbH
EHL Gewerbeimmobilien GmbH
Nachricht hinzufügen
Mit der Nutzung der oben angegebenen Telefonnummer oder durch Klicken auf „Kontaktieren“ akzeptierst Du die Allgemeinen Nutzungsbedingungen, denen Du jederzeit widersprechen kannst. Weitere Informationen zum Datenschutz
Wie zufrieden bist du mit dieser Seite (nicht mit der Immobilie selbst)?