Version: 8.24.0Navigation überspringen
ohne-makler.net - Immobilien selbst vermarkten
274.000 €
2 Zimmer  •  58,2 m²  •  1. Geschoss

Wohnung zum Kauf • provisionsfrei
274000 €
4.712 €/m²
2 Zimmer  •  58,2 m²  •  1. Geschoss

ohne Makler ! Erstbezug- Denkmal- 2 Zimmer auf Neubau Niveau

Diese stilvolle 2-Zimmer-Eigentumswohnung befindet sich im 1. Obergeschoss eines denkmalgeschützten Wohngebäudes aus dem Jahr 1757. Das historische Gebäude wurde aufwendig restauriert und verbindet heute authentischen Altbaucharakter mit zeitgemäßer, energieeffizienter Technik. Der Erstbezug nach Restaurierung bietet ein hochwertiges und gepflegtes Wohnumfeld mit besonderem Flair.
Mit einer Wohnfläche von ca. 58,15 m² eignet sich die Wohnung ideal für Singles, Paare oder anspruchsvolle Kapitalanleger, die Wert auf Substanz, Geschichte und Qualität legen.
Die Fertigstellung ist für 03/2026 geplant.

Objektzustand: Erstbezug nach Sanierung

Merkmale

  • Bezug: nach Absprache
  • 1. Geschoss
  • Kelleranteil
  • Carport, Außen-Stellplatz
  • Balkon
  • Bad mit Dusche
  • Bodenbelag: Fliesen, Kunststoff
  • Denkmalschutz-Afa
Balkon, Keller, Duschbad, Fliesen

Bemerkungen:
Die Wohnung überzeugt durch eine außergewöhnliche Ausstattung, die historische Elemente bewahrt und modernen Wohnkomfort integriert:
.Denkmalgeschütztes Wohngebäude
.Originale Holzbalkendecke / Holzbohlendecke
.vierflüglige Sprossen Fenster mit traditionellen Fensterläden
.Wunderschönes Treppenhaus
.Fußbodenheizung in allen Wohnräumen
.Mineralisch innen gedämmte Außenwände
.Moderne zentrale Wärmepumpe
.Gefliestes Badezimmer
.Balkon
.Ruhige, angenehme Wohnatmosphäre


Parken & Nebenflächen
.Carport
.Abschließbarer Abstellraum
.Vorbereitung für Elektromobilität

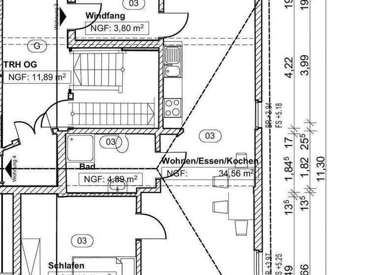
Grundrisse

Grundrisse
1 / 1

Realisiere Dein Projekt

Bausubstanz und Energie

Energieausweis

Ein Energieausweis ist für diesen Gebäudetyp nicht notwendig.
  • Baujahr1757
  • Zustand der Immobilierenoviert / saniert
  • HeizungsartFußbodenheizung
  • EnergieträgerLuft-/Wasser-Wärmepumpe
MediumRectangleTop

Preisdetails

Kaufpreis
274000 €
4.711,95 €/m²
Preis pro Stellplatz
16000 €
Hausgeld
180 €
Provision für Käufer
provisionsfrei; keine Provision, courtagefrei
Weitere Preisinformationen
1 Carportplatz, Kaufpreis: 16.000,00 EUR
1 Stellplatz, Kaufpreis: 16.000,00 EUR
Geschätzte Gesamtkosten
289.070 €1
Kaufpreis
274.000 €
Notarkosten (1,5%)
4.110 €
Grunderwerbsteuer (3,5%)
9.590 €
Grundbucheintrag (0,5%)
1.370 €
1Der angezeigte Wert ist eine automatisch berechnete Schätzung von immowelt.
2Bei den Angaben handelt es sich um ortsübliche Werte. Individuelle Kosten können abweichen.

Lage

address-icon
MünchaurachAurachtal / Münchaurach (91086)
Der Anbieter hat die genaue Adresse nicht freigegeben
Die Gemeinde Aurachtal/Münchaurach ist eine ländliche idyllische Gemeinde in Mittelfranken, die sich durch ihre gute Verkehrsanbindung sowie der nahen A3 und der B8 und ihre Nähe zu Herzogenaurach auszeichnet. Viele große internationale Unternehmen wie Schäffler, Adidas und Puma haben hier ihren Hauptsitz, wodurch ein gewisser Wohlstand in der Region besteht.
Der Öffentliche Nahverkehr zu den Städten Erlangen und Herzogenaurach ist gut ausgebaut.
In Münchaurach gibt es einen großen Supermarkt, Bäckereien, eine Apotheke, Sparkasse, Raiffeisenbank, Tankstelle und eine Metzgerei. Hier haben Sie die Ruhe eines kleinen Ortes und wenn man Stadt Feeling braucht, kann man mit seinem Radle nach Herzogenaurach fahren
Die Lage zeichnet sich durch ihre historische Bedeutung, Ruhe und ein einzigartiges Ambiente aus. Das denkmalgeschützte Umfeld sorgt für eine besondere Wohnqualität und langfristige Wertstabilität.
Infrastruktur (im Umkreis von 5 km):
Apotheke, Lebensmittel-Discount, Kindergarten, Grundschule, Hauptschule, Öffentliche Verkehrsmittel

Weitere Informationen

Sonstiges Heizungsart: Fußbodenheizung
Energieträger: Luft-/Wasserwärme

Im gleichen Gebäude befinden sich weitere zum Verkauf stehende Wohnungen.
Wichtig: Das KFW-Darlehn von 150.000€ könnte vom zukünftigen Besitzer übernommen werden.

Im Gebäude befindet sich ein wunderschönes ausbaubares Dachgeschoss was erworben werden kann. In diesem Zustand würde der neue Besitzer die Steuervorteile der AfA voll nutzen können. ca.100qm Wohnfläche inkl. Stellplatz.
Impressum:
imtro GmbH & Co. KG
Obere Gasse 9
91056 Erlangen
Vertreten durch:

Geschäftsführer: Michael Heise

Telefon: 0172 - 2961021
E-Mail: info@imtro.de

Registereintrag:

Eintragung im Handelsregister.
Registergericht: Amtsgericht Fürth
Registernummer: HRA 9278

Umsatzsteuer:

Umsatzsteuer-Identifikationsnummer gemäß §27 a Umsatzsteuergesetz: DE265876280

Aufsichtsbehörde:

IHK für München und Oberbayern

Max-Joseph-Strasse 2

80333 München

Makleranfragen nicht erwünscht. Nach § 7 UWG sind unaufgeforderte Kontaktaufnahmen durch Makler ohne ausdrückliche Einwilligung des Empfängers verboten!

ohne-makler (OM) ist weder Anbieter noch Vermittler der Immobilie. OM betreibt eine Plattform für Immobilieneigentümer, die unter anderem die gleichzeitige Veröffentlichung einzelner Inserate auf mehreren Immobilienportalen ermöglicht. Die Inhalte dieser Inserate werden ausschließlich von Dritten verantwortet. Für die Richtigkeit, Vollständigkeit oder Rechtmäßigkeit der Angaben übernimmt OM keine Haftung. Hinweise auf mögliche Rechtsverstöße können jederzeit gemeldet werden und werden nach Prüfung umgehend bearbeitet. Stichworte Stellplatz vorhanden, Carport vorhanden, Anzahl der Schlafzimmer: 1, Anzahl der Badezimmer: 1, Anzahl Balkone: 1, Bundesland: Bayern, 2 Etagen

Weitere Services

Lust auf eine Besichtigung?
Eine Frage zur Immobilie?
Nachricht hinzufügen
Mit der Nutzung der oben angegebenen Telefonnummer oder durch Klicken auf „Kontaktieren“ akzeptierst Du die Allgemeinen Nutzungsbedingungen, denen Du jederzeit widersprechen kannst. Weitere Informationen zum Datenschutz

Über den Anbieter

Humboldtstr. 25 A, 21509 Glinde
partner badge
Partnerschaft
Angebot von imtro GmbH & Co. KGDein Kontakt
Keine Telefonnummer hinterlegt
Keine Telefonnummer hinterlegt

Weitere Unterlagen

Online-ID: 2nqhd59
Referenznummer: 421391
ohne-makler.net - Immobilien selbst vermarkten
ohne-makler.net - Immobilien selbst vermarkten
Nachricht hinzufügen
Mit der Nutzung der oben angegebenen Telefonnummer oder durch Klicken auf „Kontaktieren“ akzeptierst Du die Allgemeinen Nutzungsbedingungen, denen Du jederzeit widersprechen kannst. Weitere Informationen zum Datenschutz
MediumRectangleTop
MediumRectangleBottom
MediumRectangleTop
Wie zufrieden bist du mit dieser Seite (nicht mit der Immobilie selbst)?