Version: 8.25.1Navigation überspringen
335.000 €
75 m²  •  280 m² Grundstück
Immowelt logo

Bungalow zum Kauf
335000 €
4.467 €/m²
75 m²  •  280 m² Grundstück

Hier ist er: DER sagenumwobene BASTLERHIT

Die Lage Top, die Substanz gut  - es könnte Ihr kleines Häuschen sein, das aus dem Dornröschenschlaf erweckt werden will.

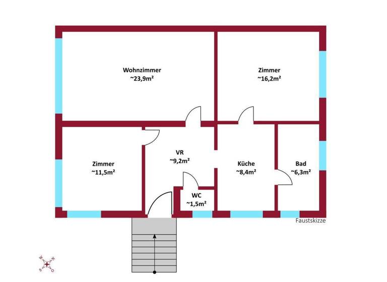
Wir bieten Ihnen einen Bungalow aus 1968 mit 3 Zimmern - Wohnzimmer ( 23 m²), Schlafzimmer (15m²), 2.Schlafzimmer (11 m²), Küche, Badezimmer, WC und Vorzimmer an. Ein kleiner Kellerraum für Waschmaschine und Haustechnik, einen großen Kellerraum der einmal als Garage diente und noch eine kleine Tiefgarage erweitern das Platzangebot. Und für die Dinge die man seltener benötigt gib es noch einen größeren "Schlupfkeller" der vom Garten aus zugängig ist.

Ein kleiner, feiner, mehrteiliger Garten bietet Ihnen die Möglichkeit sich gärtnerisch auszutoben oder einfach eine kleine Wohnfühloase zu gestalten.

Die Heizung wurde 2018 erneuert, sodass eine Beheizung des Hauses mit Gas oder Festbrennstoffen möglich ist.

Was würden WIR mit dem Haus machen: Für Bastler oder "Familien mit Handwerkerfreunden" ist es eine nicht all zu große Herausforderung, aber um das perfekte Wohnerlebnis zu erreichen, würden wir empfehlen, Küche, Böden, Türen sowie Elektrik, Wasser- und Heizungsleitungen zu erneuern. Das Dach ist in gutem Zustand, die Fenster nicht mehr neu aber noch funktionstüchtig.

Was Sie sonst noch wissen müssen: Das ursprüngliche Grundstück wurde geteilt und jede Hälfte parifiziert, Um- und Zubauten sind vertraglich gestattet, eine Aufstockungsmöglichkeit aufgrund des parifizierten Bestandes schwierig aber vielleicht nicht unmöglich. 

Ihr neuer Wohnort Guntramsdorf, ist eine 10.000 Einwohner-Gemeinde mit allen Annehmlichkeiten für den täglichen Bedarf, der Infrastruktur einer Kleinstadt und doch mit einem dörflichen Charakter. In wenigen Minuten in den Weinbergen flanieren, im Wienerwald biken, im Anningergebiet wandern, in einem der Teiche schwimmen oder als Kontrastprogramm in der SCS shoppen - das alles in nächster Nähe.

Kinderkrippe, 5 Kindergärten, 2 Volksschulen, 1 Neue Mittelschule, 1 Oberstufenrealgymnasium, Ärztezentren, Fachärzte, 5 Supermärkte, Bäckerei, Kaffeehäuser, Drogeriemärkte, Fitnessstudio und natürlich die traditionellen Heurigen - hier gibt es einfach alles IM ORT was man so im Alltag benötigt oder diesen angenehm macht. Und die Schulstadt Mödling mit HTL und diversen anderen Gymnasien und Schulen ist auch quasi gleich ums Eck.

Öffentliche Anbindung sowohl durch Südbahn als auch durch die Badnerbahn nach Wien (50min Fahrzeit)  oder Baden (15 Min. Fahrzeit).

Zur Autobahn benötigt man ca. 10 Minuten sowohl in Richtung Süd als auch in Richtung Nord/Wien bzw. Richtung Westen/St.Pölten.

Wenn Sie ein kleines Häuschen für zwei bis drei Personen suchen, die Größe des Gartens nicht erste Priorität hat, Sie handwerklich gut drauf sind oder gute Professionisten an der Hand haben, dann finden Sie hier ein Haus mit Potential in einer Traumlage das es sehr selten gibt.

Habe ich Ihr Interesse geweckt?

Gerne stehe ich für Ihre Fragen zur Verfügung,  zeige Ihnen dieses Häuschen gerne persönlich und übermittle Ihnen noch weitere Informationen.

Ich freue mich wenn Sie mich kontaktieren!

 

Wolfgang Schoiswohl

Mail: wolfgang.schoiswohl@ringsmuth.at

 

Tel.: 0664 345 56 67

Alexander Ringsmuth GmbH

Irrtum und Änderungen vorbehalten

 

Infrastruktur / Entfernungen

Gesundheit
Arzt <2.000m
Apotheke <1.000m
Klinik <1.000m
Krankenhaus <5.500m

Kinder & Schulen
Kindergarten <500m
Schule <1.000m
Höhere Schule <4.000m

Nahversorgung
Supermarkt <1.000m
Bäckerei <1.000m
Einkaufszentrum <3.500m

Sonstige
Bank <1.000m
Geldautomat <1.000m
Polizei <1.000m
Post <1.000m

Verkehr
Bus <500m
Bahnhof <500m
Autobahnanschluss <2.000m
Straßenbahn <1.000m
U-Bahn <10.000m
Flughafen <10.000m

Angaben Entfernung Luftlinie / Quelle: OpenStreetMap

Merkmale

  • Bezug: sofort
  • 280 m² Grundstück
  • Garage

Grundrisse

Grundrisse
1 / 4

Realisiere Dein Projekt

Bausubstanz und Energie

Heizwärmebedarf (HWB)

F

Gesamtenergieeffizienz (fGEE)

D
  • Baujahr1968
  • Zustand der ImmobilieAltbau (bis 1945), Massivhaus, renovierungsbedürftig / sanierungsbedürftig
  • HeizungsartZentralheizung
Immowelt logo

Preisdetails

Kaufpreis
335000 €
4.466,67 €/m²
Provision für Käufer
3% des Kaufpreises zzgl. 20% USt.
Weitere Preisinformationen
1 Garagenstellplatz

Lage

address-icon
Guntramsdorf (2353)
Der Anbieter hat die genaue Adresse nicht freigegeben
Top Ruhelage in Guntramsdorf - Wiennähe

Weitere Informationen

Stichworte Nutzfläche: 106,00 m², Bundesland: Niederösterreich

Weitere Services

Lust auf eine Besichtigung?
Eine Frage zur Immobilie?
Nachricht hinzufügen
Mit der Nutzung der oben angegebenen Telefonnummer oder durch Klicken auf „Kontaktieren“ akzeptierst Du die Allgemeinen Nutzungsbedingungen, denen Du jederzeit widersprechen kannst. Weitere Informationen zum Datenschutz

Über den Anbieter

Hackhofergasse 1, 1190 WIEN
partner badge
Partnerschaft
Herr Wolfgang SchoiswohlDein Kontakt

Weitere Unterlagen

Online-ID: 2678V3G6X7JZ
Referenznummer: OBGC202603200034491808a9e4fc825
Ringsmuth Immobilien
Ringsmuth Immobilien
Bewertung: 5 von 5 Sternen
Nachricht hinzufügen
Mit der Nutzung der oben angegebenen Telefonnummer oder durch Klicken auf „Kontaktieren“ akzeptierst Du die Allgemeinen Nutzungsbedingungen, denen Du jederzeit widersprechen kannst. Weitere Informationen zum Datenschutz
Wie zufrieden bist du mit dieser Seite (nicht mit der Immobilie selbst)?