Smartes Wohnen mit LivingHaus: Zukunftsorientiert und nachhaltig
Erleben Sie I-KON, das intelligent konfigurierte Haustechniksystem bestehend aus Photovoltaikanlage, Batteriespeicher und Wechselrichter. Mit der Luft-Luft-Wärmepumpe von Proxon und der Solarenergie Ihres Dachs reduzieren Sie nicht nur Ihre Stromkosten, sondern investieren weise in die energetische Zukunft Ihres Hauses. Anstatt hohe Stromrechnungen zu begleichen, setzen Sie Ihr Budget sinnvoll für die individuellen Merkmale und persönlichen Vorlieben Ihres Zuhauses ein. In unserer HausStatterei wählen Sie die Materialien für den Innenausbau, die pünktlich auf Ihrer Baustelle geliefert werden. Alle Verarbeitungsmaterialien wie Silikon, Schrauben, Fliesenkleber, Fugenmaterial und Sockelleisten sind im Hauspreis enthalten, was Ihrer Bank Sicherheit bei der Projektrealisierung gibt. Ganz zu schweigen von unserer 18-monatigen Festpreisgarantie. Kontaktieren Sie mich - ich habe noch einige zusätzliche Extras! Weitere Ausstattungsmerkmale präsentiere ich Ihnen gerne persönlich.
Merkmale
520 m² Grundstück
Einbauküche, offene Küche
Badezimmer: Badewanne, Bad mit Dusche, Bad mit Fenster
Gäste-WC
Im Kaufpreis enthalten sind:
+ Baugrundstück + Ausbaustufe Plus + inkl. Material für den Innenausbau! + Nolte Küche inkl. Bosch-Geräten und Montage + Wände komplett gedämmt und beplankt + Bodenplatte inkl. Baugrunduntersuchung + Architekt inkl. Bauantragsplanung + Estrich + Holztreppe + Sanitärgrundinstallation mit Material und Montage + Elektroinstallation mit Material und Montage + Wohlfühl-Klima-Heizung mit Material und Montage + I-KON (intelligent konfiguriert): PV-Anlage, Wechselrichter und Speicher inklusive Material und Montage + modernes Haustürelement mit 5-fach Sicherheitsverriegelung + dreifach Wärmeschutzverglasung + eingebauter Rollläden + Aluminium-Außenfensterbänke in verschiedenen Farben + Dachrinnen und Fallrohre bis OK Bodenplatte in verschiedenen Farben + Dacheindeckung in verschiedenen Farben + DGNB-Zertifizierung Gold auf das Ausbauhaus Plus + Produktion Made in Germany + Top-Kundendienstservice + fachmännische Montage durch erfahrenes Team von LivingHaus + 35-Tonnen-Montagekran + Bau- und Sicherheitsgerüst ab Oberkante Keller + Baustellen-WC + Sammlung und Entsorgung der Baustellenabfälle + Bauherren-Versicherungspaket
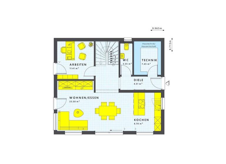
Grundrisse
Grundrisse
1 / 3
Bausubstanz und Energie
Energieausweis
A+
Baujahr2026
Zustand der ImmobilieProjektiert
HaustypKfW 55
HeizungsartZentralheizung
EnergieträgerElektro
Preisdetails
Kaufpreis
960370 €960.370 €
6.623,24 €/m²
Provision für Käufer
provisionsfrei; keine Provision provisionsfrei
Geschätzte Gesamtkosten
1.027.597 €1
Kaufpreis
960.370 €
Kaufnebenkosten
67.227 €
2
Notarkosten (1,5%)
14.406 €
Grunderwerbsteuer (5%)
48.019 €
Grundbucheintrag (0,5%)
4.802 €
1Der angezeigte Wert ist eine automatisch berechnete Schätzung von immowelt.
2Bei den Angaben handelt es sich um ortsübliche Werte. Individuelle Kosten können abweichen.
Lage
Ober-Olm (55270)
Der Anbieter hat die genaue Adresse nicht freigegeben
Es handelt sich um eins der letzten freien Grundstücke im Neubaugebiet Ober-Olm und ist sehr schön gelegen.
Ober-Olm bietet eine attraktive Wohnlage im erweiterten Einzugsbereich von Mainz mit guter Infrastruktur, solider Nahversorgung und sehr guter Verkehrsanbindung. Die Kombination aus ruhigem, naturnahem Wohnen und der Nähe zu einer Großstadt macht den Standort besonders interessant für Familien, Berufspendler und Kapitalanleger.
Weitere Informationen
Sonstiges
Ihr LIVING HAUS beinhaltet zudem:
+ 18-monatige Preisgarantie ab Auftragsbestätigung + Baupreisindexgarantie + 30 Jahre Garantie auf die Grundkonstruktion des Gebäudes einschließlich der Qualität des tragenden Holzrahmenwerks (Schwellen, Pfosten und Pfetten) der Gebäudeaußenwände sowie der tragenden Decken- und Dachbalken. + 5-jährige Gewährleistung nach BGB auf übrige Bauleistungen. + 3-tägiges Ausbau-Coaching vor Ort mit der DIY Academy. + Architektenleistungen im Hauspreis inklusive. + Bodengutachten inklusive. + Energieberaterkosten bereits inkludiert. + AAA-Unternehmensrating - Crefozertifikat. + eigenes Bemusterungszentrum. Und vieles mehr...
Stichworte
Anzahl der Schlafzimmer: 3, Anzahl der Badezimmer: 1, 2 Etagen, Lage im Wohngebiet