

Wohnung zur Miete342.68 €Nettokaltmiete2 Zimmer
342.68 €
Nettokaltmiete
2 Zimmer
Objekt 530: 2-Zimmerwohnung in 4786 Brunnenthal, Am Waldrand 2, Top 6 (inkl. Garage Nr. 1)
Merkmale
- Bezug: sofort
- Waschraum
- Loggia
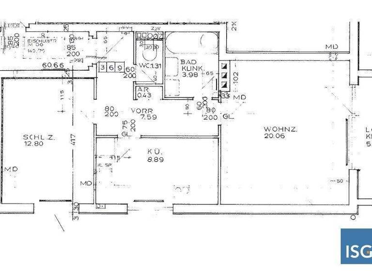
Grundrisse
Grundrisse
1 / 2
Realisiere Dein Projekt
Bausubstanz und Energie
Heizwärmebedarf (HWB)
C
Gesamtenergieeffizienz (fGEE)
- Baujahr1979
- Zustand der ImmobilieMassivhaus, Gepflegt
- HeizungsartZentralheizung
- EnergieträgerÖl
Mietkosten
Gesamtmiete
618,22 €
Nettokaltmiete
342,68 €
Betriebskosten
106,16 €
Heizkosten
99,56 €
Kaution
keine Angabe
Weitere Preisinformationen
Die monatliche Vorschreibung ist vorbehaltlich einer Änderung per 1.1.2026.
Alle Preise sind zzgl. MWST., Nettokaltmiete: 342,68 EUR
Lage

Am Waldrand 2, Brunnenthal (4786)
Weitere Informationen
Weitere Services
Lust auf eine Besichtigung?
Eine Frage zur Immobilie?
Ăśber den Anbieter
Riedauer StraĂźe 28, 4910 RIED/INNKREIS
Frau Rebecca NeiĂźlDein Kontakt
Online-ID: 2mcyf5q
Referenznummer: OBGC202209070858045644735093940

Innviertler GemeinnĂĽtzige Wohnungs- und Siedlungsgenossenschaft reg. Gen.m.b.H.
Wie zufrieden bist du mit dieser Seite (nicht mit der Immobilie selbst)?