


1 / 7



1 / 7
Reihenmittelhaus zum Kauf612000 €612.000 €1.797 €/m²340,6 m²
612000 €612.000 €
1.797 €/m²
340,6 m²
Ein Einfamilienhaus mit Garten in einem geschlossenen Komplex in der Nähe von Sofia
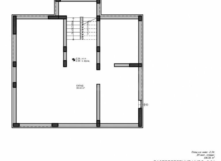
Grundrisse
Grundrisse
1 / 3
Bausubstanz und Energie
Möchtest du Details zum Energieverbrauch?

Preisdetails
Kaufpreis
612000 €612.000 €
1.796,93 €/m²
Provision für Käufer
Bitte beachte, das Angebot kann bei Vertragsabschluss die Zahlung einer Provision beinhalten. Weitere Informationen erhältst Du vom Anbieter.
Lage

Bankya

Die Karte ist nicht verfügbar.
Weitere Informationen
Sonstiges
Der Text wurde ins Deutsche mithilfe einer automatischen Software übersetzt und es ist möglich, dass er einige Ungenauigkeiten enthält. Für eine korrekte Beschreibung und aktuelle Informationen zur Immobilie wenden Sie sich bitte an unseren Makler!
Willkommen im neuesten und schönsten Häuserkomplex mit privatem Garten am Rande der Stadt. Eine Bank. Das Projekt bietet Ruhe, Komfort und eine unglaubliche Aussicht. Genießen Sie eine neue Lebensqualität, umgeben vom Grün der drei Berge, ohne Ihren Arbeitsrhythmus und die Annehmlichkeiten des Stadtlebens zu verlassen.
Das Projekt besteht aus 70 gepflegten und modernen Häusern mit privatem Innenhof, vereint in einer geschlossenen Anlage mit Zugangskontrolle und hervorragend geplanten Gemeinschaftsräumen, die höchsten Ansprüchen gerecht werden. Zu den angebotenen Annehmlichkeiten gehören zwei Spielplätze, Tennis-, Fußball- und Basketballplätze sowie Wander- und Picknickplätze. Das Grundstück, auf dem der Komplex errichtet wird, ist nach Südosten ausgerichtet, was den ganzen Tag über ausreichend Sonnenlicht und Wärme sowie einen faszinierenden Blick auf das Vitosha-Gebirge bietet. Nutzen Sie die Gelegenheit, in einer ruhigen und gemütlichen Umgebung zu leben, die Ihnen alle Annehmlichkeiten des Stadtlebens inmitten von viel Grün und frischer Luft bietet.
Die Häuser des Komplexes sind auf zwei Etagen in einem modernen, klaren Stil gestaltet und verfügen über einen eigenen Garten von bis zu 600 m², der sich ideal zum Entspannen oder für Zusammenkünfte im Freien eignet. Die Konstruktion ist aus hochwertigen Materialien und mit äußerster Präzision und Liebe zum Detail gefertigt. Die Einzigartigkeit des Geländes und die Lage der einzelnen Häuser bieten einen panoramischen und beruhigenden Blick auf jedes Anwesen.
VORTEILE DES KOMPLEX:
Helle und geräumige Häuser mit funktionaler Aufteilung
Private Außenbereiche;
Sicherheit und Schutz für Kinder und Familie;
Sonnenkollektoren und energiesparende Materialien
Zahlreiche Möglichkeiten für Sport und Unterhaltung
Schneller Zugang zum Stadtzentrum;
Die Umgebung des Komplexes verfügt über eine gut ausgebaute moderne Infrastruktur. , gepflasterte Straßen, Straßenbeleuchtung und einladende moderne Häuser mit gepflegten Höfen. Bankya zeichnet sich durch hervorragend gepflegte Gemeinschaftsräume, Parks, öffentliche und private Bildungseinrichtungen, Mineralbecken und Attraktionen aus. Den Bewohnern der Gegend stehen ein Fantastico-Supermarkt, zahlreiche kleine Lebensmittelgeschäfte, Restaurants und Cafés zur Verfügung, in denen Sie alles kaufen können, was Sie für den Alltag benötigen, ohne in andere Teile der Stadt fahren zu müssen.
Aufteilung des Hauses:
Keller - 106,56 qm: 3 Lagerräume
Etage 1 - 109,40 m²: Wohnzimmer, Schlafzimmer, Badezimmer, Eingangshalle, Technikraum, Abstellraum
Etage 2 - 124,62 m²: drei Schlafzimmer, zwei Badezimmer, Abstellraum, Hauswirtschaftsraum
Hof:
Das Haus verfügt über einen privaten Garten. Das gesamte Gelände ist von einem architektonischen Zaun, beleuchteten Gassen und Innenstraßen sowie gebauten Außenverbindungen umgeben.
SONDERANGEBOT FÜR DIE ERSTEN KUNDEN, DIE EIN HAUS IN DER KOMPLEX GEKAUFT HABEN!
Der Preis der Immobilien im Komplex variiert zwischen 1.800 und 2.400 Euro pro Quadratmeter. abhängig von der Größe des angrenzenden Hofes und der Lage innerhalb der Anlage. Alle Preise verstehen sich ohne Mehrwertsteuer. Zusätzlich zu den zwei vom Projekt vorgesehenen Parkplätzen für jedes Haus besteht auch die Möglichkeit, innerhalb der Anlage eine zusätzliche Garage zu erwerben. Verkauf ohne Käuferprovision!
Rufen Sie den für die Immobilie zuständigen Makler an und er hilft Ihnen bei der Auswahl Ihres Traumhauses. Wir warten auf Sie!
Besichtigungen
Wir können eine Besichtigung der Immobilie zu einer für Sie passenden Zeit vereinbaren. Bitte kontaktieren Sie den für dieses Angebot zuständigen Makler und teilen Sie ihm die von Ihnen gewünschte Uhrzeit mit.
Reservierung der Immobilie
Gegen eine nicht erstattete Anzahlung in Höhe von 2.000 Euro wird die Immobilie reserviert. Weitere Besichtigungen mit anderen Käufern finden nicht statt und Makler beginnt mit der Vorbereitung der Dokumente für den Abschluss des endgültigen Vertrags für Eigentumsübertragung. Bitte kontaktieren Sie den zuständigen Makler für mehr Information über den Kauf einer Immobilie und Zahlungsarten.
Zusatzleistungen und Kundendienst
Wir sind ein seriöses Unternehmen und werden nicht nur während des Kaufs, sondern auch danach bei Ihnen sein und Ihnen auf Ihren Wunsch zusätzliche Dienstleistungen anbieten, um die neu gekaufte Immobilie vollständig und nahtlos zu nutzen. Die Dienstleistungen, die wir anbieten können, umfassen die Erlangung einer Hypothekengenehmigung, eine Versicherung für bewegliche und unbewegliche Sachen, eine Lebensversicherung, eine Kranken- und Autoversicherung, Bau- und Reparaturaktivitäten, Möbel, Rechts- und Buchhaltungsdienstleistungen usw.
Bei uns können Sie nicht nur eine Immobilie mieten, sondern auch eine Reihe von Zusatzleistungen in Anspruch nehmen. Wir können Versicherungen für bewegliches und unbewegliches Vermögen, Lebensversicherungen, Kranken- und Kfz-Versicherungen, Bau- und Reparaturarbeiten, Möbel, Rechts- und Buchhaltungsdienstleistungen usw. anbieten.
Stichworte Lage im Bau: rechts vorne
Willkommen im neuesten und schönsten Häuserkomplex mit privatem Garten am Rande der Stadt. Eine Bank. Das Projekt bietet Ruhe, Komfort und eine unglaubliche Aussicht. Genießen Sie eine neue Lebensqualität, umgeben vom Grün der drei Berge, ohne Ihren Arbeitsrhythmus und die Annehmlichkeiten des Stadtlebens zu verlassen.
Das Projekt besteht aus 70 gepflegten und modernen Häusern mit privatem Innenhof, vereint in einer geschlossenen Anlage mit Zugangskontrolle und hervorragend geplanten Gemeinschaftsräumen, die höchsten Ansprüchen gerecht werden. Zu den angebotenen Annehmlichkeiten gehören zwei Spielplätze, Tennis-, Fußball- und Basketballplätze sowie Wander- und Picknickplätze. Das Grundstück, auf dem der Komplex errichtet wird, ist nach Südosten ausgerichtet, was den ganzen Tag über ausreichend Sonnenlicht und Wärme sowie einen faszinierenden Blick auf das Vitosha-Gebirge bietet. Nutzen Sie die Gelegenheit, in einer ruhigen und gemütlichen Umgebung zu leben, die Ihnen alle Annehmlichkeiten des Stadtlebens inmitten von viel Grün und frischer Luft bietet.
Die Häuser des Komplexes sind auf zwei Etagen in einem modernen, klaren Stil gestaltet und verfügen über einen eigenen Garten von bis zu 600 m², der sich ideal zum Entspannen oder für Zusammenkünfte im Freien eignet. Die Konstruktion ist aus hochwertigen Materialien und mit äußerster Präzision und Liebe zum Detail gefertigt. Die Einzigartigkeit des Geländes und die Lage der einzelnen Häuser bieten einen panoramischen und beruhigenden Blick auf jedes Anwesen.
VORTEILE DES KOMPLEX:
Helle und geräumige Häuser mit funktionaler Aufteilung
Private Außenbereiche;
Sicherheit und Schutz für Kinder und Familie;
Sonnenkollektoren und energiesparende Materialien
Zahlreiche Möglichkeiten für Sport und Unterhaltung
Schneller Zugang zum Stadtzentrum;
Die Umgebung des Komplexes verfügt über eine gut ausgebaute moderne Infrastruktur. , gepflasterte Straßen, Straßenbeleuchtung und einladende moderne Häuser mit gepflegten Höfen. Bankya zeichnet sich durch hervorragend gepflegte Gemeinschaftsräume, Parks, öffentliche und private Bildungseinrichtungen, Mineralbecken und Attraktionen aus. Den Bewohnern der Gegend stehen ein Fantastico-Supermarkt, zahlreiche kleine Lebensmittelgeschäfte, Restaurants und Cafés zur Verfügung, in denen Sie alles kaufen können, was Sie für den Alltag benötigen, ohne in andere Teile der Stadt fahren zu müssen.
Aufteilung des Hauses:
Keller - 106,56 qm: 3 Lagerräume
Etage 1 - 109,40 m²: Wohnzimmer, Schlafzimmer, Badezimmer, Eingangshalle, Technikraum, Abstellraum
Etage 2 - 124,62 m²: drei Schlafzimmer, zwei Badezimmer, Abstellraum, Hauswirtschaftsraum
Hof:
Das Haus verfügt über einen privaten Garten. Das gesamte Gelände ist von einem architektonischen Zaun, beleuchteten Gassen und Innenstraßen sowie gebauten Außenverbindungen umgeben.
SONDERANGEBOT FÜR DIE ERSTEN KUNDEN, DIE EIN HAUS IN DER KOMPLEX GEKAUFT HABEN!
Der Preis der Immobilien im Komplex variiert zwischen 1.800 und 2.400 Euro pro Quadratmeter. abhängig von der Größe des angrenzenden Hofes und der Lage innerhalb der Anlage. Alle Preise verstehen sich ohne Mehrwertsteuer. Zusätzlich zu den zwei vom Projekt vorgesehenen Parkplätzen für jedes Haus besteht auch die Möglichkeit, innerhalb der Anlage eine zusätzliche Garage zu erwerben. Verkauf ohne Käuferprovision!
Rufen Sie den für die Immobilie zuständigen Makler an und er hilft Ihnen bei der Auswahl Ihres Traumhauses. Wir warten auf Sie!
Besichtigungen
Wir können eine Besichtigung der Immobilie zu einer für Sie passenden Zeit vereinbaren. Bitte kontaktieren Sie den für dieses Angebot zuständigen Makler und teilen Sie ihm die von Ihnen gewünschte Uhrzeit mit.
Reservierung der Immobilie
Gegen eine nicht erstattete Anzahlung in Höhe von 2.000 Euro wird die Immobilie reserviert. Weitere Besichtigungen mit anderen Käufern finden nicht statt und Makler beginnt mit der Vorbereitung der Dokumente für den Abschluss des endgültigen Vertrags für Eigentumsübertragung. Bitte kontaktieren Sie den zuständigen Makler für mehr Information über den Kauf einer Immobilie und Zahlungsarten.
Zusatzleistungen und Kundendienst
Wir sind ein seriöses Unternehmen und werden nicht nur während des Kaufs, sondern auch danach bei Ihnen sein und Ihnen auf Ihren Wunsch zusätzliche Dienstleistungen anbieten, um die neu gekaufte Immobilie vollständig und nahtlos zu nutzen. Die Dienstleistungen, die wir anbieten können, umfassen die Erlangung einer Hypothekengenehmigung, eine Versicherung für bewegliche und unbewegliche Sachen, eine Lebensversicherung, eine Kranken- und Autoversicherung, Bau- und Reparaturaktivitäten, Möbel, Rechts- und Buchhaltungsdienstleistungen usw.
Bei uns können Sie nicht nur eine Immobilie mieten, sondern auch eine Reihe von Zusatzleistungen in Anspruch nehmen. Wir können Versicherungen für bewegliches und unbewegliches Vermögen, Lebensversicherungen, Kranken- und Kfz-Versicherungen, Bau- und Reparaturarbeiten, Möbel, Rechts- und Buchhaltungsdienstleistungen usw. anbieten.
Stichworte Lage im Bau: rechts vorne
Weitere Services
Lust auf eine Besichtigung?
Eine Frage zur Immobilie?
Über den Anbieter
Cherni Vrah Blvd. Nr. 51, 1407 SOFIA
Partnerschaft

Frau Adriana NikolovaDein Kontakt
Online-ID: 23U94T1JNVYP
Referenznummer: IMW-112646
Wie zufrieden bist du mit dieser Seite (nicht mit der Immobilie selbst)?
- Immobilie
- Exposé
