

Wohnung zum Kauf280919 €4.682 €/m²60 m² • 1. Geschoss
280919 €
4.682 €/m²
60 m² • 1. Geschoss
Wohnung 60m2 zum Kauf - Zadar, Kolan
Merkmale
- 1. Geschoss
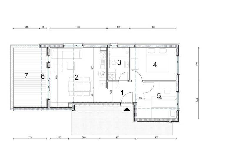
Grundrisse
Grundrisse
1 / 1
Realisiere Dein Projekt
Bausubstanz und Energie
Möchtest du Details zum Energieverbrauch?

- Baujahr2026
Preisdetails
Kaufpreis
280919 €
4.681,98 €/m²
Provision für Käufer
Bitte beachte, das Angebot kann bei Vertragsabschluss die Zahlung einer Provision beinhalten. Weitere Informationen erhältst Du vom Anbieter.
Lage

Kolan
Der Anbieter hat die genaue Adresse nicht freigegeben
Weitere Informationen
Weitere Services
Lust auf eine Besichtigung?
Eine Frage zur Immobilie?
Über den Anbieter
Online-ID: 26PITRHCGKRG
Referenznummer: 19402371_3

Crozilla.com
Wie zufrieden bist du mit dieser Seite (nicht mit der Immobilie selbst)?

