Version: 8.25.1Navigation überspringen
IM Lifestyle Properties GmbH
1.300.000 €
6 Zimmer

Büro zum Kauf
1300000 €
6 Zimmer

4,7% Rendite! Großzügiges Loft in Toplage des 2. Bezirks, Nähe Augarten

_Im Falle der Notwendigkeit einer Fremdfinanzierung Ihrer Wunschimmobilie ermittelt unser Wohnbau-Finanzierungsexperte gerne die optimale Finanzierungslösung und findet das passende Zins- und Konditionsangebot für Sie. Er vergleicht die aktuellen Angebote aller relevanten Banken und Bausparkassen. Der Angebotsvergleich kann aus einem Portfolio von über 120 Banken erfolgen. Das Erstgespräch ist für Sie kostenfrei und unverbindlich, gerne auch bei Ihnen vor Ort. So sparen Sie Ihre wertvolle Zeit und erhalten eine professionelle und unabhängige Finanzierungslösung vom Spezialisten. Sprechen Sie uns wegen eines Termins gerne an!_

 

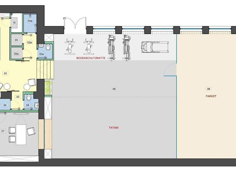
Zum Verkauf gelangt ein traumhaftes Loft in Toplage des 2. Wiener Gemeindebezirks. Im Moment handelt es sich um ein großes Zimmer, dies verleiht der Immobilie einen ganz besonderen Flair. Jedoch kann der Grundriss so abgeändert werden, dass bis zu sechs getrennte Räume entstehen. Bei dem beigefügten Bild handelt es sich lediglich um ein Musterfoto, um das mögliche Ergebnis des Objekts aufzuzeigen. Es handelt sich um einen Erstbezug nach einer umfassenden Generalsanierung.

Das Objekt ist zurzeit für 7 Jahre vermietet, womit sich eine jährliche Rendite von ca. 4,7 % ergibt.

Das Loft befindet sich in einem Gebäude aus dem Jahre 1970 und ist in einem ruhigen, begrünten Hinterhof gelegen. Das Hofgebäude mit Loft-Charakter und sehr hohen Decken befindet sich aktuell in einem nicht fertiggestellten Zustand, wird jedoch umfassend saniert und modernisiert und eignet sich nach Renovierung ideal als Büro oder Atelier. Der Umbau umfasst einen großzügigen Empfangsbereich mit Garderobe sowie einen Raum, der die Möglichkeit für ein Eisbad bietet. Das Objekt ist außerdem mit zwei modernen Bädern ausgestattet, die jeweils zwei Duschen und WCs bieten. Eine angenehme Deckenkühlung sorgt für Wohlfühltemperaturen und eine hochwertige Sicherheitstür gewährleistet zusätzlichen Schutz. Es besteht die Möglichkeit, die Immobilie in unsaniertem Zustand zu erwerben. Der Kaufpreis würde dann bei € 890.000,- liegen. 

Die Lage und Infrastruktur könnten wirklich nicht besser sein! Der 2. Bezirk mit seinen Hotspots Karmelitermarkt und Augarten, seiner Nähe zum ersten Bezirk sowie zum Prater hat durch den Bau der U2 weiter an Attraktivität gewonnen.
Die Nahversorgung ist in ausreichender Qualität und Quantität in fußläufiger Nähe vorhanden und das Freizeitangebot könnte mit dem unmittelbar angrenzenden Augarten, dem Prater und der Nähe zum Donaukanal und der City nicht besser sein. Die Umgebung zeichnet sich durch hervorragende Anbindung an das öffentliche Verkehrsnetz aus. Die Straßenbahnlinie 2 und 5, sowie die U2 sind direkt vor der Haustür. Überzeugen Sie sich selbst von dieser attraktiven Immobilie.  

Gerne lassen wir Ihnen bei ernsthaftem Interesse - vor Kaufanbotlegung - weitere vertraulichen Dokumente zu dieser Liegenschaft zukommen, welche nicht veröffentlicht werden dürfen.

Überzeugen Sie sich selbst von diesem überaus attraktiven Objekt. Für Besichtigungen und nähere Informationen stehen wir Ihnen gerne zur Verfügung!

Mag. Viola Wasmuth
national - Tel: 0670 4039361 [tel:06704039361]
international - Tel: +43 670 4039361 [/+436704039361]
e-mail: wasmuth@lifestyle-properties.at

Wir weisen darauf hin, dass zwischen dem Vermittler und dem zu vermittelnden Dritten ein familiäres oder wirtschaftliches Naheverhältnis besteht.

Der Vermittler ist als Doppelmakler tätig.

 

 

Infrastruktur / Entfernungen

Gesundheit
Arzt <500m
Apotheke <500m
Klinik <500m
Krankenhaus <1.000m

Kinder & Schulen
Schule <500m
Kindergarten <500m
Universität <1.000m
Höhere Schule <1.000m

Nahversorgung
Supermarkt <500m
Bäckerei <500m
Einkaufszentrum <2.000m

Sonstige
Geldautomat <500m
Bank <500m
Post <1.000m
Polizei <500m

Verkehr
Bus <500m
U-Bahn <500m
Straßenbahn <500m
Bahnhof <500m
Autobahnanschluss <2.500m

Angaben Entfernung Luftlinie / Quelle: OpenStreetMap

Merkmale

  • Erdgeschoss
  • Gäste-WC
  • Garten
  • Bad mit Dusche
  • voll klimatisiert
  • Bodenbelag: Fliesen, Parkett

Grundrisse

Grundrisse
1 / 3

Realisiere Dein Projekt

Bausubstanz und Energie

Heizwärmebedarf (HWB)

E

Gesamtenergieeffizienz (fGEE)

E
  • Baujahr1970
  • Zustand der ImmobilieNeubau, renoviert / saniert
  • HeizungsartEtagenheizung
  • EnergieträgerGas
MediumRectangleTop

Preisdetails

Kaufpreis
1300000 €
Provision für Käufer
3% des Kaufpreises zzgl. 20% USt.

Lage

address-icon
Wien,Leopoldstadt (1020)

Weitere Informationen

Stichworte Fahrradraum, Nutzfläche: 216,77 m², Anzahl der Badezimmer: 2, Anzahl der separaten WCs: 2, Bundesland: Wien, 2 Etagen, modernisiert: 2024

Weitere Services

Lust auf eine Besichtigung?
Eine Frage zur Immobilie?
Nachricht hinzufügen
Mit der Nutzung der oben angegebenen Telefonnummer oder durch Klicken auf „Kontaktieren“ akzeptierst Du die Allgemeinen Nutzungsbedingungen, denen Du jederzeit widersprechen kannst. Weitere Informationen zum Datenschutz

Über den Anbieter

Stock-im-Eisen-Platz 3/26, 1010 WIEN
Frau Viola WasmuthDein Kontakt
Online-ID: 24DIUBTR1KUL
Referenznummer: OBGC202405241615395711054a3ec58
IM Lifestyle Properties GmbH
IM Lifestyle Properties GmbH
Nachricht hinzufügen
Mit der Nutzung der oben angegebenen Telefonnummer oder durch Klicken auf „Kontaktieren“ akzeptierst Du die Allgemeinen Nutzungsbedingungen, denen Du jederzeit widersprechen kannst. Weitere Informationen zum Datenschutz
MediumRectangleTop
MediumRectangleBottom
MediumRectangleTop
Wie zufrieden bist du mit dieser Seite (nicht mit der Immobilie selbst)?