Version: 8.25.1Navigation überspringen
PlanetHome Group GmbH
245.000 €
6 Zimmer

Praxis zum Kauf
245000 €
6 Zimmer

Helle Praxisräume in etabliertem Ärztehaus zur sofortigen Selbstnutzung in Potsdam Am Stern

Diese zum Verkauf stehende Praxisfläche befindet sich in einem etablierten Ärztehaus in zentraler Lage von Potsdam. Der Standort überzeugt durch seine hervorragende Erreichbarkeit sowohl für Patienten als auch für das Praxisteam. In unmittelbarer Umgebung stehen ausreichend öffentliche Parkmöglichkeiten zur Verfügung.

Die Praxis ist sofort bezugsfrei und bietet ideale Voraussetzungen für Zahnärzte oder andere heilberufliche Nutzer, die kurzfristig einen neuen Standort suchen oder sich neu niederlassen möchten.
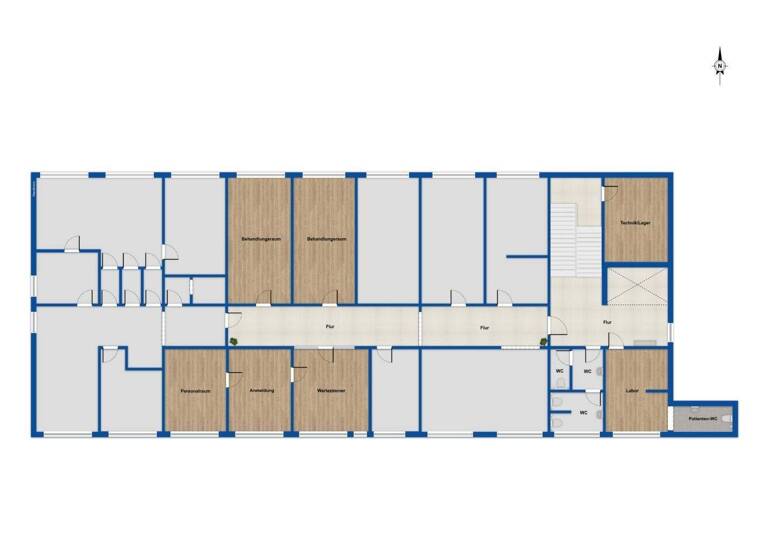
Die funktional geschnittene Einheit verfügt über: zwei Behandlungsräume (jeweils ca. 16 m²), ein separates Labor, einen Personalraum, eine Anmeldung, ein Wartezimmer, ein Patienten-WC und einen Technikraum bzw. Lagerbereich.

Eine durchdachte Raumaufteilung ermöglicht effiziente Arbeitsabläufe und eine klare Trennung zwischen Behandlungs-, Personal- und Technikbereichen. Großzügige Fensterflächen sorgen für eine angenehme natürliche Belichtung und schaffen eine freundliche Atmosphäre für Patienten und Mitarbeitende.

Das Ärztehaus wurde ca. in den 1970er-Jahren errichtet und seither kontinuierlich instand gehalten und modernisiert. Ein Aufzug gewährleistet einen komfortablen und barrierearmen Zugang zu den einzelnen Einheiten. Sämtliche Praxen und medizinischen Einrichtungen im Gebäude sind dauerhaft etabliert, wodurch eine stabile Frequenz sowie ein professionelles Umfeld gegeben sind.

Die weiteren Einheiten befinden sich im Privateigentum. Die Flure und Patienten-WC's stellen gemeinschaftliches Eigentum auf der Etage dar. Eine Vereinbarung der Eigentümergemeinschaft stellt sicher, dass der medizinische Charakter des Hauses auch künftig gewahrt bleibt. Eine Konkurrenzklausel sorgt zusätzlich für Planungssicherheit innerhalb der Eigentümergemeinschaft.

Das Gebäude wird von einer professionellen Hausverwaltung betreut. Das monatlich für diese Einheit anfallende Hausgeld beläuft sich auf ca. 1.100 EUR.

Merkmale

  • 3. Geschoss
  • Einbauküche
  • Personenaufzug
  • Barrierefrei

Grundrisse

Grundrisse
1 / 1

Realisiere Dein Projekt

Bausubstanz und Energie

Energieausweis

Endenergieverbrauch (Wärme)

  • Baujahr1978
  • Zustand der ImmobilieMassivhaus
  • HeizungsartZentralheizung
  • EnergieträgerFernwärme
MediumRectangleTop

Preisdetails

Kaufpreis
245000 €
Hausgeld
1100 €
Provision für Käufer
7,14 % inkl. MwSt.
Geschätzte Gesamtkosten
262.493 €1
Kaufpreis
245.000 €
Provision für Käufer (7,14%)
17.493 €
1Der angezeigte Wert ist eine automatisch berechnete Schätzung von immowelt.
2Bei den Angaben handelt es sich um ortsübliche Werte. Individuelle Kosten können abweichen.

Lage

address-icon
Am SternPotsdam (14480)
Der Anbieter hat die genaue Adresse nicht freigegeben
Die brandenburgische Landeshauptstadt Potsdam ist mit seinen Schlössern und Gärten sowie seiner liebevoll sanierten historischen Bebauung Anziehungspunkt für unzählige Touristen aus aller Welt. Zahlreiche kommunale und private Kindertagesstätten sowie Grund- und weiterführende Schulen, liebevoll angelegte Spielplätze und diverse Freizeitmöglichkeiten machen den Universitätsstandort zu einer der familienfreundlichsten Städte im gesamten Bundesgebiet und sorgen für stetig wachsende Einwohnerzahlen und immer neue Wohnungsbauprogramme. Das Stadtgebiet "Am Stern" in Potsdam ist geprägt von Neubaugebieten mit großen Wohnanlagen, Hochhäusern etc. Das Ärztehaus liegt zentral im Stadtgebiet, fußläufig zu Bus, Straßenbahn etc.

Aus Berlin City-West kommend erreicht man das Ärztehaus über die Avus (A 115) in ca. 25 Minuten. Innerhalb Potsdams ist das Wohngebiet Am Stern mit Bussen und Straßenbahnen sehr gut vernetzt. Weniger als 15 Gehminuten (ca. 1 km) entfernt befinden sich bspw. das Potsdamer "Stern-Center" mit seinen zahlreichen Geschäften sowie der Regionalbahnhof "Medienstadt". Hier verkehrt der RE7, der Kunden/Patienten innerhalb von ca. 15 Min. von Berlin-Charlottenburg zum Ärztehaus bringt und ebenfalls die Bahnhöfe Friedrichstraße und Alexanderplatz ansteuert.

Weitere Informationen

Stichworte 3 Etagen

Weitere Services

Lust auf eine Besichtigung?
Eine Frage zur Immobilie?
Nachricht hinzufügen
Mit der Nutzung der oben angegebenen Telefonnummer oder durch Klicken auf „Kontaktieren“ akzeptierst Du die Allgemeinen Nutzungsbedingungen, denen Du jederzeit widersprechen kannst. Weitere Informationen zum Datenschutz

Über den Anbieter

Feringastraße 11, 85774 Unterföhring
partner badge
10 Jahre Partnerschaft
Julia FranzkeDein Kontakt
Online-ID: 26JTBFS1DGC7
Referenznummer: 732609
PlanetHome Group GmbH
PlanetHome Group GmbH
Nachricht hinzufügen
Mit der Nutzung der oben angegebenen Telefonnummer oder durch Klicken auf „Kontaktieren“ akzeptierst Du die Allgemeinen Nutzungsbedingungen, denen Du jederzeit widersprechen kannst. Weitere Informationen zum Datenschutz
MediumRectangleTop
MediumRectangleTop
Wie zufrieden bist du mit dieser Seite (nicht mit der Immobilie selbst)?