Version: 8.25.1Navigation überspringen
Preis auf Anfrage
3 Zimmer  •  118,5 m²
Immowelt logo

Wohnung zum Kauf - Erstbezug
3 Zimmer  •  118,5 m²

Dachgeschoßwohnung inkl. SEEBLICK - Erstbezug mit Terrasse und 3 Zimmern!

Exklusive Dachgeschosswohnung mit Seeblick - Erstbezug in Faak am See

Diese moderne 3-Zimmer-Wohnung im Dachgeschoss bietet auf ca. 118,54 m² großzügigen Wohnkomfort, hochwertige Ausstattung und eine traumhafte Terrasse mit Blick auf den Faaker See.

? Erstbezug
? 3 helle Zimmer
? 2 Badezimmer & 3 WCs
? Großzügige Terrasse mit Seeblick
? Ruhige Lage mit Top-Infrastruktur
? Nähe zu Arzt, Apotheke & Einkaufsmöglichkeiten

Ideal für Familien, Paare oder als Feriendomizil - genießen Sie Natur, Komfort und Lebensqualität in Kärnten.

Kontaktieren Sie uns für einen Besichtigungstermin - wir stehen Ihnen gerne zur Verfügung!

Infrastruktur / Entfernungen

Gesundheit
Arzt <500m
Apotheke <500m
Klinik <7.000m
Krankenhaus <7.000m

Kinder & Schulen
Schule <1.500m
Kindergarten <4.000m
Universität <5.500m
Höhere Schule <5.500m

Nahversorgung
Supermarkt <1.000m
Bäckerei <6.000m
Einkaufszentrum <6.000m

Sonstige
Geldautomat <1.000m
Bank <1.000m
Post <1.000m
Polizei <1.000m

Verkehr
Bus <500m
Autobahnanschluss <4.000m
Bahnhof <1.000m

Angaben Entfernung Luftlinie / Quelle: OpenStreetMap

Merkmale

  • Dachgeschoss
  • Balkon

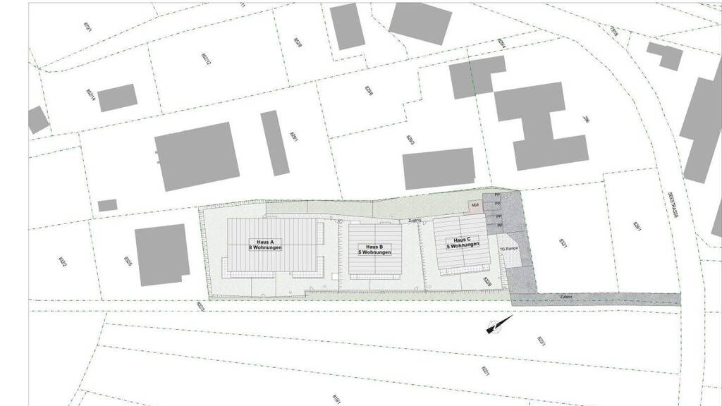
Grundrisse

Grundrisse
1 / 1

Realisiere Dein Projekt

Bausubstanz und Energie

Möchtest du Details zum Energieverbrauch?info_energy_calculation-icon
  • Zustand der ImmobilieErstbezug
Immowelt logo

Preisdetails

Provision für Käufer
Bitte beachte, das Angebot kann bei Vertragsabschluss die Zahlung einer Provision beinhalten. Weitere Informationen erhältst Du vom Anbieter.

Lage

address-icon
Faak am See (9583)
Die Immobilie liegt idyllisch in 9583 Faak am See, einem der schönsten Orte Kärntens. Umgeben von atemberaubenden Bergpanoramen und dem glitzernden Wasser des Faaker Sees, bietet die Lage eine perfekte Kombination aus Natur und Erholung. Wander- und Radwege beginnen direkt vor der Tür, während zahlreiche Freizeitmöglichkeiten wie Schwimmen, Segeln und Skifahren in der Nähe sind.
Die nächste Stadt, Villach, ist nur etwa 11 km entfernt und in ca. 15 Minuten mit dem Auto erreichbar. Alternativ gibt es regelmäßige Zugverbindungen, die etwa 17 Minuten dauern, sowie Busverbindungen, die rund 18 Minuten benötigen. Damit ist Faak am See nicht nur ein Rückzugsort in der Natur, sondern auch hervorragend an die städtische Infrastruktur angebunden.
Genießen Sie die Ruhe und die malerische Umgebung dieser bezaubernden Region - mit der Gewissheit, dass Einkaufsmöglichkeiten, Schulen, medizinische Versorgung und kulturelle Angebote in Villach schnell und bequem erreichbar sind.

Weitere Informationen

Stichworte Anzahl der Badezimmer: 2, Anzahl der separaten WCs: 3, Anzahl Balkone: 1, Balkon-Terrassen-Fläche: 25,37 m², Kellerfläche: 8,90 m², Bundesland: Kärnten, Wohnungsnr.: C5

Weitere Services

Lust auf eine Besichtigung?
Eine Frage zur Immobilie?
Nachricht hinzufügen
Mit der Nutzung der oben angegebenen Telefonnummer oder durch Klicken auf „Kontaktieren“ akzeptierst Du die Allgemeinen Nutzungsbedingungen, denen Du jederzeit widersprechen kannst. Weitere Informationen zum Datenschutz

Über den Anbieter

Herzog Odilo-Straße 4, 5310 MONDSEE
partner badge
Partnerschaft
Herr Bernd JuppeDein Kontakt
Online-ID: 2571R9WAT3NF
Referenznummer: OBGC20251009114912066f046b1302c
Wohnzone Schlössl GmbH
Nachricht hinzufügen
Mit der Nutzung der oben angegebenen Telefonnummer oder durch Klicken auf „Kontaktieren“ akzeptierst Du die Allgemeinen Nutzungsbedingungen, denen Du jederzeit widersprechen kannst. Weitere Informationen zum Datenschutz
Wie zufrieden bist du mit dieser Seite (nicht mit der Immobilie selbst)?