RealWert Bayern Immobilien- und Finanzierungsvermittlungs GmbH

Frau Linda Maier

Panorama Seeblick! Saniertes Einfamilienhaus mit separat nutzbarer Einheit in bester Lage

€ 5.370
Kaltmiete zzgl. NK
260,11 m²
Wohnfläche ca.
7
Zimmer
1 214 m²
Grundstücksfl. ca.

Der Anbieter dieses Objekts hat gegenüber der AVIV Germany GmbH als Betreiber dieses Online-Marktplatzes erklärt, nicht als Unternehmer im Sinne des § 1 KSchG zu handeln. Die im Verbraucherschutzrecht der Union verankerten Verbraucherrechte (insbesondere Informationspflichten und Rücktritts- bzw. Widerrufsrechte) finden auf den Vertrag zwischen dem Anbieter des Objekts und Ihnen (dem Interessenten) keine Anwendung.

Gewerblicher Anbieter

Der Anbieter dieses Objekts hat gegenüber der AVIV Germany GmbH als Betreiber dieses Online-Marktplatzes erklärt, als Unternehmer im Sinne des § 1 KSchG zu handeln.

AdresseStraße nicht freigegeben
82327 Tutzing 
Auf Karte ansehen

Preise & Kosten

Kaltmiete € 5.370 Nebenkosten € 415 Heizkosten in Warmmiete enthalten Warmmiete € 5.875 1 Stellplatz € 90

Kaution

16.380,00 €

Lage

Das Einfamilienhaus befindet sich in attraktiver Höhenlage von Tutzing und überzeugt durch einen herrlichen Blick auf den Starnberger See sowie eine ruhige, gehobene Wohnumgebung. Die Lage verbindet naturnahes Wohnen mit einer sehr guten Infrastruktur und hoher Lebensqualität.
Der Ort Tutzing zählt zu den begehrtesten...

Mehr anzeigen

Das Haus

Kategorie

Einfamilienhaus

Baujahr

1970

  • Zustand: renoviert / saniert
  • Garten, Balkon
  • 1 Stellplatz: Garage
  • Bad mit Wanne und Dusche, Gäste-WC
  • Böden: Fliesenboden, Parkett
  • Weitere Räume: Abstellraum

Energie & Heizung

A+
A
B
C
D
E
F
G
H
0 25 50 75 100 125 150 175 200 225 250 +

Energieausweistyp

Bedarfsausweis

Gebäudetyp

Wohngebäude

Wesentliche Energieträger

Gas

Gültigkeit

22.01.2026 bis 22.01.2036

Effizienzklasse

G

Endenergiebedarf

206,00 kWh/(m²·a)

Weitere Energiedaten

Energieträger

Gas

Heizungsart

offener Kamin, Zentralheizung

Details

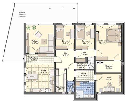
Objektbeschreibung

Wohnen mit 180 Grad Seeblick von fast allen nach Süden ausgerichteten Zimmern und viel Platz für die ganze Familie.
Dieses wunderschöne Einfamilienhaus aus dem Baujahr 1969 wurde 2025 umfassend saniert und verbindet klassische Architektur mit zeitgemäßem Wohnkomfort. Auf rund 260,11 m² Wohnfläche lt. Plan bietet es...

Mehr anzeigen

Ausstattung

- Baujahr 1969, Sanierung 2025
- Grundstück ca. 1.214 m²
- Wohnfläche ca. 260,11 m² lt. Plänen Architekt
- Wohnung im DG mit ca. 71,82 m² verteilt auf 2,5 Zimmer kann zusätzlich angemietet werden (Konditionen siehe "Sonstiges")
- Neue Fenster, Türen und Dachdämmung
- 2 Eingänge für jeweils EG und UG, somit...

Mehr anzeigen

Preisinformation

1 Garagenstellplatz, Miete: 90,00 EUR

Weitere Informationen

Sonstiges
Mietaufstellung:
5.370,00 € Grundmiete
+ 90,00 € Garagenstellplatz
+ 415,00 € Nebenkostenvorauszahlung inkl. Heizung zzgl. Strom
= 5.875,00 € Warmmiete zzgl. Strom

Kaution: 16.380,00 €; Es wird ein Indexmietvertrag abgeschlossen

Es besteht die Möglichkeit, einen Teil des...

Mehr anzeigen

Anbieter der Immobilie

user

Frau Linda Maier

Dein Ansprechpartner

Anbieter-Website Anbieter-Profil Anbieter-Impressum

Online-ID: 2n9tt59

Referenznummer: 1741

Finde Angebote wie dieses

imageimageimage

Hier geht es zu unserem Impressum, den Allgemeinen Geschäftsbedingungen, den Hinweisen zum Datenschutz und nutzungsbasierter Online-Werbung.