Version: 8.24.0Navigation ĂĽberspringen
1.375 €
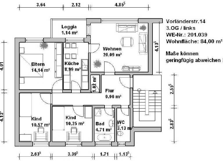
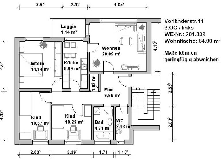
4 Zimmer  â€˘  84 m²  â€˘  frei ab sofort
Immowelt logo

Wohnung zur Miete
1.375 €
4 Zimmer  â€˘  84 m²  â€˘  frei ab sofort

4-Zimmer-Wohnung mit Balkon

Das solide Mehrfamilienhaus wurde 2012 energetisch saniert. Die Fassade wurde wärmegedämmt und alle Fenster wurden erneuert, sowie die Loggien verglast.

Es stehen Ihnen direkt vor der Haustür genügend Parkplätze zu kostenfreier Nutzung zur Verfügung.
Im Keller befinden sich Wasch- und Trockenräume sowie ein Fahrradkeller.
An dem Miethaus ist ein schöner Garten für die Gemeinschaftsnutzung angelegt, der zum Wohlfühlen und zum Erholen einlädt. Die Pflege übernimmt ein Fachunternehmen und erhält Ihnen somit die idyllische Natur an Ihrem Wohnort.

Das Haus verfügt über eine Zentralheizung. Diese wird regelmäßig gewartet und sorgt für eine zuverlässige und effiziente Beheizung der Wohnungen.

Merkmale

  • frei ab 01.04.2025 bis 31.12.9999
  • Kelleranteil
  • Bodenbelag: Kunststoff
Nicht dur die Wärmedämmung dieses Hauses überzeugt, sondern auch folgende Argumente......

- groĂźes Wohnzimmer mit verglaster Loggia
- 3 Schlafräume, Küche, Wohnzimmer
- Bad mit Wanne und Fenster, mit modernen schwarz/weiĂź Fliesen
- separates WC
- Laminatboden

Zudem ist diese Wohnung mit einem Wasserzähler ausgestattet, die den Verbrauch gerecht unter den Mietern verteilt.

Grundrisse

Grundrisse
1 / 1

Realisiere Dein Projekt

Bausubstanz und Energie

Energieausweis

  • Baujahr1970
  • Zustand der ImmobilieNeubau
  • HeizungsartZentralheizung
  • EnergieträgerGas
Immowelt logo

Mietkosten

Warmmiete
1.545 €
Kaltmiete
16,37 €/m²
1.375 €
Nebenkosten
170 €
Heizkosten
45 €
Kaution
4125 €

Lage

address-icon
Vorlaenderstr. 14, Innenstadt, Minden (32425)
Im Norden der Stadt - Nahe des Melittabads, befindet sich diese Wohnung.
Ein Auto brauchen Sie hier definitiv nicht!
Schulen und Kindergärten befinden sich um die Ecke - auch Einkaufsmöglichkeiten sind fußläufig zu erreichen - ideal für Familien!

- der nächste Supermarkt ist ca. 500m entfernt
- ein Kindergarten befindet sich nur eine StraĂźe weiter
- ein Cafe befindet sich ca. 700m entfernt
- eine Bushaltestelle ist in 2 Minuten zu FuĂź zu erreichen
- Innenstadt nur ca. 3km entfernt!

Weitere Informationen

Sonstiges Energieausweistyp: Verbrauchsausweis
Energiekennwert: 145,90 kWh/(m²*a)
Energieeffizienzklasse: E
Befeuerung/Energieträger: Erdgas leicht
Baujahr: 1970
Heizungsart: Zentralheizung

Wir bieten Ihnen zusätzlich:
- Hausmeisterservice
- Unser Notdienst: Erreichbarkeit 365 Tage im Jahr, rund um die Uhr! Auf uns können Sie zählen!
- Optional: Stellplatz 29 EUR mit BĂĽgel oder hinter Schranke fĂĽr 39 EUR
- Kellerraum fĂĽr 25 EUR monatlich

Die Kaution beträgt 3 Nettokaltmieten.
Tierhaltung ist nach Absprache gestattet.

Ein Besichtigungstermin kann individuell unter (0571) 8885 595 vereinbart werden - oder Sie besuchen uns in unseren Geschäftsräumen in der Hahler Str. 34, 32427 Minden - setzen Sie sich auch gerne wegen weiterer Angebote mit uns in Verbindung!
Unsere Geschäftszeiten sind täglich von 10-12:30 /13:30-18 Uhr, freitags von 10-14 Uhr

Unsere aktuellen Angebote finden Sie auch unter www.Wohnhaus-Minden.de
Klicken Sie mal rein Stichworte Bundesland: 05, 4 Etagen

Weitere Services

Lust auf eine Besichtigung?
Eine Frage zur Immobilie?
Nachricht hinzufĂĽgen
Mit der Nutzung der oben angegebenen Telefonnummer oder durch Klicken auf „Kontaktieren“ akzeptierst Du die Allgemeinen Nutzungsbedingungen, denen Du jederzeit widersprechen kannst. Weitere Informationen zum Datenschutz

Ăśber den Anbieter

Friedrichstr. 30, 10969 Berlin
partner badge
6 Jahre Partnerschaft
Herr Alexander-Constantin BrummDein Kontakt
Online-ID: 2j5u75m
Referenznummer: 2540
Berlinhaus Verwaltung GmbH
Berlinhaus Verwaltung GmbH
Bewertung: 4 von 5 Sternen
Nachricht hinzufĂĽgen
Mit der Nutzung der oben angegebenen Telefonnummer oder durch Klicken auf „Kontaktieren“ akzeptierst Du die Allgemeinen Nutzungsbedingungen, denen Du jederzeit widersprechen kannst. Weitere Informationen zum Datenschutz
Wie zufrieden bist du mit dieser Seite (nicht mit der Immobilie selbst)?