




Einfamilienhaus zum Kauf329000 €1.825 €/m²7 Zimmer • 180,4 m² • 438,1 m² Grundstück
329000 €
1.825 €/m²
7 Zimmer • 180,4 m² • 438,1 m² Grundstück
Familienfreundliches Wohnen nahe der Natur in Calw
Merkmale
- Bezug: nach Absprache
- 438,1 m² Grundstück
- Badewanne
- Gäste-WC
- Keller
- Balkon
- Garten
- Stellplatz
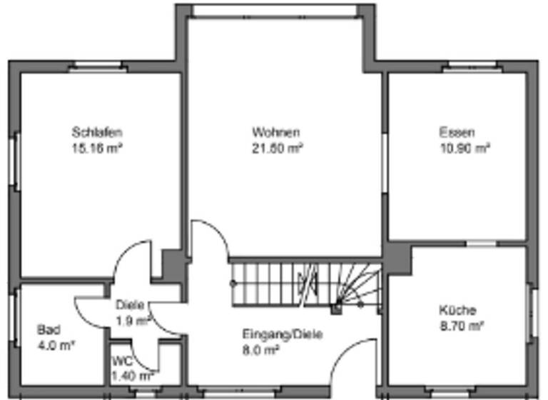
Grundrisse
Grundrisse
1 / 4
Virtueller Rundgang
3D tour

Realisiere Dein Projekt
Bausubstanz und Energie
Energieausweis
E
- Baujahr1940
- Zustand der ImmobilieGepflegt
- HeizungsartZentralheizung
- EnergieträgerElektro
Preisdetails
Kaufpreis
329000 €
1.825,04 €/m²
Provision für Käufer
Die Provision i.H.v. 3,57 % inkl. MwSt. ist mit Kaufvertragsbeurkundung fällig, sofern der Verkaufspreis über 83.000,00 € liegt.
Liegt der Verkaufspreis dagegen bei/unter 83. Weitere Informationen siehe Provisionshinweis.
Liegt der Verkaufspreis dagegen bei/unter 83. Weitere Informationen siehe Provisionshinweis.
Geschätzte Gesamtkosten
352.129 €1
Kaufpreis
329.000 €
Kaufnebenkosten
23.129 €
2Notarkosten (1,5%)
4.935 €
Grunderwerbsteuer (5%)
16.450 €
Provision für Käufer (0,03%)
99 €
Grundbucheintrag (0,5%)
1.645 €
1Der angezeigte Wert ist eine automatisch berechnete Schätzung von immowelt.
2Bei den Angaben handelt es sich um ortsübliche Werte. Individuelle Kosten können abweichen.
Lage

Calw (75365)
Der Anbieter hat die genaue Adresse nicht freigegeben
Weitere Informationen
Weitere Services
Lust auf eine Besichtigung?
Eine Frage zur Immobilie?
Über den Anbieter
Online-ID: 266P2I45MXST
Referenznummer: 5f3b19c24d
Wie zufrieden bist du mit dieser Seite (nicht mit der Immobilie selbst)?




