Version: 8.24.0Navigation ĂĽberspringen
495.000 €
4 Zimmer  â€˘  133,5 m²  â€˘  708 m² GrundstĂĽck
Immowelt logo

Mehrfamilienhaus zum Kauf
495000 €
4.475 €/m²
4 Zimmer  â€˘  133,5 m²  â€˘  708 m² GrundstĂĽck

Modernes Zweifamilienhaus in Bestlage

Dieses gepflegte Zweifamilienhaus wurde im Jahr 1900 errichtet. Die hellblau verputzte Fassade mit weißen Akzenten und einer dekorativen Zierleiste verleiht dem Gebäude ein einladendes und stilvolles Erscheinungsbild.

Das Haus verfügt über zwei Etagen mit jeweils einer abgeschlossenen Wohnung und einer gesamten Wohnfläche von ca. 128,5 m². Im Keller steht zudem eine Nutzfläche von ca. 48,06 m² zur Verfügung. Beide Wohnungen sind derzeit vermietet und generieren einen jährlichen Mietertrag von 15.732,00 €.

Die Immobilie wurde von 2013 bis 2015 umfassend saniert.

Beheizt wird das Gebäude über ein modernes Hybrid-Heizsystem, bestehend aus einer Wärmepumpe aus dem Jahr 2014 sowie einer Gaszentralheizung. Diese Kombination sorgt für Energieeffizienz und zuverlässige Wärmeversorgung.

Das Grundstück umfasst großzügige 708 m² und bietet vielfältige Möglichkeiten zur Gartennutzung oder individuellen Gestaltung.

Merkmale

  • Bezug: nach Vereinbarung
  • 708 m² GrundstĂĽck
  • Terrasse
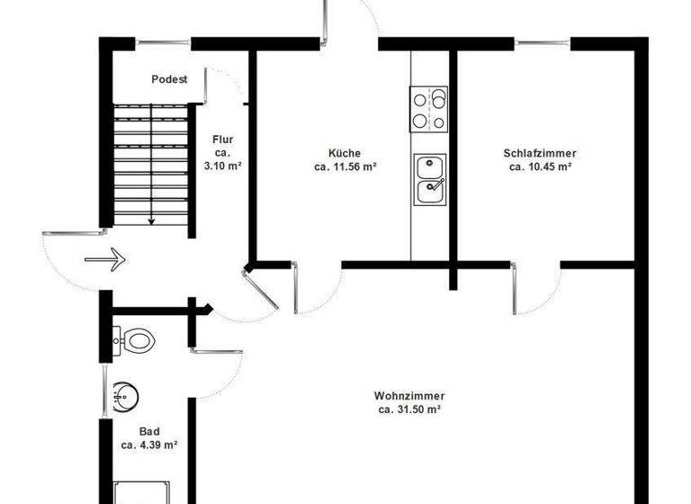
Ăśber ein gemeinsames Treppenhaus betreten Sie das Haus und gelangen von hier aus in die beiden nahezu identischen Wohnungen.
In der Erdgeschosswohnung betreten Sie direkt das großzügige Wohnzimmer. Mit einer Fläche von ca. 31,5 m² bietet dieser Raum ausreichend Platz, um Wohn- und Essbereich harmonisch zu vereinen. Die modernen, rechteckigen Fliesen verleihen der Wohnung ein zeitgemäßes Ambiente.
Das Tageslichtbad ist funktional gestaltet und bietet ausreichend Platz. Die Küchen sind hell und praktisch geschnitten. Ein Fenster sorgt hier nicht nur für gute Belüftung, sondern auch für eine freundliche Atmosphäre. Komplettiert werden die Wohnungen durch ein großzügiges Schlafzimmer. Die Obergeschosswohnung empfängt Sie mit einem kleinen Flur inklusive Garderobe.
Beide Wohnungen verfĂĽgen ĂĽber eine FuĂźbodenheizung.
Der gepflegte Außenbereich bietet eine große Werkstatt für ambitionierte Hobbybastler, eine Garage und eine große Rasenfläche.
Ob als Kapitalanlage oder langfristig zur Selbstnutzung - hier haben Sie alle Möglichkeiten.

Grundrisse

Grundrisse
1 / 3

Realisiere Dein Projekt

Bausubstanz und Energie

Energieausweis

D
  • Baujahr1900
  • EnergieträgerGas, Luft-/Wasser-Wärmepumpe
Immowelt logo

Preisdetails

Kaufpreis
495000 €
4.474,71 €/m²
Provision für Käufer
3,57 % inkl. MwSt.
Geschätzte Gesamtkosten
549.796 €1
Kaufpreis
495.000 €
Notarkosten (1,5%)
7.425 €
Grunderwerbsteuer (5,5%)
27.225 €
Provision für Käufer (3,57%)
17.671 €
Grundbucheintrag (0,5%)
2.475 €
1Der angezeigte Wert ist eine automatisch berechnete Schätzung von immowelt.
2Bei den Angaben handelt es sich um ortsübliche Werte. Individuelle Kosten können abweichen.

Lage

address-icon
Sinstorf, Hamburg (21079)
Der Anbieter hat die genaue Adresse nicht freigegeben
Die Immobilie befindet sich im attraktiven Hamburger Süden in Sinstorf, an der Grenze zu Langenbek im Bezirk Harburg. Die Lage verbindet naturnahes Wohnen mit guter Infrastruktur, ideal für Familien, Paare und Pendler. Langenbek bietet Nähe zum Harburger Stadtpark und grünem Umland, perfekt für Spaziergänge und Erholung. Schulen und Kitas in direkter Umgebung unterstreichen die Familienfreundlichkeit. Sinstorf punktet mit ländlichem Charme: Wälder, Wiesen und Felder prägen das Bild. Trotz ruhiger Lage sind Einkaufsmöglichkeiten und Einrichtungen des täglichen Bedarfs fußläufig erreichbar. Beide Stadtteile zeichnen sich durch ein entspanntes, familiäres Wohnumfeld aus. Die Anbindung ist hervorragend: HVV-Buslinien fahren nahezu vor der Haustür ab und führen direkt ins ca. 3 km entfernte Harburger Zentrum mit S-Bahn-Anschluss - von dort ist die Hamburger Innenstadt schnell erreicht.

Weitere Informationen

Stichworte Nutzfläche: 48,06 m², Anzahl der Schlafzimmer: 2, Anzahl Terrassen: 1, Bundesland: Hamburg, 2 Etagen, Distanz zum Kindergarten: 0.51, Distanz zur Grundschule: 0.23, Distanz zur nächsten Einkaufsmöglichkeit: 2.85, Distanz zum Gymnasium: 1.15, Distanz zum Hauptbahnhof: 2.79, Distanz zur Autobahn: 1.71, Distanz zum Bus: 0.15

Weitere Services

Lust auf eine Besichtigung?
Eine Frage zur Immobilie?
Nachricht hinzufĂĽgen
Mit der Nutzung der oben angegebenen Telefonnummer oder durch Klicken auf „Kontaktieren“ akzeptierst Du die Allgemeinen Nutzungsbedingungen, denen Du jederzeit widersprechen kannst. Weitere Informationen zum Datenschutz

Ăśber den Anbieter

BleichenbrĂĽcke 9, 20354 Hamburg
partner badge
Partnerschaft
Herr Hendrik Ritzkowsky
Herr Hendrik RitzkowskyDein Kontakt
Online-ID: 2mdkq5z
Referenznummer: WB 7550
Grossmann & Berger GmbH
title
Grossmann & Berger GmbH
Bewertung: 4,1 von 5 Sternen
Nachricht hinzufĂĽgen
Mit der Nutzung der oben angegebenen Telefonnummer oder durch Klicken auf „Kontaktieren“ akzeptierst Du die Allgemeinen Nutzungsbedingungen, denen Du jederzeit widersprechen kannst. Weitere Informationen zum Datenschutz
Wie zufrieden bist du mit dieser Seite (nicht mit der Immobilie selbst)?