Version: 8.25.1Navigation überspringen
Nageler Immobilien GmbH
434.900 €
4 Zimmer  •  90 m²

Haus zum Kauf - Erstbezug
434900 €
4.833 €/m²
4 Zimmer  •  90 m²

Idylle am Waldrand - Zuhause Mittewald

Die sechs Reihenhäuser zeichnen sich durch ihre großzügigen Raumaufteilungen aus. Sie erstrecken sich über zwei Etagen und bieten sowohl Paaren als auch Familien den idealen Lebensraum.
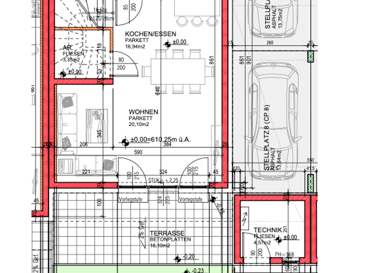
Im Erdgeschoss finden Sie einen Abstellraum, der sich ideal für die Lagerung von Haushaltsgegenständen eignet. Der lichtdurchflutete Wohn- und Essbereich bildet das Herzstück Ihres neuen Zuhauses mit direktem Zugang zur Terrasse und zum Garten, der Ihnen einen Ort der Entspannung im Freien bietet. Ein Gäste-WC rundet das Raumangebot im Erdgeschoss ab.
Das Obergeschoss bietet ein großzügiges Badezimmer und drei Schlafzimmer, die eine perfekte Rückzugsmöglichkeit für alle Bewohner schaffen.
Für Fahrzeuge stehen fünf Carportstellplätze, sechs freie Abstellplätze sowie Besucherparkplätze zur Verfügung.

Merkmale

  • Balkon
  • Garten
  • Terrasse
  • Badezimmer: Badewanne, Bad mit Fenster
  • Bodenbelag: Parkett

Grundrisse

Grundrisse
1 / 3

Realisiere Dein Projekt

Bausubstanz und Energie

Heizwärmebedarf (HWB)

B

Gesamtenergieeffizienz (fGEE)

A
  • Zustand der ImmobilieNeubau, Erstbezug
  • EnergieträgerLuft-/Wasser-Wärmepumpe
MediumRectangleTop

Preisdetails

Kaufpreis
434900 €
4.833,30 €/m²
Provision für Käufer
Bitte beachte, das Angebot beinhaltet bei Vertragsabschluss die Zahlung einer Provision. Weitere Informationen erhältst Du vom Anbieter.

Lage

address-icon
MittewaldVillach(Stadt) (9580)
Der Anbieter hat die genaue Adresse nicht freigegeben
Dieses Neubauprojekt wird in einer der begehrtesten Lagen von Villach realisiert. Direkt angrenzend an einen idyllischen Wald bietet es Ihnen eine friedliche Umgebung, die zu Spaziergängen, Radtouren und anderen Freizeitaktivitäten einlädt. Gleichzeitig profitieren Sie von einer hervorragenden Infrastruktur. Der malerische Faaker See, das Zentrum von Villach und zahlreiche Einkaufsmöglichkeiten sind nur wenige Autominuten entfernt. Eine Bushaltestelle in unmittelbarer Nähe sorgt dafür, dass Sie auch ohne Auto bestens angebunden sind. Hier entsteht ein Wohnumfeld, dass Ihnen die perfekte Balance zwischen Naturgenuss und urbanem Komfort bietet.

Weitere Services

Lust auf eine Besichtigung?
Eine Frage zur Immobilie?
Nachricht hinzufügen
Mit der Nutzung der oben angegebenen Telefonnummer oder durch Klicken auf „Kontaktieren“ akzeptierst Du die Allgemeinen Nutzungsbedingungen, denen Du jederzeit widersprechen kannst. Weitere Informationen zum Datenschutz

Über den Anbieter

Nageler Immobilien GmbH
Hausergasse 9, 9500 VILLACH
partner badge
Partnerschaft
Online-ID: 252XEKZKDNNF
Nageler Immobilien GmbH
Nageler Immobilien GmbH
Nachricht hinzufügen
Mit der Nutzung der oben angegebenen Telefonnummer oder durch Klicken auf „Kontaktieren“ akzeptierst Du die Allgemeinen Nutzungsbedingungen, denen Du jederzeit widersprechen kannst. Weitere Informationen zum Datenschutz
MediumRectangleTop
MediumRectangleBottom
MediumRectangleTop
Wie zufrieden bist du mit dieser Seite (nicht mit der Immobilie selbst)?