Version: 8.24.0Navigation ĂĽberspringen
539 €
1 Zimmer  â€˘  98 m² BĂĽrofläche
Immowelt logo

Bürofläche zur Miete • provisionsfrei
539 €
1 Zimmer  â€˘  98 m² BĂĽrofläche

In Autobahnnähe: Büroflächen in unterschiedlicher Größe

Bei dem Objekt handelt es sich um eine ehemaliges Fabrikgebäude welches seit 1990 bis heute sukzessive zu einem Bürogebäude mit kleinteiligen Büroeinheiten um- und ausgebaut wurde. Die Büroeinheiten haben eine Größe zwischen 30 und 100 m².
Auf dem Grundstück befinden sich Parkmöglichkeiten. Abstellmöglichkeiten/Lagermöglichen nach Abstimmung.

Merkmale

  • Bezug: sofort
  • 1. Geschoss
  • TeekĂĽche
  • AuĂźen-Stellplatz
  • Bodenbelag: Teppich
  • Beleuchtung: Deckenbeleuchtung
- TeekĂĽche zur gemeinschaftlichen Nutzung
- getrennte Damen- und Herren-Toiletten
- Deckenbeleuchtung vorhanden
- Lamellenvorhänge vorhanden
- Teppichboden
- Büroräume werden renoviert übergeben
- weitere Ausstattung erfolgt in Abstimmung mit dem Vermieter

Weitere BĂĽroeinheiten vorhanden:
Büro mit ca. 31,0 m² im 1. Obergeschoss, sofort frei
Büro mit ca. 34,5 m², 2 Zimmer, im 2. Obergeschoss, sofort frei
Büro mit ca. 32,6 m², im 2. Obergeschoss, ab 01.09.2023 frei
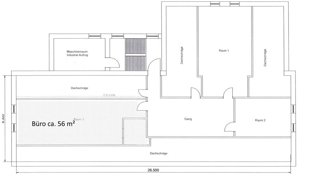
Büro mit ca. 56,0 m², im Dachgeschoss, frei nach Abstimmung
Kaltmiete: ab 5,50 € je m² zzgl. MwSt.
Nebenkosten: 4,00 € je m²
Lagerflächen: Miete auf Anfrage

Der Mietpreis ist als Basismietpreis zu verstehen und richtet sich nach Ausstattung und Vertragslaufzeit. Die Angaben verstehen sich zzgl. gesetzl. Mehrwertsteuer.



Realisiere Dein Projekt

Bausubstanz und Energie

Der Anbieter hat keine Informationen zum Energieverbrauch bereit gestellt.
  • Zustand der ImmobilieGepflegt
  • HeizungsartZentralheizung
  • EnergieträgerGas
Immowelt logo

Mietkosten

Warmmiete
931 €
Nettomiete
539 €
Nebenkosten
392 €
Heizkosten
in Nebenkosten enthalten
Zusätzliche Kosten
Miete pro Stellplatz
25 €
Provision fĂĽr Mieter
provisionsfrei; keine
Kaution
3 Monatsmieten

Lage

address-icon
Frabrikstraße 1, Herzogswalde, Wilsdruff (01723)
Das Bürogebäude liegt am Rande der Stadt Wilsdruff in einer kleinen ruhigen Seitenstraße und dennoch ist es ein Katzensprung zur Autobahnauffahrt der A 4. Durch diese sehr gute Autobahnanbindung ist das Dresdner Stadtzentrum in 30 Minuten, der Flughafen Klotzsche ist in ca. 15 Minuten zu erreichen.
Diese sehr gute Autobahnanbindung hat wesentlich dazu beigetragen, dass sich Wilsdruff zu einem guten Wirtschaftsstandort entwickelt hat. Das Gewerbegebiet in Kesselsdorf, als eines der Größten in Sachsen, ist ein weiterer wichtiger Faktor für die wirtschaftliche Entwicklung der Region.
Durch die Eingemeindungen und insgesamt zahlreichen Zuzügen wurde die Stadt zur Kommune mit dem größten Bevölkerungszuwachs in Sachsen.

Weitere Informationen

Sonstiges Alle Angaben beruhen auf Informationen vom Eigentümer, eine Haftung unsererseits ist ausgeschlossen. Irrtum und zwischenzeitlicher Vermietung des Mietgegenstandes bleiben vorbehalten. Dieses Exposé ist eine Vorinformation, als Rechtsgrundlage gilt allein der rechtsverbindliche Mietvertrag. Stichworte Sonstiges: Getrennte Damen- und Herren-WCs

Weitere Services

Lust auf eine Besichtigung?
Eine Frage zur Immobilie?
Nachricht hinzufĂĽgen
Mit der Nutzung der oben angegebenen Telefonnummer oder durch Klicken auf „Kontaktieren“ akzeptierst Du die Allgemeinen Nutzungsbedingungen, denen Du jederzeit widersprechen kannst. Weitere Informationen zum Datenschutz

Ăśber den Anbieter

Wägnerstr. 6, 01309 Dresden
partner badge
Partnerschaft
Frau Steffi GablerDein Kontakt
Online-ID: 2bmmn55
Referenznummer: 202332G
rs Immobilienberatung GmbH
rs Immobilienberatung GmbH
Bewertung: 4,8 von 5 Sternen
Nachricht hinzufĂĽgen
Mit der Nutzung der oben angegebenen Telefonnummer oder durch Klicken auf „Kontaktieren“ akzeptierst Du die Allgemeinen Nutzungsbedingungen, denen Du jederzeit widersprechen kannst. Weitere Informationen zum Datenschutz
Wie zufrieden bist du mit dieser Seite (nicht mit der Immobilie selbst)?