Version: 8.24.0Navigation überspringen
2.950 €
4 Zimmer  •  160 m²
Immowelt logo

Maisonette zur Miete
2.950 €
4 Zimmer  •  160 m²

Ist es Liebe auf den ersten Blick oder wollen Sie noch einmal reinkommen?

In einem kleinen, gepflegten 4-Familienhaus erwartet Sie diese großzügige, modernisierte Maisonettewohnung, die sich über das 1. und 2. Obergeschoss erstreckt und eine zusätzlich zu nutzende Fläche im Spitzboden bietet. Mit einer durchdachten Raumaufteilung und hochwertiger Ausstattung, bietet diese Wohnung ein einzigartiges Wohnerlebnis für anspruchsvolle Mieter.

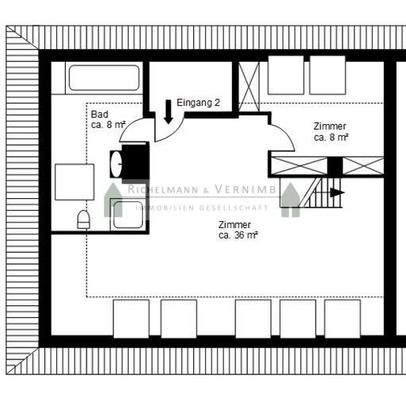
Man betritt die Wohnung im 1. Obergeschoss und gelangt in einen großzügigen Eingangsbereich mit Platz für die Garderobe. Die angrenzende, neu gestaltete und hochwertig ausgestattete Wohnküche mit viel Platz für einen großzügigen Esstisch und bietet einen hervorragenden Rahmen für kulinarische Erlebnisse. Ebenfalls sehr großzügig dimensioniert ist der nach Süden ausgerichtete Wohnbereich mit offenem Kamin und angrenzender Loggia. Von hier bieten sich herrliche Blickachsen, bis in den Hirschpark hinein. Ein Schlafzimmer mit anschließendem Duschbad sowie ein Gäste-WC runden diese Wohnebene ab.

Über eine interne Treppe, oder auch über das Treppenhaus, gelangt man in die 2. Ebene der Wohnung. Hier stehen ein weiterer, sehr großzügiger und vielseitig zu nutzender Raum, ein kleines Schlafzimmer bzw. Büro mit Zugang in einen mit Teppichboden ausgelegten Spitzboden und ein modernes Badezimmer mit Wanne und separater Dusche zur Verfügung.
Im Keller des Hauses finden Sie einen Abstellraum und die gemeinschaftlich zu nutzende Waschküche mit Anschlüssen für die eigene Maschine vor.

Abgerundet wird dieses Angebot durch ein bis zwei Stellplätze in einer Doppelgarage.

Diese Maisonettewohnung eignet sich perfekt für Mieter, die auf der Suche nach einem stilvollen und großzügigen Zuhause mit viel Raum und einer modernen Ausstattung sind. Überzeugen Sie sich bei einer Besichtigung von den vielen Vorteilen dieser einzigartigen Wohnung!

Merkmale

  • Einbauküche
  • 2 Stellplätze: 2 Garagen
  • Gäste-WC
  • Badezimmer: Badewanne, Bad mit Dusche, Bad mit Fenster
  • Waschraum
  • Bodenbelag: Fliesen, Holzdielen, Teppich

Grundrisse

Grundrisse
1 / 2

Realisiere Dein Projekt

Bausubstanz und Energie

Energieausweis

E
  • Baujahr1971
  • HeizungsartZentralheizung
  • EnergieträgerGas
Immowelt logo

Mietkosten

Kaltmiete
18,44 €/m²
2.950 €
Nebenkosten
370 €
Zusätzliche Kosten
Heizkosten
Miete pro Stellplatz
125 €
Kaution
keine Angabe
Weitere Preisinformationen
2 Garagenstellplätze, Miete je: 125,00 EUR

Lage

address-icon
NienstedtenHamburg (22587)
Der Anbieter hat die genaue Adresse nicht freigegeben
1A-Lage Die Stauffenbergstraße besticht durch ihre ruhige, grüne Lage in einem der begehrtesten Stadtteile der Hansestadt. Umgeben von prachtvollen Villen und ansprechenden Einfamilienhäusern, bietet die Straße eine harmonische Wohnatmosphäre, die sowohl Ruhe als auch den Reiz des urbanen Lebens vereint. Mit direkter Nähe zum Hirschpark, der Elbe und malerischen Wanderwegen ist sie ideal für Naturliebhaber und bietet zahlreiche Freizeitmöglichkeiten.

Die gute Anbindung an öffentliche Verkehrsmittel sowie die Nähe zu Einkaufsmöglichkeiten, Schulen und Restaurants machen die Stauffenbergstraße zu einem attraktiven Standort für Familien und Berufstätige gleichermaßen.

Weitere Informationen

Sonstiges Bitte beachten Sie die nachfolgenden Hinweise:

Eine Hunde-/Katzenhaltung ist ausgeschlossen.

Weiterhin werden eine Mindestmietdauer von 2 Jahren und eine Indexmiete vereinbart.


Wir stehen Ihnen gern für eine Besichtigung zur Verfügung.

Bitte haben Sie dafür Verständnis, dass weitere Objektangaben nur nach Übermittlung Ihres vollständigen Namens und Ihrer Telefonnummer zur Verfügung gestellt werden können. Stichworte Sonstiges/Wohnen: Dachboden

Weitere Services

Lust auf eine Besichtigung?
Eine Frage zur Immobilie?
Nachricht hinzufügen
Mit der Nutzung der oben angegebenen Telefonnummer oder durch Klicken auf „Kontaktieren“ akzeptierst Du die Allgemeinen Nutzungsbedingungen, denen Du jederzeit widersprechen kannst. Weitere Informationen zum Datenschutz

Über den Anbieter

Auguste-Baur-Straße 13, 22587 Hamburg
partner badge
6 Jahre Partnerschaft
Herr Sebastian VernimbDein Kontakt
Online-ID: 2lecl5t
Referenznummer: RV-2025-425
RICHELMANN & VERNIMB Immobilien GmbH
RICHELMANN & VERNIMB Immobilien GmbH
Bewertung: 4,8 von 5 Sternen
Nachricht hinzufügen
Mit der Nutzung der oben angegebenen Telefonnummer oder durch Klicken auf „Kontaktieren“ akzeptierst Du die Allgemeinen Nutzungsbedingungen, denen Du jederzeit widersprechen kannst. Weitere Informationen zum Datenschutz
Wie zufrieden bist du mit dieser Seite (nicht mit der Immobilie selbst)?