

Wohnung zum Kauf - Erstbezug • provisionsfrei477000 €5.237 €/m²3 Zimmer • 91,1 m² • 2. Geschoss
477000 €
5.237 €/m²
3 Zimmer • 91,1 m² • 2. Geschoss
Erstbezug nach Sanierung - helle 3-Zimmer-Wohnung mit Balkon in ruhiger Lage
Merkmale
- Bezug: sofort
- 2. Geschoss
- Barrierefrei
- Einbauküche
- Keller
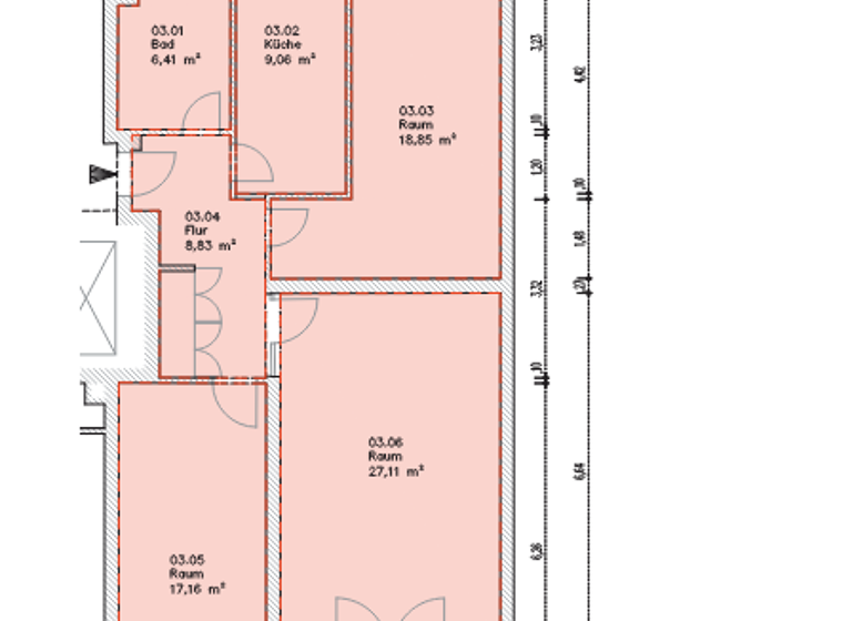
Grundrisse
Grundrisse
1 / 1
Virtueller Rundgang
3D tour

Realisiere Dein Projekt
Bausubstanz und Energie
Energieausweis
C
- Baujahr1996
- Zustand der ImmobilieErstbezug
- HeizungsartZentralheizung
- EnergieträgerGas
Preisdetails
Kaufpreis
477000 €
5.237,15 €/m²
Hausgeld
476 €
Provision für Käufer
provisionsfrei; Für Käufer provisionsfrei
Geschätzte Gesamtkosten
515.160 €1
Kaufpreis
477.000 €
Kaufnebenkosten
38.160 €
2Notarkosten (1,5%)
7.155 €
Grunderwerbsteuer (6%)
28.620 €
Grundbucheintrag (0,5%)
2.385 €
1Der angezeigte Wert ist eine automatisch berechnete Schätzung von immowelt.
2Bei den Angaben handelt es sich um ortsübliche Werte. Individuelle Kosten können abweichen.
Lage

Adlershof, Berlin (12489)
Der Anbieter hat die genaue Adresse nicht freigegeben
Weitere Informationen
Weitere Services
Lust auf eine Besichtigung?
Eine Frage zur Immobilie?
Über den Anbieter
Döringstr. 7, 10245 Friedrichshain-Kreuzberg
Partnerschaft
Team FLEXMAKLERDein Kontakt
Online-ID: 26TZQKDQUB7G
Referenznummer: 843#3X3IX0

FLEXMAKLER GmbH
Wie zufrieden bist du mit dieser Seite (nicht mit der Immobilie selbst)?

