Version: 8.22.5Navigation ĂĽberspringen
569.000 €
Immowelt logo

Büro zum Kauf - Erstbezug • provisionsfrei
569000 €

Provisionsfrei: Flexible Büro- oder Praxisfläche für Ihre individuellen Bedürfnisse

Sie suchen eine Büro- oder Praxisfläche in Oberndorf bei Salzburg? Diese großzügige Immobilie im Erdgeschoss bietet Ihnen nicht nur eine exzellente Lage, sondern auch die Möglichkeit das Lokal nach Ihren eigenen Vorstellungen zu gestalten. Mit einer Fläche von 152 m² und einer grundsanierten Basis bietet diese Immobilie enormes Potenzial für Ihr neues Geschäft.

Das Objekt wird erst fertiggestellt. So haben Sie die Möglichkeit bei der finalen Gestaltung aktiv mitzuwirken.

Die Lage ist ideal: Mit guter Anbindung an Bus und Bahnhof sind Sie stets bestens erreichbar. Für Ihre Kunden oder Patienten ist die Anreise ebenfalls bequem. In der Nähe befinden sich zahlreiche wichtige Einrichtungen wie Ärzte, Apotheken, Kliniken, Schulen, Supermärkte und Bäckereien - perfekt für Ihr neues Büro oder Ihre Praxis.

Nutzen Sie diese einmalige Gelegenheit sich in Oberndorf bei Salzburg niederzulassen und die Gestaltung Ihres neuen Büro- oder Praxislokals mitzubestimmen! Kontaktieren Sie uns für weitere Informationen oder eine Besichtigung - wir freuen uns darauf, Ihnen dieses vielversprechende Objekt näherzubringen!

Infrastruktur / Entfernungen

Gesundheit
Arzt <500m
Apotheke <500m
Klinik <1.000m
Krankenhaus <500m

Kinder & Schulen
Kindergarten <500m
Schule <500m
Höhere Schule <2.000m

Nahversorgung
Supermarkt <500m
Bäckerei <500m

Sonstige
Geldautomat <500m
Bank <500m
Post <500m
Polizei <500m

Verkehr
Bus <500m
Bahnhof <500m

Angaben Entfernung Luftlinie / Quelle: OpenStreetMap

Merkmale

  • Bezug: sofort
  • Erdgeschoss
  • Barrierefrei

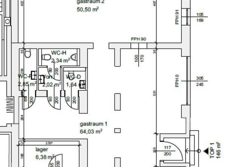
Grundrisse

Grundrisse
1 / 1

Realisiere Dein Projekt

Bausubstanz und Energie

Heizwärmebedarf (HWB)

B

Gesamtenergieeffizienz (fGEE)

C
  • Baujahr1975
  • Zustand der ImmobilieErstbezug
Immowelt logo

Preisdetails

Kaufpreis
569000 €
Provision für Käufer
provisionsfrei; Provision bezahlt der Abgeber.

Lage

address-icon
Oberndorf bei Salzburg (5110)

Weitere Informationen

Stichworte Nutzfläche: 152,00 m², Bundesland: Salzburg, 4 Etagen, Wohnungsnr.: 1

Weitere Services

Lust auf eine Besichtigung?
Eine Frage zur Immobilie?
Nachricht hinzufĂĽgen
Mit der Nutzung der oben angegebenen Telefonnummer oder durch Klicken auf „Kontaktieren“ akzeptierst Du die Allgemeinen Nutzungsbedingungen, denen Du jederzeit widersprechen kannst. Weitere Informationen zum Datenschutz

Ăśber den Anbieter

LandstraĂźer HauptstraĂźe 60, 1030 WIEN
Frau Raveena JanagalDein Kontakt
Online-ID: 2mjy95b
Referenznummer: OBGC202511121717337620bf7850ec4
s REAL Immobilienvermittlung GmbH
s REAL Immobilienvermittlung GmbH
Nachricht hinzufĂĽgen
Mit der Nutzung der oben angegebenen Telefonnummer oder durch Klicken auf „Kontaktieren“ akzeptierst Du die Allgemeinen Nutzungsbedingungen, denen Du jederzeit widersprechen kannst. Weitere Informationen zum Datenschutz
Wie zufrieden bist du mit dieser Seite (nicht mit der Immobilie selbst)?