

Restaurant zur Miete3.395 €
3.395 €
Gratkorn, Geschäftsfläche ideal für Gastro
Merkmale
- Bezug: ab sofort
- Stellplatz
- Terrasse
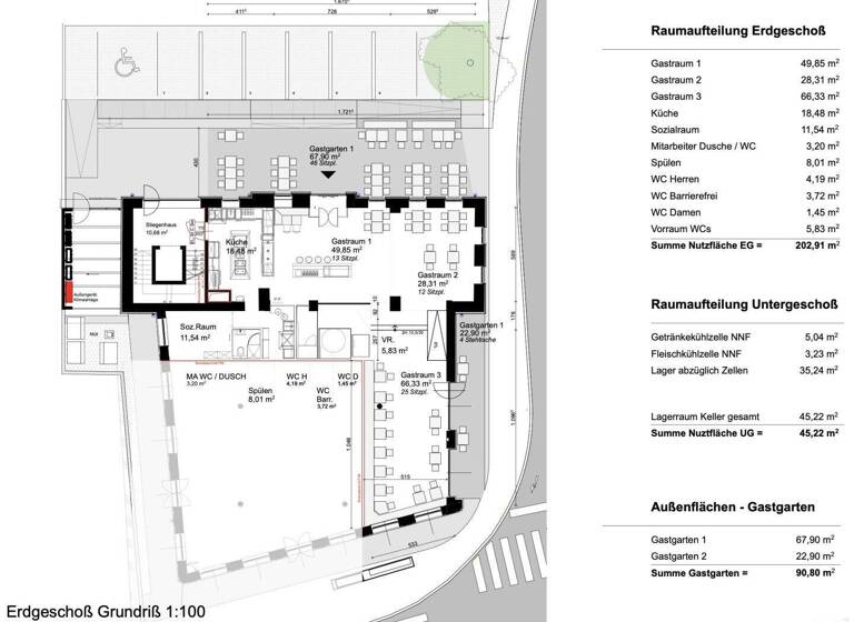
Grundrisse
Grundrisse
1 / 3
Realisiere Dein Projekt
Bausubstanz und Energie
Möchtest du Details zum Energieverbrauch?

Mietkosten
Gesamtmiete
3.394,99 €
Nettokaltmiete zzgl. Betriebskosten
3.394,99 €
Nicht in Gesamtmiete enthalten
Heizkosten
Provision für Mieter
3 BMM zzgl. 20% MwSt.
Kaution
3 BMM Überweisung
Weitere Preisinformationen
netto/m² zzgl. BK, HK und gesetzl. MwSt., Nettokaltmiete: 3.394,99 EUR
Lage

Gratkorn (8101)
Der Anbieter hat die genaue Adresse nicht freigegeben
Weitere Informationen
Weitere Services
Lust auf eine Besichtigung?
Eine Frage zur Immobilie?
Über den Anbieter
Grazer Straße 48, 8101 Gratkorn
Partnerschaft

Herr Patrick GroßschädlDein Kontakt
Online-ID: 254ECR58B9VI
Referenznummer: O2100164724


Papst Immobilien GmbH
Wie zufrieden bist du mit dieser Seite (nicht mit der Immobilie selbst)?

