Version: 8.26.0Navigation überspringen
5 €
Immowelt logo

Büro zur Miete • provisionsfrei
5 €
/m²

Gewerbeeinheit in zentraler Lage von Grünhain-Beierfeld!

Die angebotene Gewerbeeinheit befindet sich in zentraler Lage von Grünhain-Beierfeld direkt am Markt.
Das ehemalige Reisebüro bietet vielfältige Nutzungsmöglichkeiten und eignet sich ideal als Büro, Praxis, Ladengeschäft oder ein Dienstleistungsunternehmen..

Direkt vor der Einheit stehen Parkplätze zur Verfügung, die Kunden und Mitarbeiter bequem nutzen können.

Merkmale

  • frei ab sofort
  • Teeküche
  • Bodenbelag: Fliesen
  • Garage
Individuelle Ausstattungsmerkmale:

- zusätzliches Lager oder Garage

Die Gesamtgewerbefläche erstreckt sich über ca. 71 m² und bietet ausreichend Platz für individuelle Geschäftskonzepte.
Die Immobilie verfügt über einen großen Hauptgewerberaum sowie einen separaten, durch eine Tür abgetrennten zweiten Gewerberaum, der zusätzliche Möglichkeiten für unterschiedliche Nutzungen bietet.
Eine Teeküche, ein WC sowie ein Lagerbereich ergänzen die Gewerbeeinheit und bieten Komfort und Funktionalität für den täglichen Betrieb.
Eine zusätzliche Garage kann entweder als Lagerfläche oder zur sicheren Unterbringung von Fahrzeugen genutzt werden. Die monatliche Miete für die Garage beträgt lediglich 70 €.

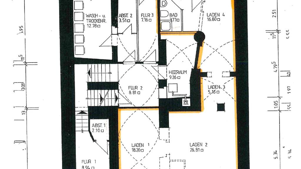
Grundrisse

Verschaffe dir einen genauen Überblick über die Raumaufteilung.selection_property_house-icon

Bausubstanz und Energie

Energieausweis

D
  • Baujahr1990
  • Zustand der ImmobilieMassivhaus, renoviert / saniert
  • HeizungsartZentralheizung
  • EnergieträgerGas
Immowelt logo

Mietkosten

Warmmiete
484 €
Nettomiete
5 €/m²
354 €
Nebenkosten
130 €
Heizkosten
in Warmmiete enthalten
Zusätzliche Kosten
Miete pro Stellplatz
70 €
Provision für Mieter
provisionsfrei
Kaution
708 €
Weitere Preisinformationen
1 Garagenstellplatz, Miete: 70,00 EUR
Nettokaltmiete: 354,00 EUR

Lage

address-icon
Auer Straße 32GrünhainGrünhain-Beierfeld (08344)
Direkt am Markt von Grünhain-Beierfeld gelegen, bietet diese Gewerbeeinheit eine unschlagbare zentrale Lage mit optimaler Sichtbarkeit und Zugänglichkeit für Kunden und Geschäftspartner.
Aus der Gemeinde Beierfeld und der Stadt Grünhain wurde im Jahre 2005 die Stadt Grünhain-Beierfeld. Diese attraktive Stadt mit ca. 6.200 Einwohnern und ihren drei Stadtteilen Beierfeld, Grünhain und Waschleithe, liegt im westlichen Teil vom Erzgebirge.
Die Stadt profitiert von ihrer Lage nahe der Bundesstraße B101 und der Nähe zu größeren Städten wie Chemnitz und Zwickau, was die logistische Anbindung erleichtert.

Weitere Informationen

Sonstiges Weitere Unterlagen und Informationen zum Objekt können wir Ihnen gern bei Interesse mitteilen.

Einen Besichtigungstermin können wir telefonisch unter 03727 9444-235 mit Ihnen vereinbaren.
Wir sind nicht bereit und nicht verpflichtet, außer an dem Verfahren der IVD Ombudsstelle an einem Verbraucherstreitbeilegungsverfahren teilzunehmen. Die IVD Ombudsstelle erreichen Sie unter Ombudsmann Immobilien IVD/VPB - Grunderwerb und Verwaltung, Littenstr. 10, 10179 Berlin, 10179 Berlin, E-Mail: info@ombudsmann-immobilien.de.

Verbraucherinformationen - http://ec.europa.eu/consumers/odr Stichworte Garage vorhanden, Gesamtfläche: 70,74 m², Bundesland: Sachsen, 4 Etagen

Weitere Services

Lust auf eine Besichtigung?
Eine Frage zur Immobilie?
Mit einer persönlichen Nachricht hast du bessere Chancen auf eine Antwort.
Mit der Nutzung der oben angegebenen Telefonnummer oder durch Klicken auf „Kontaktieren“ akzeptierst Du die Allgemeinen Nutzungsbedingungen, denen Du jederzeit widersprechen kannst. Weitere Informationen zum Datenschutz

Über den Anbieter

Markt 25, 09648 Mittweida
partner badge
6 Jahre Partnerschaft
Frau Nancy Stasche
Frau Nancy StascheDein Kontakt
Online-ID: 24HYEJSMPCWF
Referenznummer: 3184
Wie zufrieden bist du mit dieser Seite (nicht mit der Immobilie selbst)?