Version: 8.22.4Navigation ĂĽberspringen
18,27 €
56 m² Verkaufsfläche
Immowelt logo

Laden zur Miete
18,27 Euro pro Quadratmeter
56 m² Verkaufsfläche

Modernes Geschäftslokal in Top-Lage!

Modernes Geschäftslokal in Top-Lage in der Fußgängerzone von St. Pölten - Landeshauptstadt von Niederösterreich mit fast 60.000 Einwohnern und einem großen Einzugsgebiet!

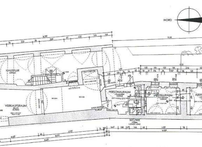
Mietfläche und Raumaufteilung:
Das im Erdgeschoß befindliche Geschäftslokal verfügt über eine Nutzfläche von ca. 104 m² und gliedert sich in:
Verkaufsraum, Mitarbeiterbereich, 2 Lagerräume, sowie ein WC;

Verwendungsmöglichkeit:
Aufgrund der sehr guten Lage im Stadtzentrum innerhalb der Fußgängerzone für fast alle Handels- und Dienstleistungszwecke geeignet.

Monatliche Kosten:
Hauptmietzins für das Geschäftslokal € 1.900,00 (wertgesichert),
Betriebskosten-akonto derzeit ca. € 198,93
jeweils netto zuzĂĽglich 20 % USt.

Vertragskonditionen:
Der Mietvertrag wird je nach Vereinbarung, auf einen Zeitraum von 4 bis 10 Jahren befristet.

Heizung:
Die Beheizung des Geschäftslokals erfolgt mittels Fernwärme.

Energiekennzahl:
Die Liegenschaft besitzt die Kennzahl C bei einem Heizwärmebedarf (HWB) von 94,00 kWh/m².

VerfĂĽgbarkeit:
Das Objekt steht ab sofort (01.03.2026) zur VerfĂĽgung.

Nebenkosten:
a) Kaution: EUR 8.000,00
b) Vergebührung: abhängig von vereinbarter Mietdauer
c) Vermittlungsprovision

Auf ein wirtschaftliches Naheverhältnis zur Vermieterin aufgrund regelmäßiger Beauftragung wird hingewiesen.

Besichtigung:
FĂĽr RĂĽckfragen sowie zur Vereinbarung eines unverbindlichen Besichtigungstermins stehen wir Ihnen gerne zur VerfĂĽgung.

NÜTZEN SIE DIE CHANCE auf einen der attraktivsten und besten Standorte in der St. Pöltener Fußgängerzone für Ihren 1. Standort oder für die Standortoptimierung bestehender Standorte!

Objektnummer: 5840
Halten Sie bitte bei telefonischen AuskĂĽnften diese Objektnummer bereit.

Wir ersuchen aus organisatorischen Gründen (Datenbankpflege) und aufgrund unserer Nachweispflicht gegenüber dem Abgeber um vollständige Angabe Ihrer Kontaktdaten einschließlich Vor- und Zuname, Adresse und Telefonnummer. Der Schutz Ihrer personenbezogenen Daten ist uns ein großes Anliegen. Wir verwenden Ihre Daten für die Interessenten- und Kundenverwaltung im Rahmen der Immobilienvermittlung (z.B. für die Zusendung von Immobilienangeboten). Die Rechtsgrundlage dafür bildet sofern nicht eine gesetzliche Grundlage vorliegt ein abgeschlossener Vertrag bzw. eine Vertragsanbahnung (Vermittlungsvertrag). Die Weitergabe personenbezogener Daten erfolgt ohne ausdrückliche separate Einwilligung nur insoweit, wie es für Vertragsabwicklungen erforderlich ist. Keinesfalls werden Ihre Daten zu Werbezwecken o.ä. weitergegeben. Unsere Mitarbeiter und unsere Dienstleistungsunternehmen sind zur Verschwiegenheit und zur Einhaltung der Datenschutzbestimmungen verpflichtet. Lesen Sie mehr in unserer Datenschutzerklärung auf unserer Homepage.

Merkmale

  • Bezug: sofort
  • Barrierefrei

Grundrisse

Grundrisse
1 / 1

Realisiere Dein Projekt

Bausubstanz und Energie

Heizwärmebedarf (HWB)

C

Gesamtenergieeffizienz (fGEE)

Der Anbieter hat keine Daten zum Energieausweis hinterlegt.
  • Baujahr1735
  • Zustand der ImmobilieAltbau (bis 1945)
  • HeizungsartZentralheizung
  • EnergieträgerFernwärme
Immowelt logo

Mietkosten

Gesamtmiete
2.518,72 €
Nettokaltmiete
18,27 €/m²
1.900 €
Betriebskosten
238,72 €
Umsatzsteuer
419,79 €
Provision fĂĽr Mieter
3 BMM
Kaution
8000 €
Weitere Preisinformationen
Nettokaltmiete: 1.900,00 EUR

Lage

address-icon
St. Pölten (3100)
Der Anbieter hat die genaue Adresse nicht freigegeben
Altstadt, Bahnhofsnähe, Frequenzlage, Fußgängerzone, öffentl. Verkehrsmittel, repräsentativ, Zentrum

Weitere Informationen

Stichworte Nutzfläche: 104,00 m²

Weitere Services

Lust auf eine Besichtigung?
Eine Frage zur Immobilie?
Nachricht hinzufĂĽgen
Mit der Nutzung der oben angegebenen Telefonnummer oder durch Klicken auf „Kontaktieren“ akzeptierst Du die Allgemeinen Nutzungsbedingungen, denen Du jederzeit widersprechen kannst. Weitere Informationen zum Datenschutz

Ăśber den Anbieter

JosefstraĂźe 19, 3100 ST. PĂ–LTEN
partner badge
Partnerschaft
Herr Gregor LAMPDein Kontakt

Weitere Unterlagen

Online-ID: 2n7jc54
Referenznummer: 202/05840
Realkanzlei Edlauer Immobilientreuhänder GmbH
Realkanzlei Edlauer Immobilientreuhänder GmbH
Bewertung: 4,5 von 5 Sternen
Nachricht hinzufĂĽgen
Mit der Nutzung der oben angegebenen Telefonnummer oder durch Klicken auf „Kontaktieren“ akzeptierst Du die Allgemeinen Nutzungsbedingungen, denen Du jederzeit widersprechen kannst. Weitere Informationen zum Datenschutz
Wie zufrieden bist du mit dieser Seite (nicht mit der Immobilie selbst)?