Besondere Maisonette-Wohnung mit 4 Zimmern in Burgdorf verfügbar
Die gepflegte Wohnanlage wurde 1994 erbaut und liegt in einer ruhig gelegenen Straße in Burgdorf.
Felder und Wiesen für ausgedehnte Spaziergänge in der Natur finden Sie unmittelbar vor der Haustür.
Die Treppenhausreinigung erfolgt durch einen Dienstleister und ist bereits in der Nebenkostenvorauszahlung enthalten.
Merkmale
frei ab 01.06.2026
Dachgeschoss, Erdgeschoss
Keller
Balkon
2 Stellplätze: 2 Außen-Stellplätze
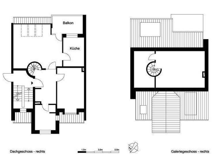
Diese charmante, ca. 96 m² große Dachgeschosswohnung bietet Ihnen viel Raum zur Entfaltung und ein ganz besonderes Wohngefühl auf zwei Ebenen.
Die attraktive 4-Zimmer-Galeriewohnung befindet sich im Dachgeschoss einen gepflegten Mehrfamilienhauses und erstreckt sich über zwei Ebenen, die durch eine stilvolle Wendeltreppe miteinander verbunden sind. Die Wohnung wird Ihnen unrenoviert, jedoch in einem gepflegten Zustand übergeben - ideal, um Ihre eigenen Wohnideen und Vorstellungen zu verwirklichen.
Gern kann die Wohnung nach individueller Absprache bereits zum 01.05.2026 vermietet werden.
Im oberen Bereich erwartet Sie die offene Galerie mit dem Schlafzimmer sowie einem weiteren Raum. Dieser eignet sich hervorragend als Ankleide, kleines Homeoffice oder zusätzliche Abstellfläche - ganz flexibel nach Ihren Bedürfnissen. Eine praktische Schiebetür sorgt dabei für eine angenehme Trennung zwischen Wendeltreppe und Schlafbereich.
Im unteren Wohnbereich befinden sich die Küche, ein helles und großzügiges Wohnzimmer mit ansprechender Fensterfront, ein geräumiges Badezimmer sowie ein weiteres Zimmer, das sich ideal als Kinder-, Gäste- oder Arbeitszimmer nutzen lässt.
Ein besonderes Highlight ist der sonnige Balkon in Südwest-Ausrichtung, den Sie direkt vom Wohnzimmer aus erreichen - perfekt, um den Tag entspannt ausklingen zu lassen.
Das Tageslichtbad überzeugt mit einer Kombination aus Badewanne und Dusche. Zudem ist ausreichend Platz für Ihre Waschmaschine vorhanden; der entsprechende Anschluss ist bereits installiert.
Flur, Küche und Badezimmer sind mit hellen, zeitlosen Bodenfliesen ausgestattet. In den Wohnräumen sorgt ein moderner Design-Vinylboden in Holzoptik für eine warme und einladende Atmosphäre.
Die vorhandene Küche kann bei Interesse gegen eine Abstandszahlung vom Vormieter übernommen werden.
Abgerundet wird dieses Angebot durch einen eigenen Kellerraum, einen gemeinschaftlich nutzbaren Fahrradkeller sowie zwei bereits in der Miete enthaltenen Stellplätzen für Ihre Fahrzeuge.
Grundrisse
Grundrisse
1 / 1
Realisiere Dein Projekt
Bausubstanz und Energie
Energieausweis
D
Baujahr1994
Zustand der ImmobilieGepflegt
HeizungsartZentralheizung
EnergieträgerGas
Mietkosten
Warmmiete
1.378 €
Kaltmiete
10,25 €/m²
985 €
Nebenkosten
163 €
Heizkosten
230 €
Kaution
2950 €
Weitere Preisinformationen
2 Stellplätze Nettokaltmiete: 985,00 EUR
Lage
Kreuzbruch 7, Burgdorf (31303)
Die Infrastruktur in Burgdorf ist hervorragend ausgebaut. In der charmanten Innenstadt finden Sie zahlreiche Einkaufsmöglichkeiten, darunter Supermärkte, Boutiquen und Wochenmärkte, die eine frische und regionale Auswahl bieten. Darüber hinaus sorgen Ärzte, Apotheken, Banken und andere Dienstleister für eine umfassende Versorgung.
Mit der S-Bahn erreichen Sie Hannover in etwa 20 Minuten, was Pendeln äußerst bequem macht. Zudem bieten die nahegelegenen Autobahnen A2 und A7 sowie die Bundesstraßen B188 und B3 schnelle Verbindungen in alle Richtungen.
Burgdorf bietet zahlreiche Freizeit- und Erholungsmöglichkeiten. Die umliegenden Wälder, Parks und der nahe gelegene Burgdorfer Auepark laden zu ausgedehnten Spaziergängen, Radtouren und entspannten Stunden in der Natur ein.
Wenn Sie das Landleben bevorzugen und dennoch nicht auf die Vorzüge einer Stadt verzichten möchten, finden Sie hier die ideale Wohnlage.
Weitere Informationen
Sonstiges
Die hier gezeigten Bilder stammen aus der Zeit vor dem Auszug des aktuellen Mieters. Die Wohnung wird Ihnen selbstverständlich leergeräumt und grundgereinigt übergeben wird.
Bei Interesse bieten wir gerne eine Besichtigung an, um Ihnen einen persönlichen und genauen Einblick in die angebotene Wohnung zu ermöglichen. Wir freuen uns auf Ihre Kontaktaufnahme!
Ein Highlight für Sie sei noch erwähnt: Mit einer Wohnung von meravis steht Ihnen auch ein umfangreicher digitaler Service über unsere Mieter-App zur Verfügung! Zusätzlich erhalten Sie einen Überblick über Ihren monatlichen Energieverbrauch (UVI).
Aufgrund der schwankenden Energiepreise kann es zu Abweichungen bei den Vorauszahlungen der Betriebs- und Heizkosten kommen.
Stichworte
Anzahl Balkone: 1, 3 Etagen