Version: 8.25.1Navigation überspringen
310.000 €
Immowelt logo

Land-/Forstwirtschaft zum Kauf
310000 €

Baugrundstück 690m2 zum Kauf - Zadar, Privlaka

PRIVLAKA - 18KM SJEVERNO OD ZADRA

Na prodaju gradevinsko zemljiste s projektom i dozvolom - Privlaka, Sabunike

Na izvrsnoj lokaciji, svega 400 m od mora i plaze te u neposrednoj blizini svih vaznih sadrzaja, prodaje se gradevinsko zemljiste s potpunom projektnom dokumentacijom i pravomocnom gradevinskom dozvolom. Fotografije obliznje plaze su u oglasu.

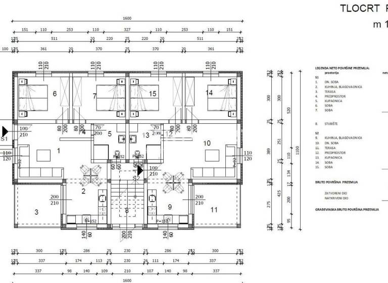
Prema projektu, planirana je izgradnja stambene zgrade s ukupno 6 dvosobnih stanova. Svaki stan sastoji se od dnevnog boravka, kuhinje s blagovaonicom, dvije spavace sobe, kupaonice i natkrivene terase. Neto korisna povrsina svakog stana iznosi 61,89 m2, a svakom stanu pripada i jedno parkirno mjesto.

Zgrada se proteze na tri etaze - prizemlje i dva kata - s po dva stana na svakoj etazi.
Prikljucak za elektricnu energiju je vec placen.

Cijelu projektnu dokumentaciju saljemo na upit.

Informacije i razgledavanje:

+385 99 701 6618

marin.roncevic@c21.hr

-------------------------------

ENGLISH:

PRIVLAKA - 18KM NORTH OF ZADAR

Building land for sale with project and permit - Privlaka, Sabunike

In an excellent location, only 400 m from the sea and the beach, and in the immediate vicinity of all important amenities, building land with complete project documentation and a valid building permit is for sale.

According to the project, the construction of a residential building with a total of 6 two-bedroom apartments is planned. Each apartment consists of a living room, kitchen with dining area, two bedrooms, bathroom, and a covered terrace. The net usable area of each apartment is 61.89 m2, and each apartment includes one parking space.

The building extends over three floors - ground floor and two upper floors - with two apartments on each floor.
The electricity connection has already been paid.

Information and viewings:

+385 99 701 6618

marin.roncevic@c21.hr

Grundrisse

Grundrisse
1 / 3

Realisiere Dein Projekt

Bausubstanz und Energie

Möchtest du Details zum Energieverbrauch?info_energy_calculation-icon
Immowelt logo

Preisdetails

Kaufpreis
310000 €
Provision für Käufer
Bitte beachte, das Angebot kann bei Vertragsabschluss die Zahlung einer Provision beinhalten. Weitere Informationen erhältst Du vom Anbieter.

Lage

address-icon
Privlaka
Der Anbieter hat die genaue Adresse nicht freigegeben

Weitere Informationen

Stichworte Wohnfläche: 690,00 m², 1 Etagen

Weitere Services

Lust auf eine Besichtigung?
Eine Frage zur Immobilie?
Nachricht hinzufügen
Mit der Nutzung der oben angegebenen Telefonnummer oder durch Klicken auf „Kontaktieren“ akzeptierst Du die Allgemeinen Nutzungsbedingungen, denen Du jederzeit widersprechen kannst. Weitere Informationen zum Datenschutz

Über den Anbieter

Nova cesta 60, 10000 ZAGREB
CENTURY 21 Lider Real EstateDein Kontakt
Online-ID: 254N3RADG2UM
Referenznummer: 17926226_19
Crozilla.com
Crozilla.com
Nachricht hinzufügen
Mit der Nutzung der oben angegebenen Telefonnummer oder durch Klicken auf „Kontaktieren“ akzeptierst Du die Allgemeinen Nutzungsbedingungen, denen Du jederzeit widersprechen kannst. Weitere Informationen zum Datenschutz
Wie zufrieden bist du mit dieser Seite (nicht mit der Immobilie selbst)?