ERSTBEZUG NACH SANIERUNG + EUTRITZSCH + 2 RAUM + DACHGESCHOSS + AB SOFORT
Erstbezug nach Sanierung: 2 Raum Wohnung im Dachgeschoss:
Die schicke Wohnung überzeugt durch einen klaren, zeitgemäßen Grundriss mit offenem Wohn-, Ess- und Küchenbereich. Ein moderner Vinylboden sorgt in allen Wohnräumen für ein einheitliches und pflegeleichtes Erscheinungsbild.
Das Tageslichtbad ist mit Fenster, Dusche sowie einem Anschluss für die Waschmaschine ausgestattet. Die Dachschrägen verleihen der Wohnung Charakter, ohne die Nutzbarkeit der Räume zu stark einzuschränken. Wände und Decken sind glatt verputzt bzw. verspachtelt, die Elektroinstallation ist zeitgemäß mit ausreichend Steckdosen ausgeführt.
Zur Wohnung gehört ein Kellerabteil. Das Gebäude verfügt über keinen Aufzug. Die Lage ist ruhig und wohnlich geprägt.
Merkmale
Bezug: sofort
Dachgeschoss, 4. Geschoss
Haustiere erlaubt
Kelleranteil
Garten
Frei ab sofort: 2 Raum Wohnung, Dachgeschoss, Erstbezug nach Sanierung, Tageslichtbad mit Dusche, moderner Fußboden in Holzoptik, offener Wohn- Essbereich, Keller, Hausmeisterservice und vieles mehr.
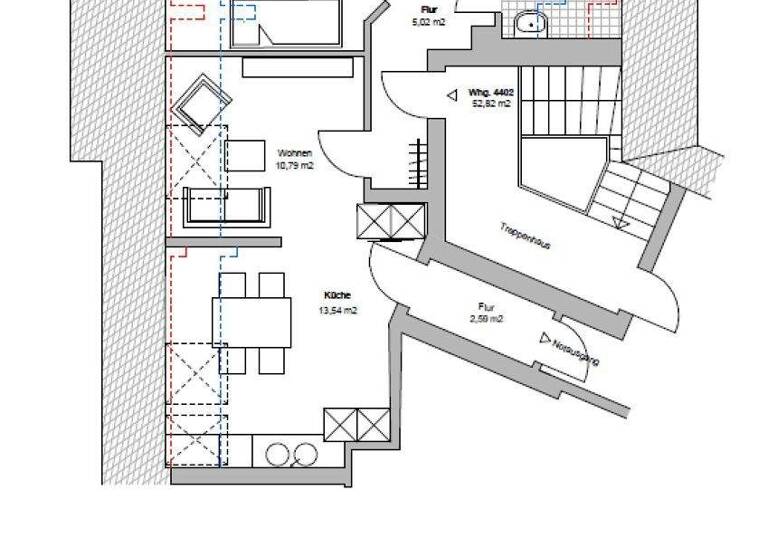
Grundrisse
Grundrisse
1 / 1
Realisiere Dein Projekt
Bausubstanz und Energie
Energieausweis
C
Baujahr1936
Zustand der ImmobilieAltbau (bis 1945), renoviert / saniert
HeizungsartZentralheizung
Mietkosten
Warmmiete
970 €
Kaltmiete
14,96 €/m²
790 €
Nebenkosten
180 €
Heizkosten
in Warmmiete enthalten
Kaution
3 Kaltmieten
Lage
Anhalter Straße 24a, Eutritzsch, Leipzig (04129)
Die Anhalter Straße befindet sich in einer ruhigen, gewachsenen Wohnlage von Leipzig. Das Umfeld ist überwiegend durch Wohnbebauung geprägt und bietet ein angenehmes, urbanes Wohnklima. Einrichtungen des täglichen Bedarfs wie Einkaufsmöglichkeiten, Apotheken und gastronomische Angebote sind im näheren Umfeld vorhanden.
Die Anbindung an den öffentlichen Personennahverkehr ist gut, sodass sowohl die Leipziger Innenstadt als auch weitere Stadtteile schnell und unkompliziert erreichbar sind. Grün- und Erholungsflächen befinden sich ebenfalls in der Umgebung und ergänzen die Wohnqualität. Insgesamt bietet die Lage eine ausgewogene Kombination aus Ruhe, städtischer Infrastruktur und guter Erreichbarkeit. PArkplätze sind vor dem Haus kostenfrei verfügbar.
Weitere Informationen
Sonstiges
Immaxi Immobilien - Die Immobilienmakler in Leipzig !
Haben wir Ihr Interesse geweckt? Vereinbaren Sie einen Besichtigungstermin! TELEFON 0341 2122212
Unter dieser Nummer erreichen Sie unser kompetentes Maklerteam. Wir versuchen einen Termin nach Ihren Wünschen zu realisieren.
Unser komplettes Angebot an Wohnungen und Häusern zur Miete oder zum Kauf erhalten Sie auf www.immaxi.de
Alle Angaben nach bestem Wissen. Irrtum und Zwischenvermitltung vorbehalten. Dieses Exposé ist eine Vorinformation, als Rechtsgrundlage gilt allein der abgeschlossene Kaufvertrag/Mietvertrag.
Stichworte
4 Etagen