3 Zimmer • 62,4 m² • 1. Geschoss • frei ab 01.12.2026
1 / 8
1 / 8
Wohnung zur Miete - Erstbezug
936 €
3 Zimmer • 62,4 m² • 1. Geschoss • frei ab 01.12.2026
+++Erstbezug/ Neubau+++ ruhig gelegene Dachgeschosswohnung in Stralsund/ Andershof zu vermieten
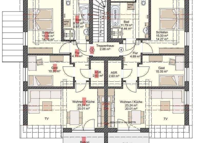
*Haus 2 mit jeweils 4 Mietwohnungen*
Bei unserem Angebot handelt es sich um "Wohnung 3" in einer stilvollen Wohnanlage mit jeweils 4 Mietwohnungen. Die modern und hochwertig ausgestatteten 3 Raumwohnungen haben Wohnflächen von ca. 62 bis 74 m². Das Wohnhaus wird nach dem neuesten Stand der Technik errichtet und bietet Ihnen alles für ein angenehmes Wohnen.
Der Balkon der hier angebotenen Wohnung ist vom Wohn- bzw. Kochbereich aus begehbar, des Weiteren bietet er sich für gemütliche Stunden mit der Familie oder Freunden an. Helle Räume, eine gute Raumaufteilung, ein Tageslichtbad mit Dusche und Wanne sprechen für diese exklusive Mietwohnung.
Wohlige Wärme entfaltet sich in jedem Raum durch den Einsatz einer Fußbodenheizung, die über eine Luft-Wasser-Wärmepumpe betrieben wird. Alle Fenster sind in 3- fach Isolierverglasung und zusätzlich mit elektrischen Rollläden ausgestattet. Zur Mietwohnung gehören zwei Abstellräume, einer befindet sich direkt in der Wohnung und der zweite Abstellraum in einem Nebengebäude auf dem Grundstück. Weiterhin gehört zur Wohnung ein PKW-Stellplatz am Haus.
Merkmale
frei ab 01.12.2026
Dachgeschoss, 1. Geschoss
offene Küche
Außen-Stellplatz
Balkon
DSL-Anschluss
Badezimmer: Badewanne, Bad mit Dusche, Bad mit Fenster
Bodenbelag: Fliesen, Kunststoff
Grundrisse
Grundrisse
1 / 1
Realisiere Dein Projekt
Bausubstanz und Energie
Energieausweis
A+
Baujahr2026
Zustand der ImmobilieNeubau, Erstbezug
HeizungsartFußbodenheizung
EnergieträgerElektro, Luft-/Wasser-Wärmepumpe
Mietkosten
Kaltmiete
15 €/m²
936 €
Nebenkosten
174,72 €
Zusätzliche Kosten
Miete pro Stellplatz
50 €
Kaution
3 Nettokaltmieten
Lage
Andershof, Stralsund (18439)
Der Anbieter hat die genaue Adresse nicht freigegeben
Die Hansestadt Stralsund liegt am Strelasund und wird aufgrund ihrer Lage auch als Tor zur Insel Rügen bezeichnet. Die als UNESCO-Welterbe anerkannte Hansestadt ist mit ihrer wechselvollen Geschichte, der einmaligen Lage am Wasser und den imposanten Bauten der Backsteingotik ein Anziehungspunkt in Mecklenburg-Vorpommern.
Das Objekt befindet sich in Stralsund/ Andershof. Die beliebte Wohngegend verfügt über eine gute Verkehrs- und Busanbindung. Von hier aus gelangen Sie in wenigen Minuten in die wunderschöne Altstadt mit dem Stralsunder Hafen. Die nähere Umgebung verfügt über diverse Einkaufsmöglichkeiten, Friseure, Ärzte, Spielplätze, Kindertagesstätten sowie Schulen. Für die Freizeitgestaltung bieten sich unter anderem schöne Wander- bzw. Radwege entlang des Sundufers oder der Deviner Strand.
Weitere Informationen
Wohnungsangebot:
Whg.03/ DG rechts, 3 Raumwohnung 62,4 m² inkl. anteilig 50% der Balkonfläche monatliche Kosten: - Kaltmiete 936,00 Euro - Nebenkosten 174,72 Euro - 1 Stellplatz 90,00 Euro - Abstellraum 50,00 Euro - Warmiete gesamt: 1.250,72 Euro - Kaution 3 Kaltmieten - Mietbeginn und bauliche Veränderungen unter Vorbehalt, Mietbeginn 12/2026 (Karenzzeit 2 Monate, da Neubau)
verbindliche Anmietung möglich
Ausstattung: - 1 x Wohnzimmer mit Kochbereich - 1 x Schlafzimmer - 1 x Kinderzimmer / Gästezimmer - 1 x Bad mit Dusche & Wanne - 1 x Abstellraum in der Wohnung - 1 x Abstellraum auf dem Grundstück
Besichtigungstermine
Hat dieses exklusive Angebot Ihr Interesse geweckt und wünschen Sie ein persönliches Beratungsgespräch, dann lassen Sie es uns einfach wissen! Wir sind gerne für Sie da! Sie erreichen uns Montag-Freitag von 8.00-16.00 Uhr.
Sonstiges
Alle Angaben ohne Gewähr. Änderungen der Ausstattungen, sowie Irrtümer oder Zwischenvermarktung sind vorbehalten. Für Angaben von Dritten und/ oder Behörden kann keine Gewähr übernommen werden. Hinweis zu den gesetzlichen Pflichtangaben gemäß des GEG 2024: Ein Energieausweis liegt vor.
Stichworte
Versorgung: Städtische Wasserversorgung, Städtische Stromversorgung
Sonstiges: EDV-Verkabelung, Neubaustandard