Version: 8.26.0Navigation überspringen
CHI Cornelia Hopf Immobilien e.K.
615 €
2 Zimmer  •  53,5 m²  •  3. Geschoss  •  frei ab sofort

Wohnung zur Miete
615 €
2 Zimmer  •  53,5 m²  •  3. Geschoss  •  frei ab sofort

#Smart-Home #Neubau #Tiefgarage

Willkommen in Ihrem neuen Zuhause - eine charmante Etagenwohnung zur Miete in der lebendigen Stadt Halle (Saale). Diese modern gestaltete Wohnung aus dem Baujahr 2020 bietet eine gepflegte und einladende Wohnatmosphäre auf ca. 53 m².

Die großzügige Wohnfläche verteilt sich auf zwei gut geschnittene Zimmer, darunter ein gemütliches Schlafzimmer und eine stilvolle Wohnküche. Der Bodenbelag besteht aus hochwertigen Fliesen und pflegeleichtem Vinylfußboden, die der Wohnung ein elegantes Ambiente verleihen.

Die Küche lädt zum Kochen und Genießen ein, ausgestattet mit einem Fenster für viel Tageslicht. Genießen Sie entspannte Stunden auf Ihrer eigenen Terrasse, die Ihnen zusätzlichen Raum im Freien bietet. Zur weiteren Ausstattung gehört ein praktisches Kellerabteil, das Ihnen zusätzlichen Stauraum verschafft.

Dieses zeitgemäße Wohnobjekt steht Ihnen ab dem 01.01.2025 zur Verfügung und bietet den perfekten Rückzugsort für Singles oder Paare, die modernes Wohnen in hervorragender Lage suchen. Zögern Sie nicht, und vereinbaren Sie noch heute einen Besichtigungstermin, um sich von diesem wohnlichen Juwel selbst zu überzeugen!

Die Wohnung ist derzeit noch bewohnt, weswegen wir leider keine Aufnahmen des Innenbereiches zur Verfügung stellen können.

Weiterhin stehen Ihnen ein praktisches Kellerabteil zur Verfügung, welches zusätzlichen Stauraum bietet. Die Wohnung befindet sich in einem gepflegten Zustand und wartet nur darauf, von Ihnen bezogen zu werden.
Die Wohnung ist mit einer Smart-Home-Ausstattung bestückt. Über einen eigenen "Wibutler", kann die komplette Wohnung remote kontrolliert und gesteuert werden. Die Voraussetzungen für beliebige Smart-Home Erweiterungen ist gegeben. Die Einheit kann je nach den Wünschen des Mieters mit weiteren Gadgets ausgestattet werden.

Lassen Sie sich diese Gelegenheit nicht entgehen und vereinbaren Sie noch heute einen Besichtigungstermin. Wir freuen uns darauf, Ihnen dieses attraktive Angebot präsentieren zu dürfen.

Ein Stellplatz in der Tiefgarage kann für 90,00€ angemietet werden.

Merkmale

  • frei ab sofort
  • 3. Geschoss
  • Personenaufzug
  • Keller
  • Außen-Stellplatz
  • Terrasse
  • Badewanne

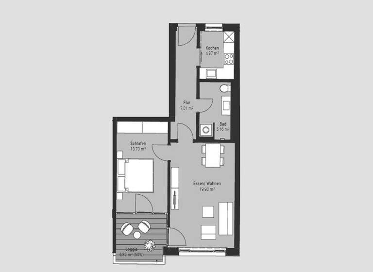
Grundrisse

Grundrisse
1 / 2

Bausubstanz und Energie

Energieausweis

Der Anbieter hat keine Daten zum Energieausweis hinterlegt.
  • Baujahr2020
  • Zustand der ImmobilieGepflegt
  • EnergieträgerFernwärme
MediumRectangleTop

Mietkosten

Warmmiete
855 €
Kaltmiete
11,50 €/m²
615 €
Nebenkosten
150 €
Heizkosten
in Warmmiete enthalten
Zusätzliche Kosten
Miete pro Stellplatz
90 €
Kaution
1230 €
Weitere Preisinformationen
1 Stellplatz, Miete: 90,00 EUR

Lage

address-icon
Heinrich-Schütz Str. 14LutherplatzHalle (Saale) (06110)
Die Etagenwohnung befindet sich in der begehrten Heinrich-Schütz-Straße 14 in 06110 Halle (Saale), Deutschland. Diese zentrale Lage bietet eine perfekte Balance zwischen städtischer Lebendigkeit und erholsamer Ruhe in einer der geschichtsträchtigsten Städte Mitteldeutschlands.

Die Umgebung zeichnet sich durch eine hervorragende Verkehrsanbindung aus, die den täglichen Pendelverkehr erleichtert. In wenigen Minuten erreichen Sie den Hauptbahnhof sowie die bedeutenden Autobahnen der Region. Öffentliche Verkehrsmittel sind unmittelbar vor der Tür verfügbar, was die Fortbewegung in und um Halle (Saale) stressfrei gestaltet.

Die Nachbarschaft bietet zahlreiche Einkaufsmöglichkeiten, darunter Supermärkte, Boutiquen und Fachgeschäfte, die den täglichen Bedarf decken. Freizeit- und Erholungsmöglichkeiten sind ebenfalls reichlich vorhanden - von malerischen Parks bis zu kulturellen Sehenswürdigkeiten wie dem Opernhaus und verschiedenen Museen.

Nicht zu vergessen ist die exzellente Auswahl an Bildungseinrichtungen; von Kindergärten über renommierte Schulen bis hin zur Universität Halle-Wittenberg, die international für ihre Forschung und Lehre bekannt ist. Für Familien mit Kindern ist diese Lage daher besonders attraktiv.

Genießen Sie die perfekte Kombination aus urbanem Lebensstil und naturnaher Erholung in Ihrer neuen Wohnung an der Heinrich-Schütz-Straße 14. Hier erleben Sie ein Wohnumfeld, das kaum Wünsche offenlässt.

Weitere Informationen

Sonstiges Alle Angaben in diesem Exposé wurden sorgfältig und so vollständig wie möglich gemacht. Die Angaben beruhen auf Angaben des Eigentümers. Für Richtigkeit und Vollständigkeit übernimmt CHI Cornelia Hopf Immobilien e.K. keine Gewähr. Gleichwohl kann das Vorhandensein von Fehlern nicht ausgeschlossen werden. Bitte beachten Sie, dass unsere Grundrisse vom Maßstab abweichen können. Maßgeblich sind die im Mietvertrag geschlossenen Vereinbarungen. Stichworte Fahrradraum, Anzahl der Schlafzimmer: 1, Anzahl der Badezimmer: 1, Anzahl Terrassen: 1 Sonstiges/Wohnen: seniorengerechtes Wohnen

Weitere Services

Lust auf eine Besichtigung?
Eine Frage zur Immobilie?
Mit einer persönlichen Nachricht hast du bessere Chancen auf eine Antwort.
Mit der Nutzung der oben angegebenen Telefonnummer oder durch Klicken auf „Kontaktieren“ akzeptierst Du die Allgemeinen Nutzungsbedingungen, denen Du jederzeit widersprechen kannst. Weitere Informationen zum Datenschutz

Über den Anbieter

Michaelisstraße 7, 99084 Erfurt
partner badge
3 Jahre Partnerschaft
Frau Cornelia Hopf ImmobilienDein Kontakt
Online-ID: 26HLKWB7VA98
Referenznummer: 2509 3.302
MediumRectangleTop
Wie zufrieden bist du mit dieser Seite (nicht mit der Immobilie selbst)?