Version: 8.24.0Navigation ĂĽberspringen
472.650 €
4 Zimmer  â€˘  126 m²  â€˘  566 m² GrundstĂĽck
Immowelt logo

Reihenendhaus zum Kauf • als Kapitalanlage geeignet
472650 €
3.751 €/m²
4 Zimmer  â€˘  126 m²  â€˘  566 m² GrundstĂĽck

Ausbauhaus: Reihenendhaus in ökologischer Holzbauweise mit Förderkrediten von bis zu 200.000 €

Objektbeschreibung Sie möchten sich den Traum vom eigenen Haus erfüllen – und dabei selbst Hand anlegen?
Dieses Reihenendhaus in ökologischer Holzbauweise bieten wir in der Ausbaustufe an – mit fertiggestelltem Rohbau und hochwertiger Gebäudehülle. Die ideale Lösung für alle, die Kosten sparen und ihre eigenen Vorstellungen umsetzen wollen.

Klimafreundlich & förderfähig:
- Förderung durch KfW-Kredite von bis zu 200.000€ möglich
- Holzbauweise fĂĽr ein wohngesundes Raumklima

Ihre Gestaltungsfreiheit – Ihre Vorteile:
- Innenausbau flexibel nach Ihren WĂĽnschen
- Eigenleistung möglich
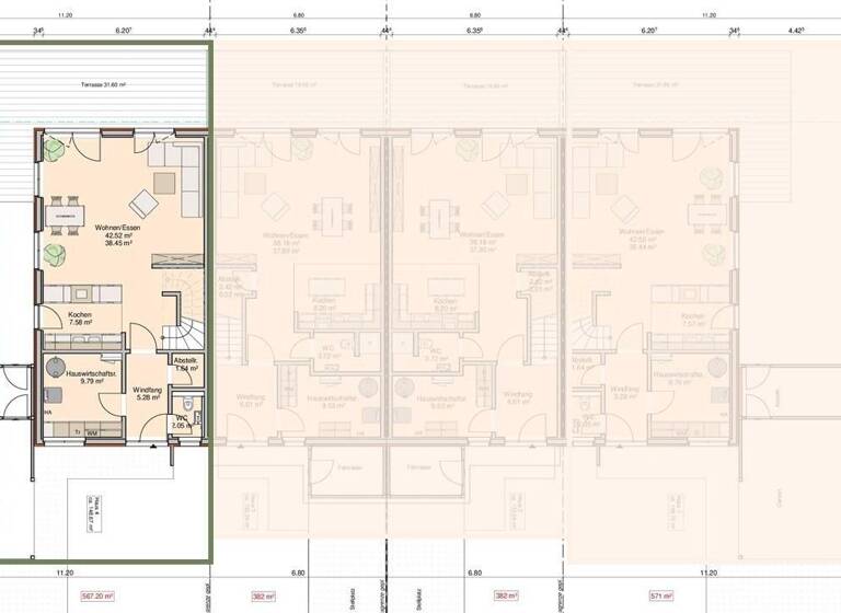
- Hochwertige Bausubstanz als sichere Grundlage Raumaufteilung Erdgeschoss:
Großzügiges Wohnzimmer mit offener Küche, Gäste-WC, Windfang/Eingangsbereich, Hauswirtschaftsraum, Abstellraum.

Obergeschoss:
Schlafzimmer, zwei Kinderzimmer, kleiner Balkon, groĂźzĂĽgiges Badezimmer.

Dachgeschoss:
Ausbaureserve mit ca. 52 m² Grundfläche, entspricht ca. 23 m² Wohnfläche, die als großzügiges Home-Office oder Gästezimmer genutzt werden kann.


Besichtigungen & Infotage
Nutzen Sie die Möglichkeit, das Projekt bereits vor Baubeginn kennenzulernen.
Alle Termine & Anmeldung unter: www.profibau-veranstaltungen.de

Merkmale

  • Bezug: 2026
  • 2 Geschosse
  • 566 m² GrundstĂĽck
  • Carport
  • Gäste-WC
  • Balkon
  • Gartenanteil, Garten
  • Terrasse

Grundrisse

Grundrisse
1 / 3

Realisiere Dein Projekt

Bausubstanz und Energie

Der Anbieter hat keine Informationen zum Energieverbrauch bereit gestellt.
  • Baujahr2025
  • Zustand der ImmobilieNeubau, Holzhaus, Projektiert
  • HaustypKfW 40
Immowelt logo

Preisdetails

Kaufpreis
472650 €
3.751 €/m²
Provision für Käufer
Bitte beachte, das Angebot beinhaltet bei Vertragsabschluss die Zahlung einer Provision. Weitere Informationen erhältst Du vom Anbieter.
Geschätzte Gesamtkosten
529.699 €1
Kaufpreis
472.650 €
Notarkosten (1,5%)
7.090 €
Grunderwerbsteuer (6,5%)
30.722 €
Provision für Käufer (3,57%)
16.874 €
Grundbucheintrag (0,5%)
2.363 €
1Der angezeigte Wert ist eine automatisch berechnete Schätzung von immowelt.
2Bei den Angaben handelt es sich um ortsübliche Werte. Individuelle Kosten können abweichen.

Lage

address-icon
Gerdoms Kamp, Lübbecke (32312)
Verkehrsberuhigtes Neubaugebiet in Lübbecke, ideal für Familien mit Kindern. Kindergarten, Grundschule und alle wichtigen Einrichtungen befinden sich in der Nähe – ebenso eine gute Anbindung an das Zentrum.

Weitere Informationen

Zusatzinformationen Bereits enthalten:
- Rohbau inkl. Dacheindeckung & Fassade
- Fenster mit Alu-Rollläden
- Sanitärrohinstallation und Elektro-Grundinstallation

Noch durch Käufer zu leisten:
- Bodenbeläge
- Malerarbeiten
- InnentĂĽren
- Sanitärobjekte
- Heizungs- & LĂĽftungstechnik
- Pflasterung fĂĽr Carport/Stellplatz & Terrasse

Weitere Services

Lust auf eine Besichtigung?
Eine Frage zur Immobilie?
Nachricht hinzufĂĽgen
Mit der Nutzung der oben angegebenen Telefonnummer oder durch Klicken auf „Kontaktieren“ akzeptierst Du die Allgemeinen Nutzungsbedingungen, denen Du jederzeit widersprechen kannst. Weitere Informationen zum Datenschutz

Ăśber den Anbieter

Am Alten Markt 22, 32361 PreuĂźisch Oldendorf
partner badge
Partnerschaft
Herr Mario Drees
Herr Mario DreesDein Kontakt
Online-ID: 2jsv85s
Zimmerer-Profibau GmbH
title
Zimmerer-Profibau GmbH
Nachricht hinzufĂĽgen
Mit der Nutzung der oben angegebenen Telefonnummer oder durch Klicken auf „Kontaktieren“ akzeptierst Du die Allgemeinen Nutzungsbedingungen, denen Du jederzeit widersprechen kannst. Weitere Informationen zum Datenschutz
Wie zufrieden bist du mit dieser Seite (nicht mit der Immobilie selbst)?