Version: 8.25.1Navigation überspringen
BIDDEX Immobiliengesellschaft mbH
850.000 €
1.238 m² Grundstück

Grundstück zum Kauf
850000 €
687 €/m²
1.238 m² Grundstück

Wohnen im Grünen - Top angebundenes Grundstück mit Baugenehmigung !

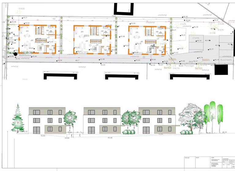
Zum Verkauf steht ein vielseitig nutzbares Grundstück grüner Lage von Hohen Neuendorf in der Oranienburger Straße 28. Mit einer Gesamt Grundstücksfläche von 1.238m² bietet das Grundstück hervorragende Entwicklungsmöglichkeiten für Investoren, Bauträger oder Selbstnutzer. Geplant sind drei Häuser, wobei das vordere Gebäude ein Stockwerk höher gebaut werden kann. Eine Unterkellerung ist bei allen Häusern möglich. Die Bruttofläche beträgt für das Haus 1 (zur Straße gerichtet) rund 390 m² zuzüglich Keller, während Haus 2 und 3 jeweils über 260 m² zuzüglich Keller verfügen.
Eine Baugenehmigung liegt vor und wurde Ende 2024 erteilt.

Die hintere Grundstücksfläche kann flexibel genutzt werden, entweder für Parkplätze, wie die jetzige Planung es hergibt oder als begrünte Gartenfläche. Ein Einzelverkauf der Häuser ist nicht möglich.

Da die Verkäuferin eine GmbH ist, besteht zudem die Möglichkeit eines Share Deals.

Dieses Grundstück bietet eine attraktive Investitionsmöglichkeit mit klaren Entwicklungsperspektiven in einer wachstumsstarken Region. Für weitere Informationen oder eine Besichtigung stehen wir Ihnen gerne zur Verfügung.

Merkmale

  • Bezug: sofort
  • 1.238 m² Grundstück
  • teilweise erschlossen

Grundrisse

Grundrisse
1 / 1

Realisiere Dein Projekt

Bausubstanz und Energie

Möchtest du Details zum Energieverbrauch?info_energy_calculation-icon
MediumRectangleTop

Preisdetails

Kaufpreis
850000 €
686,59 €/m²
Provision für Käufer
6 % des Kaufpreises zzgl. der gesetzlichen MwSt.
Bei Abschluss eines notariellen Kaufvertrages fällt eine Maklerprovision in Höhe von 6 % des Kaufpreises zzgl. der gesetzlichen MwSt. an.
Geschätzte Gesamtkosten
901.000 €1
Kaufpreis
850.000 €
Provision für Käufer (6%)
51.000 €
1Der angezeigte Wert ist eine automatisch berechnete Schätzung von immowelt.
2Bei den Angaben handelt es sich um ortsübliche Werte. Individuelle Kosten können abweichen.

Lage

address-icon
Hohen Neuendorf (16540)
Der Anbieter hat die genaue Adresse nicht freigegeben
Das Grundstück befindet sich in der Oranienburger Straße 28 in Hohen Neuendorf, einer begehrten Wohn- und Geschäftslage im Norden von Berlin. Die Stadt zeichnet sich durch ihre hohe Lebensqualität, eine ausgezeichnete Infrastruktur und eine naturnahe Umgebung aus.

Hohen Neuendorf ist besonders bei Familien und Pendlern beliebt, da es eine perfekte Balance zwischen urbanem Leben und erholsamer Natur bietet. Die Nähe zur Berliner Stadtgrenze ermöglicht eine schnelle Anbindung an das Zentrum der Hauptstadt, sowohl mit dem Auto über die B96 als auch mit öffentlichen Verkehrsmitteln. Der S-Bahnhof Hohen Neuendorf ist in wenigen Minuten erreichbar und bietet eine direkte Verbindung nach Berlin.

In der Umgebung befinden sich zahlreiche Einkaufsmöglichkeiten, Schulen, Kitas und medizinische Einrichtungen, die eine optimale Nahversorgung gewährleisten. Auch Freizeit- und Erholungsmöglichkeiten sind zahlreich vorhanden. Die waldreiche Landschaft, der nahegelegene Havelkanal und verschiedene Parks laden zu Spaziergängen, Radtouren und anderen Outdoor-Aktivitäten ein.

Durch die stetige Weiterentwicklung der Region und die hohe Nachfrage nach Wohnraum bietet dieser Standort hervorragende Zukunftsperspektiven für Investoren und Bauherren.

Weitere Informationen

Stichworte Bundesland: Brandenburg

Weitere Services

Lust auf eine Besichtigung?
Eine Frage zur Immobilie?
Nachricht hinzufügen
Mit der Nutzung der oben angegebenen Telefonnummer oder durch Klicken auf „Kontaktieren“ akzeptierst Du die Allgemeinen Nutzungsbedingungen, denen Du jederzeit widersprechen kannst. Weitere Informationen zum Datenschutz

Über den Anbieter

Marburger Straße 17, 10789 Berlin
partner badge
Partnerschaft
Herr Robert Verowski
Herr Robert VerowskiDein Kontakt
Online-ID: 25MCRJCWGFS2
Referenznummer: B10162/02
BIDDEX Immobiliengesellschaft mbH
title
BIDDEX Immobiliengesellschaft mbH
Nachricht hinzufügen
Mit der Nutzung der oben angegebenen Telefonnummer oder durch Klicken auf „Kontaktieren“ akzeptierst Du die Allgemeinen Nutzungsbedingungen, denen Du jederzeit widersprechen kannst. Weitere Informationen zum Datenschutz
MediumRectangleTop
MediumRectangleBottom
MediumRectangleTop
Wie zufrieden bist du mit dieser Seite (nicht mit der Immobilie selbst)?