

Christian Müller - Handelsvertretung der Bien-Zenker GmbH
Herr Christian Müller
+49 ···
Nr. anzeigenPreise & Kosten
Provision für Käufer
provisionsfrei
Lage
Im rheinland-pfälzischen Nahe-Hunsrück Raum und nur einen Katzensprung vom benachbarten Saarland entfernt - dort liegt Fohren-Linden. Die Ortsgemeinde gehört der Verbandsgemeinde Baumholder im Landkreis Birkenfeld an.
Durch Anbindung an die Autobahn 62 im 5 km entfernten Freisen und die knapp 20 km entfernte Bundesstraße...
Das Haus
Kategorie
Einfamilienhaus
Details
Objektbeschreibung
Traumhaft schön und traumhaft funktionell - Lebensqualität maximiert.
Auch beim größten EVOLUTION Einfamilienhaus steht wieder die enorm große Vielfalt und eine maximale Individualität im Vordergrund. Von klassisch über repräsentativ bis zu ganz modern ist alles möglich, um ein EVOLUTION 165 zu einem echten Einzelstück...
Ausstattung
Bereits im Kaufpreis enthalten:
-Baugrundstück
-Bodengutachten
-projektiertes Haus "zur Ausstattung fertig", gerne bieten wir es Ihnen auch bezugsfertig an!
-innovative Effizienzhaus 40 Wand
-innovative Effizienzhaus 40 Thermo- Energiesparfenster mit 3 Scheiben Isolierverglasung für
energiebewusstes...
Weitere Informationen
Sonstiges
Angebotspreis zuzüglich Grunderwerb- und Baunebenkosten.
Vorbehaltlich Irrtümer und Zwischenverkauf.
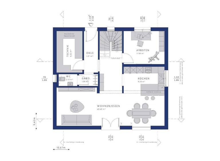
Abbildungen, Fotos und Grundrisse können Extras enthalten.
Bei dem dargestellten Objekt handelt es sich um eine Projektierung,
die im Hinblick auf Kubatur, architektonischer Gestaltung und...
Anbieter der Immobilie
Christian Müller - Handelsvertretung der Bien-Zenker GmbH
Am alten Schwimmbad 2, 66450 Bexbach

Online-ID: 2ms5q5u
Referenznummer: 12221-Fo-Li_52Evo165-98
Finde Angebote wie dieses
Hier geht es zu unserem Impressum, den Allgemeinen Geschäftsbedingungen, den Hinweisen zum Datenschutz und nutzungsbasierter Online-Werbung.