Version: 8.26.0Navigation überspringen
330 €
1 Zimmer  •  37,3 m²  •  3. Geschoss
Immowelt logo

Studio zur Miete
330 €
1 Zimmer  •  37,3 m²  •  3. Geschoss

Betreutes Wohnen frei werdend! - aiutanda Lebenspark "Zur alten Post" Heilbad Heiligenstadt

Merkmale

  • 3. Geschoss
  • Haustiere erlaubt
  • Personenaufzug
  • Keller
  • DSL-Anschluss
  • Barrierefrei, Rollstuhlgerecht
  • Bad mit Dusche
  • Bodenbelag: Linoleum

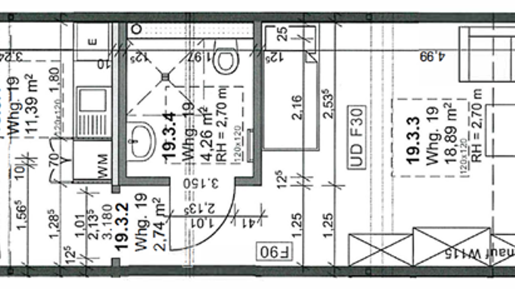
Grundrisse

Verschaffe dir einen genauen Überblick über die Raumaufteilung.selection_property_house-icon

Bausubstanz und Energie

Möchtest du Details zum Energieverbrauch?info_energy_calculation-icon
  • HeizungsartZentralheizung
Immowelt logo

Mietkosten

Warmmiete
459,13 €
Kaltmiete
8,84 €/m²
329,63 €
Nebenkosten
129,50 €
Heizkosten
in Nebenkosten enthalten
Kaution
3 Monatskaltmieten

Lage

address-icon
Petristr. 20-24Heilbad Heiligenstadt (37308)

Weitere Informationen

Gepflegtes Wohnen & Wohlfühlen Altersgerechtes, barrierefreies Wohnen für ein selbstbestimmtes Leben mit den benötigten und gewünschten Pflege- und Hilfeleistungen.
- Großzügig gestaltete, helle Gänge mit Handläufen
- Personenaufzug
- barrierefreier Zugang zu allen Räumlichkeiten
- geräumige und ansprechende Tagespflege
- Vermittlung Notrufservice vor Ort 24 h am Tag - 365 Tage im Jahr
Ihre neue Wohnung Genießen Sie Ihr selbstbestimmtes Leben in dieser gemütlichen, lichtdurchfluteten und barrierefreien 1-Raum Wohnung.
- 37,28 m² Wohnfläche
- komfortables Badezimmer mit großzügiger, ebenerdiger Dusche und WC
- Anschlussmöglichkeiten für Telefon, Fernsehen und Internet
- Wasseranschluss für Kücheneinbau

Das Vorliegen eines Pflegegrades ist für den Einzug erforderlich. Unser Service Neben unserer liebevoll eingerichteten Tagespflege, die Lebensmittelpunkt für Kommunikation, Aktivität und Begegnung ist, bieten wir folgende Leistungen für Sie vor Ort, die flexibel auf Ihre Bedürfnisse zugeschnitten sind:
- Ganzheitliche Pflege
- Hauswirtschaftliche Hilfe
- Tagespflege
- Speiseservice
- Pflegerischer Begleitservice/Betreuung
- Hol- und Bringdienst
- Individuelle Pflegeberatung

Es handelt sich um eine Musterwohnung.
Stichworte Zustand: renoviert, saniert, gepflegt Sonstiges/Wohnen: Hobbyraum, seniorengerechtes Wohnen Serviceleistungen: Catering, Hausmeister, Altenpflege Sonstiges: frei werdend

Weitere Services

Lust auf eine Besichtigung?
Eine Frage zur Immobilie?
Mit einer persönlichen Nachricht hast du bessere Chancen auf eine Antwort.
Mit der Nutzung der oben angegebenen Telefonnummer oder durch Klicken auf „Kontaktieren“ akzeptierst Du die Allgemeinen Nutzungsbedingungen, denen Du jederzeit widersprechen kannst. Weitere Informationen zum Datenschutz

Über den Anbieter

Peterstr. 5, 99084 Erfurt
partner badge
Partnerschaft
Team CasemanagementDein Kontakt
Online-ID: 24L4XWK23G7T
Referenznummer: HIG WE 3.19
Wie zufrieden bist du mit dieser Seite (nicht mit der Immobilie selbst)?