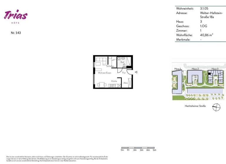
1 Zimmer • 40,9 m² • 1. Geschoss • frei ab 01.05.2026
1 / 6
1 / 6
Studio zur Miete
735 €
1 Zimmer • 40,9 m² • 1. Geschoss • frei ab 01.05.2026
Kompakte 1-Zimmer-Wohnung mit EBK und Fußbodenheizung!
Die hier angebotene 1-Zimmer-Wohnung verfügt über ein Zimmer, welches als Wohn- Ess- und Schlafzimmer genutzt werden kann. Die Wohnung ist mit einer modernern Einbauküche ausgestattet und das moderne Bad ist über den Flur erreichbar. Bitte beachten Sie, dass diese Wohnung über keinen Balkon verfügt.
Diese Wohnung vereint, was sich viele Menschen heute von ihrem Zuhause wünschen: Das neue, moderne Wohnensemble stellt ein weiteres Highlight fu?r das Heiligkreuz Viertel dar. Es besteht aus drei Einzelgebäuden mit jeweils drei Geschossen, die u?ber Aufzu?ge erschlossen sind.
Auch die Außengestaltung u?berzeugt. So bieten die begru?nten Innenhöfe Sitz und Spielflächen fu?r die Mieter*innen. Sie haben ein oder mehrere Autos? In der objekteigenen Tiefgarage stehen PKW Stellplätze zur Anmietung bereit.
Einkaufen können Sie ganz bequem zu Fuß. So gibt es einen Super- und einen Drogeriemarkt direkt nebenan! Gleich gegenüber finden Sie einen Markendiscounter sowie im näheren Umkreis weitere Supermärkte, Bäckereien oder Apotheken.
Merkmale
frei ab 01.05.2026
1. Geschoss
Einbauküche
Personenaufzug
Kelleranteil
Außen-Stellplatz
- Fußbodenheizung in der ganzen Wohnung - gespeist durch Fernwärme - Einbauküche - Parkettboden aus Echtholz - hochwertige Boden- und Wandfliesen in den Badezimmern und WCs - Bäder mit hochwertigen Einbauten - Waschmaschinenanschluss in der Wohnung - Zugang mittels Aufzug - bei fast allen Wohnungen: Loggia, Balkon oder Terrasse
Wohnen, arbeiten, entspannen! Das Heiligkreuz-Viertel verbindet die Vorzüge des Stadtlebens mit der Nähe zur Natur, denn sowohl das Rheinufer als auch der Grüngürtel mit dem Volkspark sind fußläufig zu erreichen. Im Quartier selbst sind zwei großzügige Parks sowie eine Grünachse mit zahlreichen Spiel- und Aufenthaltsmöglichkeiten. Zudem macht das Nahversorgungszentrum sowie diverse Kitas und Schulen in der Nachbarschaft das Viertel nicht zuletzt für Familien interessant.
Wohnen mit kurzen Wegen! So gibt es einen Super- und einen Drogeriemarkt direkt nebenan! Gleich gegenüber finden Sie einen Markendiscounter sowie im näheren Umkreis weitere Supermärkte, Bäckereien oder Apotheken. Auch die medizinische Versorgung ist gesichert - mit einem Krankenhaus und diversen Ärzten in Fußnähe. So sind es von der nahegelegenen Haltestelle Martin-Luther-Straße nur 12 Busminuten bis zum Hauptbahnhof. Mit dem Fahrrad benötigen Sie sogar nur 10 Minuten. Etwa sieben bis maximal 14 Autominuten sind es bis zu den Autobahnen A60 und A63, sowie zur A671 und zur A643. Bis zum Frankfurt Airport brauchen Sie etwa 20 Minuten.
Weitere Informationen
Sonstiges
ANFRAGEN BITTE ÜBER DAS KONTAKTFORMULAR
Im Falle einer Anmietung wird mietvertraglich ein Kündigungsverzicht von 12 Monaten vereinbart. Gerne können Sie sich im Zuge einer Besichtigung von der Wohnung selbst überzeugen.
Bei den Bildern handelt es sich um eine Musterwohnung im Projekt. Den genauen Schnitt können Sie dem Grundriss entnehmen.
HAFTUNGSAUSSCHLUSS: Diese Anzeige dient nur der ersten Information und stellt kein Vertragsangebot dar. Die Anzeige begründet keine vertraglichen Ansprüche. Der Inhalt und die Angaben wurden nach bestem Wissen und Gewissen ermittelt. Für Richtigkeit und Vollständigkeit wird keine Haftung übernommen.
Stichworte
Tiefgarage vorhanden, Anzahl der Schlafzimmer: 1, Anzahl der Badezimmer: 1, 3 Etagen