Version: 8.24.0Navigation überspringen
Preis auf Anfrage
1 Zimmer  •  6. Geschoss
Immowelt logo

Studio zum Kauf
1 Zimmer  •  6. Geschoss

Wohnung 28,45 m2 Jahorina Vucko Residence zu verkaufen

Stanpromet.ba - Immobilienagentur wählt aus ihrem Verkaufsangebot eine Wohnung von 28,45 m2 in der Vucko Residence, Jahorina aus. Die 28,45 m2 große Wohnung befindet sich im 6. Stock eines Gebäudes mit Aufzug und besteht aus einer Eingangshalle, einem Wohnzimmer mit Esszimmer und Küche sowie einem Badezimmer. Die Apartments der Vucko Residence sind der Beweis dafür, dass Moderne und Rustikalität eine perfekte Kombination für eine komfortable Bergumgebung bilden können, während Sie gleichzeitig alles haben, was Sie für einen angenehmen Aufenthalt in Jahorina benötigen. Kontaktieren Sie uns noch heute, wenn Sie am Kauf einer Wohnung in der Vucko Residence interessiert sind. Ein Beweis dafür, dass Moderne die perfekte Ergänzung zu einer komfortablen Bergumgebung sein kann und gleichzeitig alles hat, was Sie für einen angenehmen Aufenthalt in Jahorina benötigen. Kontaktieren Sie uns noch heute, wenn Sie am Kauf einer Wohnung in der Vucko Residence interessiert sind. Für alle Informationen rufen Sie Ihren Immobilienmakler an! Zertifizierte Immobilienagentur Stanpromet.ba Nekretnine Broker Registrierungsnummer ! Grbavicka 8b, Sarajevo Agent Hadis ID CODE:

Merkmale

  • 6. Geschoss

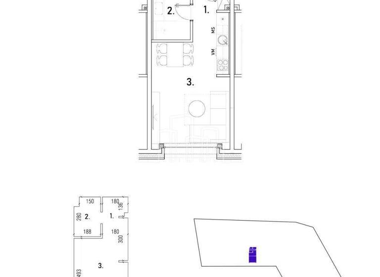
Grundrisse

Grundrisse
1 / 1

Realisiere Dein Projekt

Bausubstanz und Energie

Der Anbieter hat keine Informationen zu Energieverbrauch oder Zustand der Immobilie bereit gestellt.
Immowelt logo

Preisdetails

Provision für Käufer
Bitte beachte, das Angebot kann bei Vertragsabschluss die Zahlung einer Provision beinhalten. Weitere Informationen erhältst Du vom Anbieter.
Weitere Preisinformationen

Auf Anfrage

Lage

address-icon
Pale (71423)
Der Anbieter hat die genaue Adresse nicht freigegeben

Weitere Informationen

Stichworte Gesamtfläche: 28,00 m², Anzahl der Schlafzimmer: 1, Anzahl der Badezimmer: 1, 9 Etagen, Nebenzentrumslage

Weitere Services

Lust auf eine Besichtigung?
Eine Frage zur Immobilie?
Nachricht hinzufügen
Mit der Nutzung der oben angegebenen Telefonnummer oder durch Klicken auf „Kontaktieren“ akzeptierst Du die Allgemeinen Nutzungsbedingungen, denen Du jederzeit widersprechen kannst. Weitere Informationen zum Datenschutz

Über den Anbieter

LABIN d.o.o.Maklerbüro
Prilaz Kikova 4, 52220 LABIN
partner badge
Partnerschaft
Hadis KadicDein Kontakt
Online-ID: 2mzl25u
Referenznummer: 4027-502387
LABIN d.o.o.
Nachricht hinzufügen
Mit der Nutzung der oben angegebenen Telefonnummer oder durch Klicken auf „Kontaktieren“ akzeptierst Du die Allgemeinen Nutzungsbedingungen, denen Du jederzeit widersprechen kannst. Weitere Informationen zum Datenschutz
Wie zufrieden bist du mit dieser Seite (nicht mit der Immobilie selbst)?