Version: 8.24.0Navigation überspringen
1.100 €
111 m² Bürofläche
Immowelt logo

Bürofläche zur Miete • provisionsfrei
1.100 €
111 m² Bürofläche

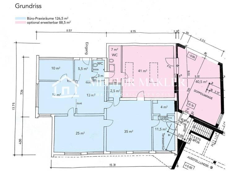
Vielseitig nutzbare Gewerbefläche / Büroräume mit ca. 125 m² (Fläche optional erweiterbar)

Zur Vermietung steht eine Gewerbefläche mit ca. 125 Quadratmetern, die sich durch eine funktionale Raumaufteilung mit insgesamt 5 (Büro/Praxis) Räumen auszeichnet. Die Deckenhöhe von ca. 2,40m sorgt für ein angenehmes Arbeitsumfeld und vielfältige Nutzungsmöglichkeiten, z.B. für Büro, Praxis, Schulungsräume oder Dienstleistungsbetriebe.

Ein weiterer kleiner Raum verfügt über Wasserzu- / Ablauf und kann sowohl als kleine Küche oder auch als Wäscheraum genutzt werden. Dies ist ein klarer Vorteil für Physio- oder Massagepraxen, die flexible Nebenräume benötigen.

Zur Südseite besteht die Möglichkeit, eine Terrasse oder einen Pausenbereich zu realisieren, was besonders für Mitarbeiter einen netten Mehrwert darstellen kann.

Das vorhandene WC ist nicht rollstuhlgerecht und es steht derzeit lediglich eine Toilette zur Verfügung, die nicht geschlechterspezifisch getrennt ist.
(OPTIONAL realisierbar)

Das Objekt ist nahezu barrierefrei zugänglich. Lediglich im Eingangsbereich müsste eine kleine Rampe angebracht oder gestellt werden.

Des Weiteren stehen 4 Parkplätze am Gebäude zur Verfügung.


OPTIONALE Flächen- / Raumerweiterung:
Abhängig vom Flächen- / Raumbedarf besteht die Möglichkeit, die Gewerbefläche zu erweitern.
Diese Erweiterung umfasst:
-zusätzlicher Raum von ca. 40 m²
-weiteres WC mit ca. 7 m², inkl. Duschmöglichkeit
-Doppelgarage (Gesamtfläche ca. 40 m², nutzbar z. B. als Lager- oder Abstellfläche)

Die Gewerbefläche eignet sich ideal für Nutzer, die eine flexible Gewerbeeinheit mit Entwicklungspotenzial suchen.

Nebenkosten: ca. 400 € (Standardgröße) bzw. ca. 550 € (inkl. Flächenerweiterung), abhängig vom individuellem Verbrauch.
(Durch die nur moderat beheizte Ausstellung und den gestiegenen Energiekosten in den letzten 3 Jahren, fehlen uns momentan Erfahrungswerte für einen Standardbetrieb.)

Die Kosten für Zweckverband, Strom und Müllentsorgung sind vom Mieter direkt an die Dienstleister zu zahlen.

Mindestmietdauer: 12 Monate
Kaution: 2 Kaltmieten

Merkmale

  • Kein Keller
  • Bodenbelag: Teppich
- 5 (optional 6) separate Praxis- / Büroräume
- WC (nicht geschlechterspezifisch getrennt, ABER durch optionale Erweiterung möglich)
- kleiner Waschraum, welcher auch als Küchenraum dienen könnte
- 4 Parkplätze am Gebäude
- Möglichkeit zur Gestaltung einer Süd-Terrasse
- (optionale Doppelgarage als Lagerfläche)

Die Mindestmietdauer beträgt 12 Monate.
Die Kaution in Höhe von 2 Kaltmieten kann auch als Bankbürgschaft geleistet werden.

Grundrisse

Grundrisse
1 / 1

Realisiere Dein Projekt

Bausubstanz und Energie

Energieausweis

Endenergiebedarf (Wärme)

  • Zustand der ImmobilieMassivhaus
Immowelt logo

Mietkosten

Nettomiete zzgl. Nebenkosten
1.100 €
Provision für Mieter
provisionsfrei
Kaution
3 Kaltmieten
Weitere Preisinformationen
Nettokaltmiete: 1.100,00 EUR

Lage

address-icon
Bad Malente-GremsmühlenMalente (23714)
Der Anbieter hat die genaue Adresse nicht freigegeben
Die Gewerbefläche befindet sich in der Rosenstraße?63 im Zentrum von Malente (Bad Malente-Gremsmühlen), einer lebendigen und gut angebundenen Adresse im Herzen der Gemeinde Malente im Kreis Ostholstein. Malente liegt in der landschaftlich reizvollen Region der Holsteinischen Schweiz, etwa 5?km nordwestlich von Eutin und rund 35?km nördlich von Lübeck.

Die Rosenstraße selbst ist eine lokal wichtige durchgängige Straße mit Wohn-, Dienstleistungs- und Einzelhandelsnutzung, die verkehrlich gut erschlossen ist und eine direkte Verbindung zu den zentralen Bereichen des Ortskerns bietet. In der unmittelbaren Umgebung befinden sich Apotheken, Supermärkte, Bäckereien sowie weitere Einzelhandels- und Dienstleistungsangebote, die die Versorgung und Erreichbarkeit für Mitarbeiter und Kunden verbessern.


Die Lage zeichnet sich durch gute Anbindung und Infrastruktur aus:

-Bushaltestellen und Nahverkehrsanbindungen sind fußläufig erreichbar.
-Der Bahnhof Bad Malente-Gremsmühlen ist nur wenige Gehminuten entfernt und verbindet den Ort mit dem regionalen Schienenverkehr.
-In der Umgebung finden sich weitere Versorgungseinrichtungen, Arztpraxen und Gastronomieangebote, die eine attraktive Mischung aus Arbeitsplatznähe und Aufenthaltsqualität schaffen.

Durch die zentrale Lage im Ortskern von Malente profitieren sowohl Büro- oder Praxisnutzer als auch Dienstleister oder Kundenorientierte Betriebe von einer hohen Sichtbarkeit und guten Erreichbarkeit. Gleichzeitig bietet der Standort eine angenehme Nachbarschaft mit einer Mischung aus Gewerbe, Dienstleistungen und Wohnnutzung.

Weitere Informationen

Sonstiges Provisionshinweis: "PROVISIONSFREI"
Durch Zusendung des Exposés, durch die Vereinbarung eines Besichtigungstermins oder die Übermittlung von Unterlagen kommt kein Maklervertrag zustande.

Bitte geben Sie uns Ihre vollständige Postanschrift, E-Mail und Telefonnummer auf. Wir werden Ihnen dann die gewünschten Unterlagen übersenden.

-Besichtigungen können gerne gem. Absprache zeitnah erfolgen.

-die Übergabe ist gem. Absprache möglich.



Bitte wahren Sie die Privatsphäre und sehen Sie vom Betreten des Grundstücks aus Rücksicht auf die Bewohner, ohne unsere Begleitung ab. Vielen Dank.


Alle Angaben beruhen auf den Informationen des Vermieters bzw. vom Vermieter beauftragten Dritten und sind vom Mee(h)r Makler nach bestem Wissen und Gewissen für Sie zusammengetragen, jedoch ist Irren menschlich und es kann daher immer mal sein, dass sich der eine oder andere Fehler eingeschlichen hat. Das Angebot ist daher freibleibend und unverbindlich. Mee(h)r Makler Immobilien GmbH übernimmt keine Haftung für die Richtigkeit, dies gilt auch für die Angabe der Wohnfläche, Baujahr, Grundstücksgröße, Grundriss / Wohnflächenberechnungen sowie weitere objektbezogene Daten. Es ist Sache des Kunden / Mieter, diese Angaben auf ihre Richtigkeit hin zu überprüfen.


Mee(h)r Makler Immobilien GmbH
Strandstraße 2
23747 Dahme
01741633418
info@meehrmakler.de

Alle Angebote finden Sie auf unserer Homepage www.meehrmakler.de Stichworte Gesamtfläche: 125,00 m²

Weitere Services

Lust auf eine Besichtigung?
Eine Frage zur Immobilie?
Nachricht hinzufügen
Mit der Nutzung der oben angegebenen Telefonnummer oder durch Klicken auf „Kontaktieren“ akzeptierst Du die Allgemeinen Nutzungsbedingungen, denen Du jederzeit widersprechen kannst. Weitere Informationen zum Datenschutz

Über den Anbieter

Strandstraße 2, 23747 Dahme
partner badge
Partnerschaft
Herr Jan-Peter Feldhoff
Herr Jan-Peter FeldhoffDein Kontakt
Online-ID: 2nne35f
Referenznummer: 2025-00050
Mee(h)r Makler Immobilien GmbH
title
Mee(h)r Makler Immobilien GmbH
Nachricht hinzufügen
Mit der Nutzung der oben angegebenen Telefonnummer oder durch Klicken auf „Kontaktieren“ akzeptierst Du die Allgemeinen Nutzungsbedingungen, denen Du jederzeit widersprechen kannst. Weitere Informationen zum Datenschutz
Wie zufrieden bist du mit dieser Seite (nicht mit der Immobilie selbst)?