Version: 8.25.1Navigation überspringen
McMakler GmbH
439.990 €
7 Zimmer  •  200 m²  •  2.325,3 m² Grundstück

Sonstiges zum Kauf • als Kapitalanlage geeignet
439990 €
2.200 €/m²
7 Zimmer  •  200 m²  •  2.325,3 m² Grundstück

Ein Zuhause mit Herz zum Bestpreis - großzügiges Familienanwesen in ruhiger Feldrandlage

Objektnr: 1069636

Dieses besondere Zuhause vereint auf harmonische Weise historischen Charme mit modernen Wohnansprüchen und spricht vor allem Familien an, die Raum für gemeinsames Leben, Entfaltung und Geborgenheit suchen. Das Anwesen besteht aus zwei Häusern, einem traditionellen Reetdachhaus aus dem Jahr 1850 und einem weiteren Wohnhaus aus dem Jahr 1981, die durch einen geschmackvollen Anbau miteinander verbunden wurden. So entsteht ein Wohngefühl, das man selten findet: großzügig, authentisch, stilvoll und voller Charakter.

Auf rund zweihundert Quadratmetern Wohnfläche verteilt auf sieben Zimmer bietet die Immobilie ausreichend Platz für große Familien oder Menschen, die Wohnen, Arbeiten und Hobby unter einem Dach vereinen möchten. Der außergewöhnliche Grundriss verbindet offene Bereiche mit Rückzugsorten und schafft damit ein Zuhause voller Möglichkeiten. Das Herzstück bildet das offene Wohnzimmer mit Galerie und Kamin. Die lichte Höhe, der Blick in den oberen Bereich und das warme Flammenspiel des Kamins verleihen dem Raum eine Atmosphäre, die sofort Geborgenheit ausstrahlt. Hier entstehen Familienmomente, an die man sich auch nach vielen Jahren gern erinnert.

Die Küche im gemütlichen Landhausstil ist ein weiterer Ort, an dem sich das Leben sammelt. Ausgestattet mit passenden Elektrogeräten, lädt sie dazu ein, gemeinsam zu kochen, zu genießen und Zeit miteinander zu verbringen. Insgesamt stehen drei modernisierte Badezimmer zur Verfügung. Sie wurden etwa im Jahr 2020 saniert und bieten ebenerdige Duschen oder eine Badewanne. Zwei Waschmaschinenanschlüsse sind komfortabel in einem der Badezimmer integriert. Im Obergeschoss befindet sich ein weiteres Badezimmer mit ebenerdiger Dusche sowie ein charmantes Durchgangszimmer mit Oberlicht und einem praktischen Einbauschrank.

Viele Räume verfügen über integrierte Deckenspots, die für eine harmonische und moderne Lichtstimmung sorgen. Die Elektrik wurde im Jahr 2020 geprüft und teilweise erneuert, gleichzeitig wurden umfangreiche Malerarbeiten durchgeführt. Der durchgehend verlegte Boden aus Eichen Vinyl schafft ein einheitliches und warmes Wohnambiente im gesamten Haus. Das Reetdach wurde im Jahr 2023 ausgebessert und der Blitzschutz überprüft, sodass auch dieser wertvolle Teil der Bausubstanz in einem gepflegten Zustand ist. Beheizt wird die Immobilie über eine Gastherme.

Das Haus steht auf einem großzügigen Grundstück von etwa zweitausenddreihundertfünfundzwanzig Quadratmetern. Hier können Kinder spielen, Gärten entstehen und Träume von eigenen Rückzugsorten im Grünen wachsen. Der Garten bietet reichlich Raum für individuelle Gestaltungsideen und lädt dazu ein, das Leben im Freien zu genießen. Die Lage am Feldrand sorgt für wohltuende Ruhe und ein naturnahes Umfeld, das Familien den Ausgleich zum Alltag bietet und zugleich viel Privatsphäre schafft.

Dieses Anwesen ist kein gewöhnliches Haus. Es ist ein Ort, an dem sich Tradition und Moderne begegnen, an dem sich die Familie in all ihren Facetten entfalten kann und an dem man das Gefühl hat, wirklich angekommen zu sein. Ein Zuhause, das mit seiner besonderen Architektur, seiner warmen Ausstrahlung und dem weitläufigen Grundstück das Herz berührt und Potenzial für Generationen bietet.

Merkmale

  • Bezug: nach Absprache
  • 2.325,3 m² Grundstück
  • Einbauküche
  • Badezimmer: Badewanne, Bad mit Dusche
  • Kein Keller
  • Garten
  • 4 Stellplätze
+ Großzügige Wohnfläche von ca. 200 m² mit insgesamt 7 vielseitigen Zimmern
+ Beeindruckender Wohnbereich mit offener Galerie und gemütlichem Kamin
+ Drei modernisierte Bäder (ca. 2020), teils mit ebenerdigen Duschen und Badewanne
+ Charmantes Durchgangszimmer im Obergeschoss mit Oberlicht und Einbauschrank
+ Grundstück mit ca. 2.325 m² in ruhiger Feldrandlage und viel Platz für Familien und kreative Ideen

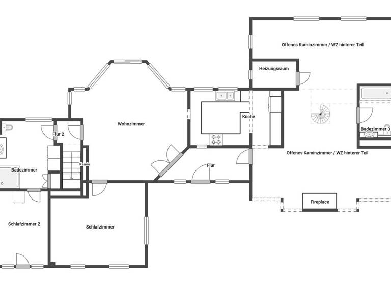
Grundrisse

Grundrisse
1 / 2

Virtueller Rundgang

3D tour

Realisiere Dein Projekt

Bausubstanz und Energie

Energieausweis

F
  • Baujahr1850
  • Zustand der ImmobilieGepflegt
  • HeizungsartZentralheizung
  • EnergieträgerGas
MediumRectangleTop

Preisdetails

Kaufpreis
439990 €
2.199,95 €/m²
Provision für Käufer
Die Provision i.H.v. 3,57 % inkl. MwSt. ist mit Kaufvertragsbeurkundung fällig, sofern der Verkaufspreis über 83.000,00 € liegt.

Liegt der Verkaufspreis dagegen bei/unter 83. Weitere Informationen siehe Provisionshinweis.
Geschätzte Gesamtkosten
455.698 €1
Kaufpreis
439.990 €
Provision für Käufer (3,57%)
15.708 €
1Der angezeigte Wert ist eine automatisch berechnete Schätzung von immowelt.
2Bei den Angaben handelt es sich um ortsübliche Werte. Individuelle Kosten können abweichen.

Lage

address-icon
EdschenburgStadland (26935)
Der Anbieter hat die genaue Adresse nicht freigegeben
Lage: Idyllische Feldrandlage bietet ruhige, entspannte Atmosphäre
Bildung und Betreuung: Nahegelenes Bildungs- und Betreuungsangebot umfasst einen Kindergarten (max 6 km)
Nahversorgung: Verschiedene Anlaufstellen wie Supermarkt, Apotheke, Postfiliale und Bankfiliale in max. 6 km
Anbindung: Autobahn komfortabel erreichbar

Weitere Informationen

Provisionshinweis Die Provision i.H.v. 3,57 % inkl. MwSt. ist mit Kaufvertragsbeurkundung fällig, sofern der Verkaufspreis über 83.000,00 € liegt.

Liegt der Verkaufspreis dagegen bei/unter 83.000,00 €, ist die fest vereinbarte Mindestprovision i.H.v. mind. 5.950,00 € inkl. MwSt. mit Kaufvertragsbeurkundung fällig. Die Mindestprovision fällt insg. nur einmal an, wodurch Verkäufer und Käufer die Mindestprovision dann jeweils mit 2.975,00 € inkl. MwSt. tragen. Sonstiges Vereinbaren Sie noch heute einen Besichtigungstermin!
_____________________________________________________

Alle Angaben sind ohne Gewähr und basieren ausschließlich auf Informationen, die uns von unserem Auftraggeber zur Verfügung gestellt wurden. Wir übernehmen keine Gewähr für die Vollständigkeit, Richtigkeit und Aktualität der Angaben. Stichworte Wohnfläche: 200,27 m², Gesamtfläche: 200,00 m², Anzahl der Schlafzimmer: 3, Anzahl der Badezimmer: 3, 2 Etagen, modernisiert: 2020

Weitere Services

Lust auf eine Besichtigung?
Eine Frage zur Immobilie?
Nachricht hinzufügen
Mit der Nutzung der oben angegebenen Telefonnummer oder durch Klicken auf „Kontaktieren“ akzeptierst Du die Allgemeinen Nutzungsbedingungen, denen Du jederzeit widersprechen kannst. Weitere Informationen zum Datenschutz

Über den Anbieter

Am Postbahnhof 17, 10243 Berlin
Ihr McMakler TeamDein Kontakt
Online-ID: 264HLK87KEEP
Referenznummer: e560134ad9
McMakler GmbH
McMakler GmbH
Nachricht hinzufügen
Mit der Nutzung der oben angegebenen Telefonnummer oder durch Klicken auf „Kontaktieren“ akzeptierst Du die Allgemeinen Nutzungsbedingungen, denen Du jederzeit widersprechen kannst. Weitere Informationen zum Datenschutz
MediumRectangleTop
MediumRectangleBottom
MediumRectangleTop
Wie zufrieden bist du mit dieser Seite (nicht mit der Immobilie selbst)?