

Bürogebäude zur Miete9.002 €14 Zimmer • 390,5 m² Bürofläche
9.002 €
14 Zimmer • 390,5 m² Bürofläche
Feldkirchen bei Graz! - Büroflächen mit ca. 400m² samt befahrbarem Keller ca. 900m² mit LKW's und überdachte Freiflächen-Box ca. 120m²
Merkmale
- frei ab sofort
- Erdgeschoss
- Kochnische
- teilweise möbliert
- Raumaufteilung flexibel
- Bodenbelag: Fliesen, Linoleum
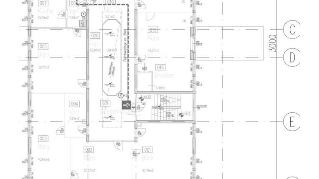
Grundrisse
Verschaffe dir einen genauen Überblick über die Raumaufteilung.

Realisiere Dein Projekt
Bausubstanz und Energie
Heizwärmebedarf (HWB)
C
Gesamtenergieeffizienz (fGEE)
B
- Baujahr2003
- Zustand der ImmobilieNeubau, Massivhaus, Gepflegt
- HeizungsartZentralheizung
- EnergieträgerFernwärme
Mietkosten
Nettokaltmiete
9.001,88 €
Betriebskosten
2.009,38 €
Provision für Mieter
3 Bruttomonatsmieten zzgl. 20% USt.
Kaution
3 Bruttomonatsmieten
Weitere Preisinformationen
Nettokaltmiete: 9.001,88 EUR
Lage

Feldkirchen bei Graz (8073)
Weitere Informationen
Weitere Services
Lust auf eine Besichtigung?
Eine Frage zur Immobilie?
Über den Anbieter
Packerstraße 281, 8501 LIEBOCH
Partnerschaft
Herr Christopher KrählingDein Kontakt
Online-ID: 23UGT5YJFXEU
Referenznummer: OBGC20230606091244347f7349a52c2

ALTERA Real Estate GmbH
Wie zufrieden bist du mit dieser Seite (nicht mit der Immobilie selbst)?

