Version: 8.25.1Navigation überspringen
2,90 €
5.000 m² Lagerfläche  •  teilbar ab 500 m²
Immowelt logo

Halle/Industriefläche zur Miete
2,90 €
/m²
5.000 m² Lagerfläche  •  teilbar ab 500 m²

Moderne Produktions-/Gewerbeflächen in Gehren zur Miete, auch Teilfächen anmietbar

Kurzbeschreibung Gewerbegebiet, große moderne Produktionshalle, ab 01.12.2023 frei, PKW-Stellplätze vorhanden, zusätzliche Büroflächen in seperaten Bürogebäude vorhanden, auch eine Anmietung von Teilfächen ist möglich Objekt Die moderne Produktionshalle in der Xavier-Vorbrüggen-Straße 8 im Ilmenauer Ortsteil Gehren ist ab dem 1. Dezember 2023 verfügbar. Die Halle erstreckt sich über eine großzügige Fläche von 5000m² und bietet somit ausreichend Platz für unterschiedliche Produktions- und Fertigungsaktivitäten.

Ein besonderes Merkmal der Halle ist der ESD (elektrostatisch ableitfähige) Fußboden. Dieser spezielle Bodenbelag gewährleistet einen sicheren Betrieb in Bereichen, in denen elektronische Komponenten hergestellt, gelagert oder verarbeitet werden. Durch die Ableitung elektrostatischer Aufladungen wird das Risiko von Schäden an empfindlichen elektronischen Bauteilen minimiert.

Die moderne Produktionshalle ist ideal für Unternehmen geeignet, die nach einer hochwertigen, funktionalen und zugleich technisch optimierten Arbeitsumgebung suchen. Sie bietet genügend Platz für Maschinen, Lagerflächen und Arbeitsbereiche und kann flexibel an die individuellen Anforderungen des Mieters angepasst werden.

Dank ihrer Lage in Gehren, einem Ortsteil von Ilmenau, profitiert die Halle von einer verkehrsgünstigen Anbindung an wichtige Verkehrswege. Dies erleichtert den Transport von Waren und Materialien sowohl innerhalb der Region als auch überregional.

Insgesamt stellt die moderne Produktionshalle in der Xavier-Vorbrüggen-Straße 8 in Gehren eine attraktive Option für Unternehmen dar, die nach einer hochmodernen und funktionalen Produktionsstätte suchen, die den besonderen Anforderungen der Elektronik- oder Fertigungsindustrie gerecht wird.

Merkmale

  • Bezug: ab 01.12.2023
  • Bodenbelag: Kunststoff
  • 10 Stellplätze
  • Raumaufteilung flexibel
sehr gute moderne Ausstattung, Wachschutz, Büros Fußbodenheizung, u.v.a.m.
2018 / 2019 modernisiert: neuer Hallenboden, neue EDV-Anlage, teilweise neue Elektrik, Malerarbeiten

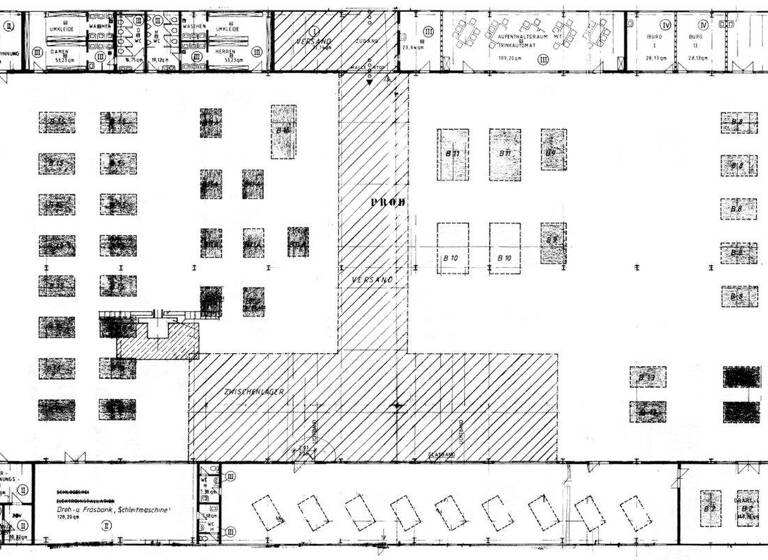
Grundrisse

Grundrisse
1 / 4

Realisiere Dein Projekt

Bausubstanz und Energie

Möchtest du Details zum Energieverbrauch?info_energy_calculation-icon
  • Baujahr1995
  • Zustand der ImmobilieGepflegt
  • EnergieträgerGas
Immowelt logo

Mietkosten

Nettomiete zzgl. Nebenkosten
2,90 €/m²
14.500 €
Provision für Mieter
Bitte beachte, das Angebot kann bei Vertragsabschluss die Zahlung einer Provision beinhalten. Weitere Informationen erhältst Du vom Anbieter.
Kaution
keine Angabe
Weitere Preisinformationen
Nettokaltmiete: 14.500,00 EUR

Lage

address-icon
Gehren (98708)
Der Anbieter hat die genaue Adresse nicht freigegeben
Gehren liegt am Nordostrand des Thüringer Waldes etwa acht Kilometer östlich von Ilmenau. Südöstlich der Stadt beginnt bereits das Thüringer Schiefergebirge, während sich nördlich die Hügel des Paulinzellaer Buntsandsteinlandes erstrecken. Gehren liegt an der Mündung der Schobse in die Wohlrose, einem Nebenfluss der Ilm. Zudem verläuft als westliche Grenze zu Langewiesen die Lohme. Nördlich der Stadt zwischen der Ilm und der Wohlrose erstreckt sich eine ebene Heidefläche, in der das Gehrener Feuchtgebiet, eines der größten natürlichen Feuchtgebiete im Bereich des Thüringer Waldes liegt. Nahe an Gehren liegen hierbei der Heideteich und die Löschwasserteiche, etwas weiter nördlich der Seerosenteich und nordöstlich der Stadt die Zweizapfenteiche und die Sorger Teiche. Das Feuchtgebiet liegt in etwa 450 Metern Höhe und steht unter Naturschutz.
Heute gibt es in Gehren verschiedene mittelständische Unternehmen, die sich im Gewerbegebiet im Norden der Stadt angesiedelt haben.
Gehren liegt an der B 88 Ilmenau-Rudolstadt, für die im Bundesverkehrswegeplan 2030 eine Ortsumgehung im weiteren Bedarf vorgesehen ist. In Gehren wird sie von der Landesstraße 1047 Gräfinau-Angstedt-Großbreitenbach gekreuzt. Die Stadt ist in hohem Maße vom Durchgangsverkehr von der A 71 (Anschlussstelle Ilmenau-Ost) ins Schiefergebirge belastet, dabei ist die Ortsdurchfahrt von engen Straßen und Kreuzungen geprägt.
Das Objekt befindet sich im Gewerbegebiet in der Xavier-Vorbrüggen-Straße 8.

Weitere Informationen

Sonstiges Baujahr: 1995
Befeuerung/Energieträger: Gas
Heizungsart: Zentralheizung

Autobahn
A 71 = 10 km
Bundes-/Landesstraßen
B 88 / B 4 / B 87 = anliegend / 8 km /8 km
Gleisanschluss Nein
Güterumschlag
Ilmenau = 10 km
Flughafen Erfurt-Weimar
45 km Stichworte Stellplatz vorhanden, Lagerfläche: 5.000,00 m², Gesamtfläche: 5.000,00 m², Bundesland: Thüringen

Weitere Services

Lust auf eine Besichtigung?
Eine Frage zur Immobilie?
Mit einer persönlichen Nachricht hast du bessere Chancen auf eine Antwort.
Mit der Nutzung der oben angegebenen Telefonnummer oder durch Klicken auf „Kontaktieren“ akzeptierst Du die Allgemeinen Nutzungsbedingungen, denen Du jederzeit widersprechen kannst. Weitere Informationen zum Datenschutz

Über den Anbieter

Schwanitzstr. 7, 98693 Ilmenau
partner badge
10 Jahre Partnerschaft
Herr Ingolf RüterDein Kontakt
Online-ID: 2333P5S6MEUE
Referenznummer: 14804
Marek Schramm Immobilien
Marek Schramm Immobilien
Bewertung: 4,5 von 5 Sternen
Mit einer persönlichen Nachricht hast du bessere Chancen auf eine Antwort.
Mit der Nutzung der oben angegebenen Telefonnummer oder durch Klicken auf „Kontaktieren“ akzeptierst Du die Allgemeinen Nutzungsbedingungen, denen Du jederzeit widersprechen kannst. Weitere Informationen zum Datenschutz
Wie zufrieden bist du mit dieser Seite (nicht mit der Immobilie selbst)?