Version: 8.24.0Navigation überspringen
ohne-makler.net - Immobilien selbst vermarkten
430.000 €
5 Zimmer  •  110 m²  •  519 m² Grundstück

Doppelhaushälfte zum Kauf • provisionsfrei
430000 €
3.909 €/m²
5 Zimmer  •  110 m²  •  519 m² Grundstück

Doppelhaushälfte zu Verkaufen

Charmante Doppelhaushälfte mit großem Grundstück, Garage & viel Potential in ruhiger Lage von Aalen

Willkommen in Ihrem neuen Zuhause! Diese gepflegte Doppelhaushälfte vereint soliden Wohnkomfort, eine durchdachte Raumaufteilung und ein großzügiges Grundstück - perfekt für Familien, Paare oder alle, die sich den Traum vom eigenen Haus erfüllen möchten.

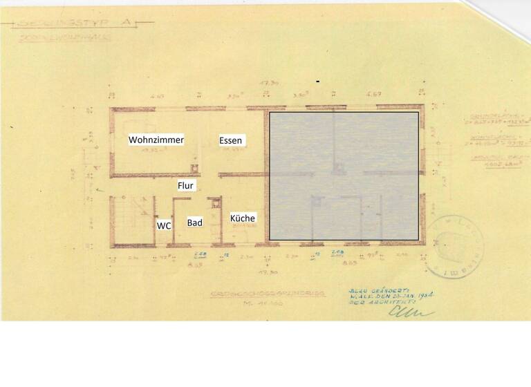
Das Haus wurde 1958 in massiver Bauweise errichtet und befindet sich in einem guten Zustand. Auf ca. 110 m2 Wohnfläche verteilen sich 5 gut geschnittene Zimmer über zwei Etagen, die vielfältige Nutzungsmöglichkeiten bieten - ob als Familienheim, Homeoffice oder Gästezimmer.

Besonders hervorzuheben ist das großzügige Grundstück mit ca. 519 m2, das viel Platz für Gartenliebhaber, Kinder oder entspannte Stunden im Freien bietet. Hier können sie Ihre individuellen Wohn- und Gartenträume verwirklichen.
Der voll unterkellerte Bereich (100 % Unterkellerung) sorgt für zusätzlichen Stauraum und Nutzfläche. Das ausgebaute Dachgeschoss erweitert den Wohnraum und unterstreicht die optimale Nutzung des Hauses.

Für Ihre Fahrzeuge stehen Ihnen eine Garage sowie drei zusätzliche Stellplätze zur Verfügung - ein echter Pluspunkt im Alltag.

Merkmale

  • Bezug: nach Absprache
  • 519 m² Grundstück
  • Einbauküche
  • Keller
  • Garage, 3 Außen-Stellplätze
  • Garten
  • Terrasse
  • Badewanne

Grundrisse

Grundrisse
1 / 3

Realisiere Dein Projekt

Bausubstanz und Energie

Energieausweis

G
  • Baujahr1958
  • Zustand der Immobilierenoviert / saniert
  • HeizungsartZentralheizung
  • EnergieträgerÖl
MediumRectangleTop

Preisdetails

Kaufpreis
430000 €
3.909,09 €/m²
Provision für Käufer
provisionsfrei; keine Provision, courtagefrei
Weitere Preisinformationen
3 Stellplätze
1 Garagenstellplatz
Geschätzte Gesamtkosten
460.100 €1
Kaufpreis
430.000 €
Notarkosten (1,5%)
6.450 €
Grunderwerbsteuer (5%)
21.500 €
Grundbucheintrag (0,5%)
2.150 €
1Der angezeigte Wert ist eine automatisch berechnete Schätzung von immowelt.
2Bei den Angaben handelt es sich um ortsübliche Werte. Individuelle Kosten können abweichen.

Lage

address-icon
UnterkochenAalen Unterkochen (73432)
Der Anbieter hat die genaue Adresse nicht freigegeben
Die Lage überzeugt durch ein ruhiges und gewachsenes Wohnumfeld guter Anbindung an die Aalener Innenstadt sowie Einkaufsmöglichkeiten, Schulen und öffentliche Verkehrsmittel in der Nähe.
Infrastruktur (im Umkreis von 5 km):
Apotheke, Lebensmittel-Discount, Allgemeinmediziner, Kindergarten, Grundschule, Hauptschule, Realschule, Gesamtschule, Öffentliche Verkehrsmittel

Weitere Informationen

Sonstiges Heizungsart: Zentralheizung
Energieträger: Öl


Makleranfragen nicht erwünscht. Nach § 7 UWG sind unaufgeforderte Kontaktaufnahmen durch Makler ohne ausdrückliche Einwilligung des Empfängers verboten!

ohne-makler (OM) ist weder Anbieter noch Vermittler der Immobilie. OM betreibt eine Plattform für Immobilieneigentümer, die unter anderem die gleichzeitige Veröffentlichung einzelner Inserate auf mehreren Immobilienportalen ermöglicht. Die Inhalte dieser Inserate werden ausschließlich von Dritten verantwortet. Für die Richtigkeit, Vollständigkeit oder Rechtmäßigkeit der Angaben übernimmt OM keine Haftung. Hinweise auf mögliche Rechtsverstöße können jederzeit gemeldet werden und werden nach Prüfung umgehend bearbeitet. Stichworte Garage vorhanden, Stellplatz vorhanden, Nutzfläche: 169,00 m², Anzahl der Schlafzimmer: 4, Anzahl der Badezimmer: 1, Anzahl der separaten WCs: 1, Anzahl Terrassen: 1, Bundesland: Baden-Württemberg, 2 Etagen

Weitere Services

Lust auf eine Besichtigung?
Eine Frage zur Immobilie?
Nachricht hinzufügen
Mit der Nutzung der oben angegebenen Telefonnummer oder durch Klicken auf „Kontaktieren“ akzeptierst Du die Allgemeinen Nutzungsbedingungen, denen Du jederzeit widersprechen kannst. Weitere Informationen zum Datenschutz

Über den Anbieter

Humboldtstr. 25 A, 21509 Glinde
partner badge
Partnerschaft
Privat von Julia BenhardtDein Kontakt
Keine Telefonnummer hinterlegt
Keine Telefonnummer hinterlegt
Online-ID: 2m78s5w
Referenznummer: 417550
ohne-makler.net - Immobilien selbst vermarkten
ohne-makler.net - Immobilien selbst vermarkten
Nachricht hinzufügen
Mit der Nutzung der oben angegebenen Telefonnummer oder durch Klicken auf „Kontaktieren“ akzeptierst Du die Allgemeinen Nutzungsbedingungen, denen Du jederzeit widersprechen kannst. Weitere Informationen zum Datenschutz
MediumRectangleTop
MediumRectangleBottom
MediumRectangleTop
Wie zufrieden bist du mit dieser Seite (nicht mit der Immobilie selbst)?