Version: 8.24.0Navigation ĂĽberspringen
904.000 €
4 Zimmer  â€˘  115,5 m²
Immowelt logo

Wohnung zum Kauf
904000 €
7.827 €/m²
4 Zimmer  â€˘  115,5 m²

Gehobenes Penthouse in idealer Stadtlage!

Neubau von 23 Eigentumswohnungen im KFW 40 QNG- STANDARD mit Tiefgarage
Landshut, Am Isargestade.

Profitieren Sie hier von der Möglichkeit eines zinsgünstigen KFW-Förderkredits (Klimafreundlicher Neubau) bis zu 150.000,- EUR je Wohnung, mit verschiedensten Laufzeitvarianten und Zinsbindungen!

- 1 bis 5 Zimmer-Wohnungen Wohnflächen von 37 m² bis 138 m²
- zentrumsnah an der groĂźen Isar (Innenstadt in FuĂźentfernung)
- helle Räume mit durchdachten Grundrissen
- moderne Architektur
- solide wohngesunde Ziegel-Massiv Bauweise
- hochwertige Baumaterialien und Ausstattung
- Fernwärme mit Fußbodenheizung, individuell regulierbar über Raumthermostate
- Wohnraumlüftung mit Wärmerückgewinnung in allen Schlafräumen
- Kalkschutzanlage
- hochwertiger Energiestandard QNG-zertifiziertes Gebäude KFW 40 nach GEG
- EG Wohnungen teilweise mit Gartenanteil
- Balkon/Loggia oder Dachterrasse
- ĂĽberdachter Fahrrad-Stellplatz
- jeder Wohnung ist ein eigenes Kellerabteil zugeordnet
- 25 Tiefgaragen-Stellplätze je 40.000 EUR (Duplex je 30.000 EUR)
- 2 Garagen Stellplätze je 50.000 EUR
- Vorbereitung für Ladestation und Lastenmanagement für E-Mobilität in der TG

Endenergiebedarf des Gebäudes: wird unmittelbar mit Fertigstellung des Gebäudes vorgelegt
Energieausweis: nicht erforderlich - Grund: neu zu errichtende Gebäude gem. § 80 (1) GEG

Ausstattung:

Bodenbeläge:
- Wohnräume: Echtholz-Eichen-Parkett
- Großformatige Fliesen in den Bädern 60 x 60 cm
- Terrassen: Plattenbelag Größe bis 60 x 60 cm
(Auswahl an verschiedenen Farben und Varianten möglich)

Fenster und Rollläden:
- 3-fach Verglasung der Fenster und TerrassentĂĽren
- Badezimmerfenster satiniert oder klar (nach Wunsch)
- Rollläden / Raffstores elektrisch

Heizungsanlage:
- Fernwärme
- FuĂźbodenheizung + elektrischer Handtuchtrockner in den Badezimmern

Sanitärausstattung:
- Bäder / WC`s werden mit einer aktuellen Serie der Firma Mann ausgestattet
- Die Duschkabinen werden mit einer SchwingtĂĽre, Einscheibensicherheitsglas klar ausgestattet
- Waschmaschinenanschluss innerhalb der Wohnungen vorhanden

Sonstiges:
- Satteldach
- Videosprechanlage
- zwei AufzĂĽge fĂĽr je 6 Personen
- TĂśV- Baucontrolling

Weitere Details zur Ausstattung gerne auf Anfrage.

Die Baufertigstellung ist fĂĽr Ende 2027 geplant!

Keine zusätzliche Käuferprovision!

Merkmale

  • Balkon

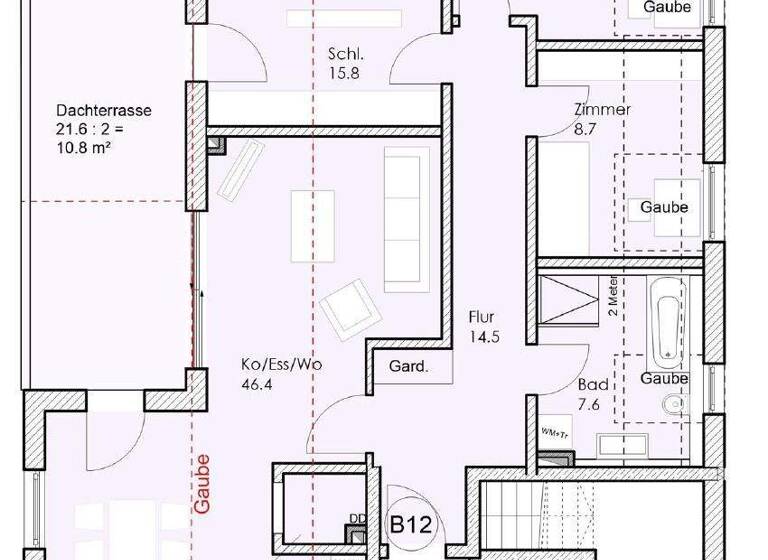
Grundrisse

Grundrisse
1 / 1

Realisiere Dein Projekt

Bausubstanz und Energie

Der Anbieter hat keine Informationen zum Energieverbrauch bereit gestellt.
  • Baujahr2027
Immowelt logo

Preisdetails

Kaufpreis
904000 €
7.826,84 €/m²
Provision für Käufer
Bitte beachte, das Angebot kann bei Vertragsabschluss die Zahlung einer Provision beinhalten. Weitere Informationen erhältst Du vom Anbieter.
Geschätzte Gesamtkosten
985.993 €1
Kaufpreis
904.000 €
Notarkosten (1,5%)
13.560 €
Grunderwerbsteuer (3,5%)
31.640 €
Provision für Käufer (3,57%)
32.273 €
Grundbucheintrag (0,5%)
4.520 €
1Der angezeigte Wert ist eine automatisch berechnete Schätzung von immowelt.
2Bei den Angaben handelt es sich um ortsübliche Werte. Individuelle Kosten können abweichen.

Lage

address-icon
Altstadt, Landshut-Altstadt (84028)
Der Anbieter hat die genaue Adresse nicht freigegeben
Gehobenes Wohnen in allerbester Lage!
Hier wohnen Sie in einer der begehrtesten Lagen Landshuts. "Am Isargestade" finden Sie ein angenehmes Wohnumfeld, Lebensqualität und Erholung vor der Haustüre. Die hervorragende Lage bietet reichlich Raum für Natur, Freizeit, Arbeiten und Erholung bei gleichzeitiger unmittelbarer Stadtnähe. Über den gegenüber liegenden Idyllischen Rad- und Spazierweg des Maxwehrs, erreichen Sie die Landshuter Innenstadt schnell und stressfrei. Die Stadtbusanbindung ist ebenfalls optimal, die Haltestelle der Linie 7 befindet sich vor Ihrer Haustür.
Aber auch die ĂĽberregionale Anbindung ist hervorragend. Die B299 Rtg. Vilsbiburg, die A 92 Richtung MĂĽnchen (Anschlussstelle Landshut - West) sowie die B15neu nach Regensburg sind gut und schnell erreichbar.
Im Stadtgebiet wohnen derzeit ĂĽber 75.000 Einwohner, im engeren Wirtschaftsraum von Landshut leben rund 450.000 Einwohner.
Der Wirtschaftsstandort Stadt Landshut ist ein äußerst leistungsfähiger und zukunftsorientierter Investitionsraum mitten in Bayern. Landshut, ca. 60 KM nordöstlich von München, mit dem Regierungssitz und vielen bedeutenden Unternehmen bildet das administrative und wirtschaftliche Zentrum von Niederbayern.
Die Bedeutung der Stadt wird größer, da die Dynamik im Umfeld des Verdichtungsraumes München wächst. Des Weiteren kommt der Stadt Landshut zugute, dass sie im Einzugsbereich des Flughafen München liegt und von der dortigen Entwicklung profitiert. Von Landshut zum Airport München sind es nur ca. 42 KM.

Weitere Informationen

Stichworte Anzahl Balkone: 1, Anzahl der Wohneinheiten: 23, Bundesland: Bayern

Weitere Services

Lust auf eine Besichtigung?
Eine Frage zur Immobilie?
Nachricht hinzufĂĽgen
Mit der Nutzung der oben angegebenen Telefonnummer oder durch Klicken auf „Kontaktieren“ akzeptierst Du die Allgemeinen Nutzungsbedingungen, denen Du jederzeit widersprechen kannst. Weitere Informationen zum Datenschutz

Ăśber den Anbieter

VR-Bank Landshut eG
VR-Bank Landshut eGMaklerbĂĽro
Rosengasse 350, 84028 Landshut
Herr Thomas Finsterhölzl
Herr Thomas FinsterhölzlDein Kontakt

Weitere Unterlagen

Online-ID: 2n7gk5f
Referenznummer: 0-390
VR-Bank Landshut eG
title
VR-Bank Landshut eG
Bewertung: 5 von 5 Sternen
Nachricht hinzufĂĽgen
Mit der Nutzung der oben angegebenen Telefonnummer oder durch Klicken auf „Kontaktieren“ akzeptierst Du die Allgemeinen Nutzungsbedingungen, denen Du jederzeit widersprechen kannst. Weitere Informationen zum Datenschutz
Wie zufrieden bist du mit dieser Seite (nicht mit der Immobilie selbst)?