Version: 8.24.1Navigation überspringen
1.426.500 €
Immowelt logo

Gewerbegrundstück zum Kauf
1426500 €

Industriegrundstück für einen neuen Logistikstandort in "Hadji Dimitar", Sofia

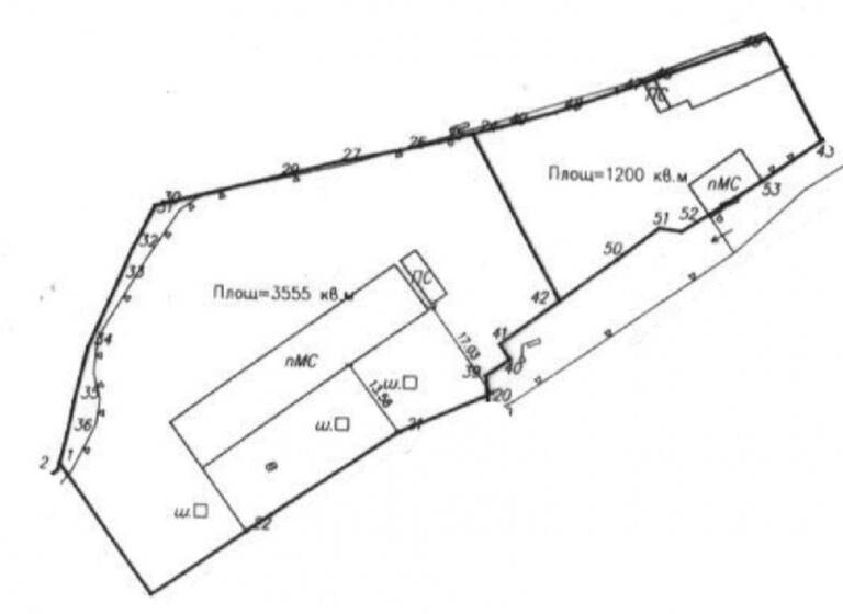
Grundrisse

Grundrisse
1 / 1

Realisiere Dein Projekt

Bausubstanz und Energie

Der Anbieter hat keine Informationen zu Energieverbrauch oder Zustand der Immobilie bereit gestellt.
Immowelt logo

Preisdetails

Kaufpreis
1426500 €
Provision für Käufer
Bitte beachte, das Angebot kann bei Vertragsabschluss die Zahlung einer Provision beinhalten. Weitere Informationen erhältst Du vom Anbieter.

Lage

address-icon
Sofia
Fallback location image
Die Karte ist nicht verfügbar.

Weitere Informationen

Sonstiges Der Text wurde ins Deutsche mithilfe einer automatischen Software übersetzt und es ist möglich, dass er einige Ungenauigkeiten enthält. Für eine korrekte Beschreibung und aktuelle Informationen zur Immobilie wenden Sie sich bitte an unseren Makler!

Wir präsentieren ein Grundstück in einem Industriegebiet in Sofia, in der Nähe der Straßen "Rezbarska" und "First Bulgarian Army" im Industriegebiet "Hadji Dimitar".



Das Objekt stellt eine hervorragende Investitionsmöglichkeit in einem sich dynamisch entwickelnden Industriegebiet von Sofia dar, mit schnellem Zugang zur ?Nordtangente? und nur wenige Autominuten vom Zentrum der Hauptstadt entfernt.



Das Grundstück liegt innerhalb der SMF-Bauzone. Es eignet sich ideal als Logistikstützpunkt und verfügt über eine große Straßenfront. Die Zufahrt ist bequem, da die breiten Straßen für den Schwerlastverkehr geeignet sind. Anschlüsse für Strom, Wasser, Abwasser und Gas befinden sich in unmittelbarer Nähe.



Hauptparameter:

- Bebauungsdichte (BD): bis zu 60%;

- KINT: bis zu 3,5;

- Maximale Höhe: bis zu 26 m;

- Mindestens landschaftsgärtnerische Gestaltung: 30 %.



Diese Parameter ermöglichen den Bau eines bedeutenden Komplexes in großem Umfang ? Produktionshallen, Logistikstützpunkte, Bürogebäude oder kombinierte Gebäude.



Wir freuen uns auf Ihre Anfrage.



Wenn Sie eine Immobilie besichtigen möchten, die Sie interessiert, oder eines unserer Büros besuchen möchten, kontaktieren Sie uns bitte. Um einen Termin für eine Besichtigung oder ein Treffen zu vereinbaren, rufen Sie uns bitte unter der in der Anzeige angegebenen Telefonnummer an oder senden Sie uns eine Anfrage per E-Mail. Unser Berater unterstützt Sie gerne mit allen notwendigen Informationen und findet einen passenden Termin für Sie.



Sind Sie auf der Suche nach der passenden Immobilie für Sie?



Zögern Sie nicht, uns zu kontaktieren und uns Ihre Wünsche und Vorlieben mitzuteilen. Unser Team führt eine gründliche Marktanalyse durch, um Ihnen Immobilien anzubieten, die genau Ihren Kriterien entsprechen. Wir verfügen über ein außergewöhnliches Portfolio an hochwertigen und exklusiven Häusern, die nur unseren Kunden zur Verfügung stehen. Um als Erster Informationen darüber zu erhalten, kontaktieren Sie uns.



Zusätzliche Dienstleistungen



Als geschätzter Kunde unseres Unternehmens genießen Sie den Vorteil, die Dienste unseres erfahrenen Rechtsteams kostenfrei in Anspruch zu nehmen. Darüber hinaus bieten wir Ihnen umfassende Lösungen, darunter Gebäudeversicherungen, kostenlose Finanzberatung sowie attraktive Finanzierungskonditionen. Unser Leistungsspektrum umfasst auch die Bereiche Wiederverkauf, Vermietung und Immobilienverwaltung. Hochwertige Renovierungen und Einrichtungsarbeiten vermitteln wir Ihnen über spezialisierte Unternehmen unserer Unternehmensgruppe, mit denen wir seit Langem zusammenarbeiten.


Besichtigungen


Wir können eine Besichtigung der Immobilie zu einer für Sie passenden Zeit vereinbaren. Bitte kontaktieren Sie den für dieses Angebot zuständigen Makler und teilen Sie ihm die von Ihnen gewünschte Uhrzeit mit.





Reservierung der Immobilie


Gegen eine nicht erstattete Anzahlung in Höhe von 2.000 Euro wird die Immobilie reserviert. Weitere Besichtigungen mit anderen Käufern finden nicht statt und Makler beginnt mit der Vorbereitung der Dokumente für den Abschluss des endgültigen Vertrags für Eigentumsübertragung. Bitte kontaktieren Sie den zuständigen Makler für mehr Information über den Kauf einer Immobilie und Zahlungsarten.





Zusatzleistungen und Kundendienst


Wir sind ein seriöses Unternehmen und werden nicht nur während des Kaufs, sondern auch danach bei Ihnen sein und Ihnen auf Ihren Wunsch zusätzliche Dienstleistungen anbieten, um die neu gekaufte Immobilie vollständig und nahtlos zu nutzen. Die Dienstleistungen, die wir anbieten können, umfassen die Erlangung einer Hypothekengenehmigung, eine Versicherung für bewegliche und unbewegliche Sachen, eine Lebensversicherung, eine Kranken- und Autoversicherung, Bau- und Reparaturaktivitäten, Möbel, Rechts- und Buchhaltungsdienstleistungen usw.


Bei uns können Sie nicht nur eine Immobilie mieten, sondern auch eine Reihe von Zusatzleistungen in Anspruch nehmen. Wir können Versicherungen für bewegliches und unbewegliches Vermögen, Lebensversicherungen, Kranken- und Kfz-Versicherungen, Bau- und Reparaturarbeiten, Möbel, Rechts- und Buchhaltungsdienstleistungen usw. anbieten.

Stichworte Wohnfläche: 4.755,00 m², Lage im Bau: rechts vorne

Weitere Services

Lust auf eine Besichtigung?
Eine Frage zur Immobilie?
Nachricht hinzufügen
Mit der Nutzung der oben angegebenen Telefonnummer oder durch Klicken auf „Kontaktieren“ akzeptierst Du die Allgemeinen Nutzungsbedingungen, denen Du jederzeit widersprechen kannst. Weitere Informationen zum Datenschutz

Über den Anbieter

Suprimmo AG
Suprimmo AGMaklerbüro
Cherni Vrah Blvd. Nr. 51, 1407 SOFIA
partner badge
Partnerschaft
Frau Adriana Nikolova
Frau Adriana NikolovaDein Kontakt
Online-ID: 2m7sn5t
Referenznummer: IMW-136826
Suprimmo AG
title
Suprimmo AG
Bewertung: 5 von 5 Sternen
Nachricht hinzufügen
Mit der Nutzung der oben angegebenen Telefonnummer oder durch Klicken auf „Kontaktieren“ akzeptierst Du die Allgemeinen Nutzungsbedingungen, denen Du jederzeit widersprechen kannst. Weitere Informationen zum Datenschutz
Wie zufrieden bist du mit dieser Seite (nicht mit der Immobilie selbst)?