Version: 8.25.1Navigation überspringen
250.000 €
4 Zimmer  •  59 m²  •  1. Geschoss
Immowelt logo

Wohnung zum Kauf
250000 €
4.237 €/m²
4 Zimmer  •  59 m²  •  1. Geschoss

Wohnung 59m2 zum Kauf - Split, Grad - Meje

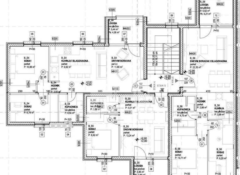
Wir bieten eine Zweizimmerwohnung im ersten Obergeschoss eines im Bau befindlichen Wohngebäudes in Slatina auf der Insel Ciovo zum Verkauf an. Die Wohnung trägt die Nummer STAN 6.
Die Wohnung besteht aus zwei Schlafzimmern, einem Badezimmer mit WC, einem Wohn-/Essbereich mit Küche und einer Loggia.
Die Wohnfläche beträgt 53,88 m, die Loggia 5,60 m.
Ein überdachter Parkplatz ist inklusive.
Jeder Käufer erhält eine einjährige Wohnungsversicherung als Geschenk, die Schutz gegen Überschwemmungen, Feuer, Einbruch und ähnliche Risiken bietet. Optional können Garagenstellplätze erworben werden: eine Einzelgarage für 30.000 oder eine Doppelgarage für 45.000 . Der Kauf der Wohnung ist mit einem Wohnkredit und einer Anzahlung von mindestens 20 % möglich.
Alle Wohnungen verfügen über Fußbodenheizung in den Badezimmern und eine Klimaanlage. Hochwertige PVC-Fenster und -Türen mit elektrischen Rollläden und Insektenschutzgittern an allen Öffnungen werden installiert. Sie können zwischen zwei bis drei Fliesenarten wählen. Die Sanitäranlagen werden vom Verkäufer bereitgestellt.
Die Gebäude sind in Stahlbetonbauweise mit einer 10 cm dicken Steinwolle-Wärmedämmung errichtet. Das Treppenhaus ist geschlossen.
Nur 70 m vom Meer entfernt!
Für weitere Informationen kontaktieren Sie bitte den Makler.

Merkmale

  • 1. Geschoss

Grundrisse

Grundrisse
1 / 1

Realisiere Dein Projekt

Bausubstanz und Energie

Möchtest du Details zum Energieverbrauch?info_energy_calculation-icon
Immowelt logo

Preisdetails

Kaufpreis
250000 €
4.237,29 €/m²
Provision für Käufer
Bitte beachte, das Angebot kann bei Vertragsabschluss die Zahlung einer Provision beinhalten. Weitere Informationen erhältst Du vom Anbieter.

Lage

address-icon
Grad - Meje
Der Anbieter hat die genaue Adresse nicht freigegeben

Weitere Informationen

Stichworte Anzahl der Schlafzimmer: 2, Anzahl der Badezimmer: 1, 1 Etagen

Weitere Services

Lust auf eine Besichtigung?
Eine Frage zur Immobilie?
Nachricht hinzufügen
Mit der Nutzung der oben angegebenen Telefonnummer oder durch Klicken auf „Kontaktieren“ akzeptierst Du die Allgemeinen Nutzungsbedingungen, denen Du jederzeit widersprechen kannst. Weitere Informationen zum Datenschutz

Über den Anbieter

Nova cesta 60, 10000 ZAGREB
Domus TrogirDein Kontakt
Online-ID: 25LR2P9CAY7E
Referenznummer: 18906603_0
Crozilla.com
Crozilla.com
Nachricht hinzufügen
Mit der Nutzung der oben angegebenen Telefonnummer oder durch Klicken auf „Kontaktieren“ akzeptierst Du die Allgemeinen Nutzungsbedingungen, denen Du jederzeit widersprechen kannst. Weitere Informationen zum Datenschutz
Wie zufrieden bist du mit dieser Seite (nicht mit der Immobilie selbst)?