Version: 8.25.2Navigation überspringen
13 €
408,4 m² Bürofläche
Immowelt logo

Bürofläche zur Miete
13 €
/m²
408,4 m² Bürofläche

Doppio Offices

Das Bürogebäude Doppio Offices liegt ideal nahe der Wiener Innenstadt im 3. Wiener Gemeindebezirk, im stark wachsenden Stadtgebiet ,,Neu Marx". Als optische Erweiterung des preisgekrönten T-Centers bilden Doppio Offices und das Austria Trend Hotel Doppio eine Einheit, einen Businessstandort mit optimalen Anbindungen. Insgesamt verfügt das Bürogebäude über acht Ober- und zwei Untergeschosse, letztere sind als Tiefgarage ausgebildet und bieten insgesamt 64 PKW- Stellplätze.

Die modern ausgestatteten Mieteinheiten werden auf Mieterwunsch hin gestaltet. Ob attraktiver Meetingraum oder Einzel-, Teambüros oder Open Space - in den Doppio Offices ist alles möglich. Neben der individuellen Nutzungsmöglichkeit bieten die Doppio Offices auch eine state-of-the-art Gebäudetechnologie. Eine geräuschlose und ökologische Bauteilaktivierung gewährleistet im Sommer eine effiziente Raumkühlung. Die ideale Ergänzung für die Bürofläche sind das 4-Sterne-Hotel mit Restaurant und allgemeinen Konferenzräumen.

Doppio Offices bieten das optimale Umfeld, um Menschen und Erfolg zu verbinden. Ein inspirierendes Ambiente, kreative Synergien und beste Arbeitsbedingungen bieten die Voraussetzungen. Besonderes Highlight sind die weithin sichtbaren Logos auf dem Dach sowie ausreichend Stellplätze.

Merkmale

  • Bezug: Nach Vereinbarung
  • 4. Geschoss
  • Personenaufzug
  • 15 Stellplätze: 15 Außen-Stellplätze
  • voll klimatisiert
-Kühlung über Bauteilaktivierung
-Beschattung / Sonnenschutz
-Heizung über Fernwärme
-Doppelboden
-Getrennte WC-Einheiten
-Lichtdurchflutete und helle Büroeinheiten
-Raumhöhen bis zu 3 Meter
-Stehleuchten und abgehängte Spiegelrasterleuchten

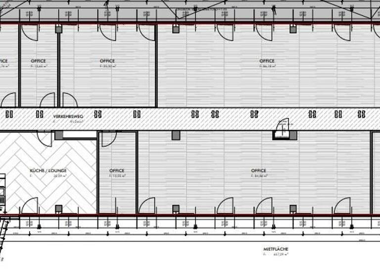
Grundrisse

Grundrisse
1 / 2

Bausubstanz und Energie

Möchtest du Details zum Energieverbrauch?info_energy_calculation-icon
  • EnergieträgerFernwärme
Immowelt logo

Mietkosten

Gesamtmiete
10.943,94 €
Nettokaltmiete
13 €/m²
6.774,82 €
Betriebskosten
2.345,13 €
Umsatzsteuer
1.823,99 €
Nicht in Gesamtmiete enthalten
Miete pro Stellplatz
120 €
Provision für Mieter
3 BMM zzgl. 20 % USt.
Kaution
3-6 BMM (bonitätsabhängig)
Weitere Preisinformationen
15 Stellplätze, Miete je: 120,00 EUR
Nettokaltmiete: 6.774,82 EUR

Lage

address-icon
Wien (1030)
Der Anbieter hat die genaue Adresse nicht freigegeben
Das Haus ist bestens an das öffentliche Verkehrsnetz angebunden. Hervorzuheben ist die S7 Station St. Marx - womit eine starke Anbindung an den Bahnhof Wien Mitte wie auch an den Flughafen Wien gegeben ist. Zudem ist die U-Bahn-Station der Linie U3 (Schlachthausgasse) fußläufig gut erreichbar.

Die Anbindung an das Straßennetz ist perfekt - über den Rennweg ist man in wenigen Minuten im Herzen der Stadt, über den Anschluss an die A23 aber auch unmittelbar an das Autobahnnetz angebunden. Für Mitarbeiter und Kunden sind Sie somit aus allen Himmelsrichtungen perfekt erreichbar!

Weitere Informationen

Stichworte Nutzfläche: 408,44 m², Bundesland: Wien, Mindestmietdauer: 5 Jahre

Weitere Services

Lust auf eine Besichtigung?
Eine Frage zur Immobilie?
Mit einer persönlichen Nachricht hast du bessere Chancen auf eine Antwort.
Mit der Nutzung der oben angegebenen Telefonnummer oder durch Klicken auf „Kontaktieren“ akzeptierst Du die Allgemeinen Nutzungsbedingungen, denen Du jederzeit widersprechen kannst. Weitere Informationen zum Datenschutz

Über den Anbieter

Riemergasse 8, 1010 WIEN
Herr Philipp Granabetter, BSc (WU) MADein Kontakt
Online-ID: 244YBY2N9KYA
Referenznummer: IVG-O-12505/4V1
Wie zufrieden bist du mit dieser Seite (nicht mit der Immobilie selbst)?