Einfamilienhaus zum Kauf • als Kapitalanlage geeignet
140000 €140.000 €
1.052 €/m²
6 Zimmer • 133 m² • 526 m² Grundstück
Großzügiges Haus mit Kamin, Wintergarten & Garten im Herzen von Klietz
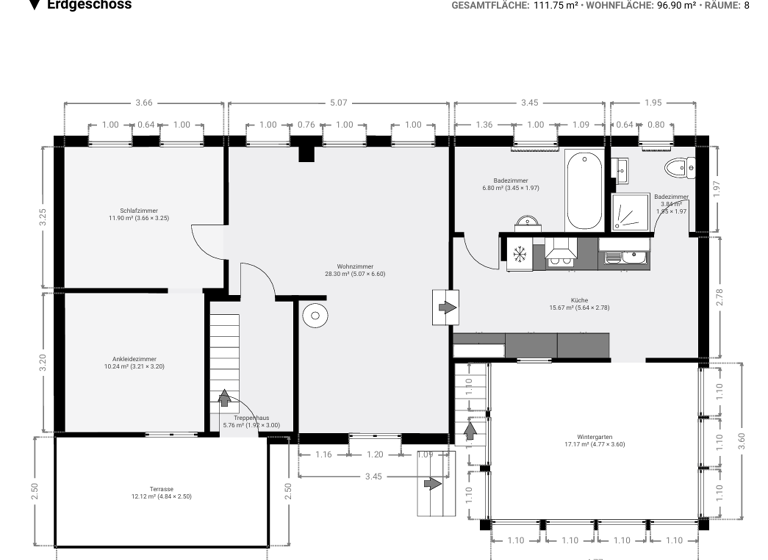
Dieses geräumige und lichtdurchflutete Einfamilienhaus in ruhiger, aber zentraler Lage von Klietz bietet mit ca. 133 m² Wohnfläche und einem über eine Auffahrt erreichbaren rund 526 m² großem Grundstück viel Platz für Familien, Paare oder Mehrgenerationswohnen. Das Haus überzeugt durch seine durchdachte Raumaufteilung, helle Zimmer, einen gemütlichen Kamin sowie einen schönen Wintergarten mit Blick ins Grüne.
Das im Ursprung 1977 errichtete Haus wurde 1995 vollständig neu aufgebaut und umfangreich modernisiert. Mit einer massiven Bauweise, 14 cm starker Dachdämmung und 10 cm Wanddämmung bietet es ein solides und energieeffizientes Zuhause.
Über den gefliesten Eingangsbereich mit Treppe zum Obergeschoß gelangen sie in den großzügigen Wohnbereich. Dieses Wohnzimmer besticht durch seine offene L-Form, sichtbare Holzbalken, helle Böden und den gemütlichen Kamin - der ideale Ort für entspannte Stunden.
Die Küche befindet sich leicht versetzt im Souterrain und ist über 2 Stufen vom Wohnzimmer aus erreichbar. Sie verfügt über eine moderne Einbauküche und schließt direkt an den Wintergarten an, der mit viel Tageslicht und direktem Zugang zum Garten bzw. Hof überzeugt - perfekt als Essbereich oder Ruheoase.
Im Erdgeschoss befinden sich zudem 2 Bäder - eines mit Dusche & WC, das Andere mit Badewanne. Beide Bäder sind von der Küche aus zugänglich.
Das Schlafzimmer im Erdgeschoß ist momentan durch eine Trockenbauwand getrennt. Die eine Seite könnte somit als Ankleidezimmer dienen, oder aber als 2. Schlafzimmer genutzt werden.
Das Dachgeschoss wurde vollständig bis zur Dachspitze ausgebaut.
Hier bietet das großzügige Treppenhaus ausreichend Stauraum oder Platz für ein Spiel oder Arbeitszimmer. Zudem finden sich im Dachgeschoß 2 weitere Schlafzimmer
( ideal als Kinder-, Gäste- oder Arbeitszimmer) sowie ein Badezimmer mit Badewanne und WC.
Das Haus ist in allen Räumen sehr hell und freundlich gestaltet, mit modernen Bodenbelägen, gepflegten Wänden und einer klaren Raumstruktur.
Das komplett umzäunte Grundstück umfasst ca. 526 m², bietet ausreichend Platz für Gartenliebhaber, Spielgeräte oder eine gemütliche Sitz- bzw. Grillecke im Grünen.
Merkmale
frei ab sofort
526 m² Grundstück
Einbauküche, offene Küche
Keller
Außen-Stellplatz
2 WCs
Garten
Terrasse
Grundrisse
Grundrisse
1 / 2
Realisiere Dein Projekt
Bausubstanz und Energie
Energieausweis
F
Baujahr1977
Letzte Modernisierung1995
Zustand der ImmobilieSaniert
Haustypk.A.
HeizungsartZentralheizung: Heizkörper, Ofen
EnergieträgerGas
Preisdetails
Kaufpreis
140000 €140.000 €
1.052 €/m²
Provision für Käufer
Der Nachweis/Vermittlung ist für den Käufer & Verkäufer provisionspflichtig und mit Kaufvertragsabschluss in Höhe von 3,57% (inklusive Mehrwertsteuer) vom Kaufpreis, an Christian Weps, Weps24, verdient und fällig.
Geschätzte Gesamtkosten
154.798 €1
Kaufpreis
140.000 €
Kaufnebenkosten
14.798 €
2
Notarkosten (1,5%)
2.100 €
Grunderwerbsteuer (5%)
7.000 €
Provision für Käufer (3,57%)
4.998 €
Grundbucheintrag (0,5%)
700 €
1Der angezeigte Wert ist eine automatisch berechnete Schätzung von immowelt.
2Bei den Angaben handelt es sich um ortsübliche Werte. Individuelle Kosten können abweichen.
Lage
Klietz (39524)
Der Anbieter hat die genaue Adresse nicht freigegeben
Das Haus befindet sich in Klietz, einem charmanten Ort in der Verbandsgemeinde Elbe-Havel-Land. Die Umgebung bietet einen gute Infrastruktur mit Einkaufsmöglichkeiten, Schule ( Grundschule "Am Wäldchen" ), Kindergarten ( Kita Storchennest ), Ärzten ( Ärztehaus und Hausarztpraxis ) und Freizeitangeboten.
Klietz liegt an der Bundesstraße 107, welche von Havelberg nach Genthin führt. Öffentlicher Nahverkehr ist vorhanden ( z. B. Buslinie 900 ).
Die nahegelegene Elbe, sowie weitläufige Wälder laden zu Spaziergängen, Radtouren und Erholung im Grünen ein.
Weitere Informationen
Ein gepflegtes, großzügiges und einladendes Haus, das sofort bezugsfertig ist und viel Platz für individuelle Wohnideen bietet - ideal für Familien oder alle, die das ruhige Leben auf dem Land in Kombination mit modernen Wohnkomfort genießen möchten.