Version: 8.22.4Navigation überspringen
19,90 €
Immowelt logo

Büro zur Miete
19,90 Euro pro Quadratmeter

Vienna Competence Center - moderne Büros samt Freiflächen

OBJEKTBESCHREIBUNG

Im 9. Wiener Gemeindebezirk gelegen, präsentiert sich das _Vienna Competence Center_ als modernes Büro- und Forschungsgebäude in prominenter Lage - direkt gegenüber dem Allgemeinen Krankenhaus. Das Erdgeschoss empfängt Besucher mit einer großzügigen, verglasten Eingangshalle, einem barrierefreien WC sowie einem zentral nutzbaren Konferenzraum. Auf insgesamt fünf Ebenen verteilen sich Labor- und Büroflächen, die primär auf Unternehmen und Institutionen aus Forschung, Wissenschaft und dem Life-Science-Sektor ausgerichtet sind. Durch die Lage im Herzen der "medizinischen Forschungsmeile" ist das Objekt besonders attraktiv für Mieter aus dem medizinischen Umfeld - wie etwa Ordinationen, Labore oder Gesundheitsdienstleister. Der neue MedUni Campus Mariannengasse ist zudem nur wenige Schritte entfernt.

Das Gebäude vereint somit hochwertige Infrastruktur für wissenschaftliche Einrichtungen mit den Anforderungen moderner Arbeitswelten. Die zur Verfügung stehende Fläche im 4. Obergeschoss zeichnet sich durch eine funktionale Raumaufteilung und einen klar strukturierten Grundriss aus. Die Fläche bietet einen einladenden Empfangsbereich, verschieden große Büro- und Besprechungsräume, eine Teeküche sowie getrennte WC-Anlagen. Durch die flexible Raumaufteilung lässt sich die Einheit gut an unterschiedliche Nutzungsbedürfnisse anpassen. Ein besonderes Highlight sind die vorhandenen Terrassenflächen, die zusätzlichen Freiraum schaffen und sich ideal für Pausen oder Besprechungen eignen.

Über die Hausverwaltung besteht zudem die Möglichkeit kostenfrei, einen 76m2 großen Seminarraum im 1. OG zu buchen.

Die angeführten Betriebskosten verstehen sich inkl. der Heiz- und Kühlkosten.

 

verfügbare Flächen:

* 4.OG - Top 1+2: ca. 866 m² (teilbar 366m²|500m²)
* 1.UG - Lagerfläche ca. 120m², Nettomiete 8,00€/m², BK: 6,44€/m²
* 23 TG-Stellplätze für mtl. € 125,00

 

AUSSTATTUNG IM ÜBERBLICK

* Repräsentative Lobby mit großem Eingangsbereich
* Zwei Besprechungsräume
* Voll ausgestattete Teeküche
* Parkettboden
* Zugfreie Kühlung mittels Kühlbalken
* IT-Infrastruktur und EDV-Verkabelung
* Separate Sanitäranlagen
* Hauseigener Konferenzraum
* Zwei Personenlifte
* öffenbare Fenster 
* Terrasse

 

LAGE UND VERKEHRSANBINDUNG

Die Liegenschaft befindet sich in direkter Nähe bedeutender medizinischer und akademischer Einrichtungen wie dem St. Anna Kinderspital, dem Allgemeinen Krankenhaus (AKH), der Wiener Privatklinik sowie der Privatklinik Goldenes Kreuz. Das Umfeld bietet darüber hinaus eine Vielzahl an gastronomischen Betrieben, Cafés und Einkaufsmöglichkeiten, wodurch der Standort sowohl infrastrukturell als auch hinsichtlich Lebensqualität überzeugt.

Dank der zentralen Lage im 9. Bezirk ist eine exzellente Anbindung an den öffentlichen Verkehr gegeben:

* U-Bahn: Linie U6 - Stationen Alser Straße / Michelbeuern AKH
* Straßenbahn: Linien 5, 33, 37, 38, 41

 

_Alle Preisangaben verstehen sich netto pro Monat, zzgl. der gesetzlichen Umsatzsteuer._

 

Infrastruktur / Entfernungen

Gesundheit
Arzt <250m
Apotheke <250m
Klinik <250m
Krankenhaus <250m

Kinder & Schulen
Schule <250m
Kindergarten <500m
Universität <250m
Höhere Schule <250m

Nahversorgung
Supermarkt <250m
Bäckerei <250m
Einkaufszentrum <1.250m

Sonstige
Geldautomat <250m
Bank <250m
Post <500m
Polizei <750m

Verkehr
Bus <250m
U-Bahn <500m
Straßenbahn <250m
Bahnhof <500m
Autobahnanschluss <2.750m

Angaben Entfernung Luftlinie / Quelle: OpenStreetMap

Merkmale

  • 4. Geschoss
  • Terrasse

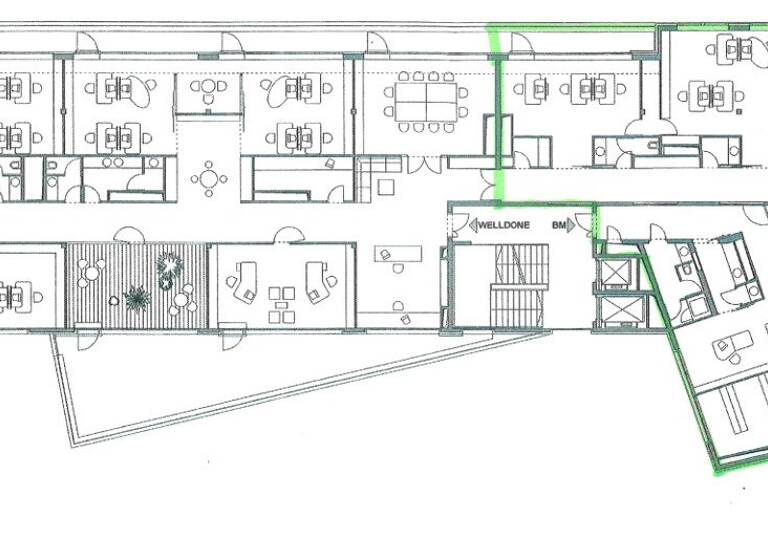
Grundrisse

Grundrisse
1 / 1

Realisiere Dein Projekt

Bausubstanz und Energie

Der Anbieter hat keine Informationen zu Energieverbrauch oder Zustand der Immobilie bereit gestellt.
Immowelt logo

Mietkosten

Nettokaltmiete
19,90 €/m²
17.234,40 €
Betriebskosten
5.577,36 €
Provision für Mieter
3 Bruttomonatsmieten zzgl. 20% USt.
Kaution
3-6 Bruttomonatsmieten
Weitere Preisinformationen
Nettokaltmiete: 17.234,40 EUR

Lage

address-icon
LazarettgasseWien (1090)

Weitere Informationen

Stichworte Nutzfläche: 866,05 m², Anzahl Terrassen: 1, Balkon-Terrassen-Fläche: 61,00 m², Bundesland: Wien

Weitere Services

Lust auf eine Besichtigung?
Eine Frage zur Immobilie?
Nachricht hinzufügen
Mit der Nutzung der oben angegebenen Telefonnummer oder durch Klicken auf „Kontaktieren“ akzeptierst Du die Allgemeinen Nutzungsbedingungen, denen Du jederzeit widersprechen kannst. Weitere Informationen zum Datenschutz

Über den Anbieter

Marc-Aurel-Straße 6/6, 1010 WIEN
partner badge
Partnerschaft
Herr Harald AnderlikDein Kontakt
Online-ID: 2l4rn52
Referenznummer: OBGC202508071254311123ee73b7d29
EDEX Immobilien GmbH
EDEX Immobilien GmbH
Bewertung: 5 von 5 Sternen
Nachricht hinzufügen
Mit der Nutzung der oben angegebenen Telefonnummer oder durch Klicken auf „Kontaktieren“ akzeptierst Du die Allgemeinen Nutzungsbedingungen, denen Du jederzeit widersprechen kannst. Weitere Informationen zum Datenschutz
Wie zufrieden bist du mit dieser Seite (nicht mit der Immobilie selbst)?