

Halle/Industriefläche zum Kauf2900000 €4.350 m² Lagerfläche
2900000 €
4.350 m² Lagerfläche
Multifunktionale Gewerbeimmobilie zum Kauf
Merkmale
- 6.109 m² Grundstück
- Außen-Stellplatz
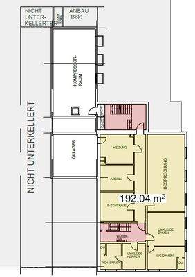
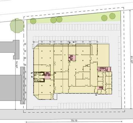
Grundrisse
Grundrisse
1 / 5
Realisiere Dein Projekt
Bausubstanz und Energie
Der Anbieter hat keine Informationen zum Energieverbrauch bereit gestellt.
- Baujahr1973
Preisdetails
Kaufpreis
2900000 €
Provision für Käufer
Das Maklerhonorar das vom Käufer zu zahlen ist beträgt 4,76 % des Kaufpreises.
Geschätzte Gesamtkosten
3.038.040 €1
Kaufpreis
2.900.000 €
Kaufnebenkosten
138.040 €
2Provision für Käufer (4,76%)
138.040 €
1Der angezeigte Wert ist eine automatisch berechnete Schätzung von immowelt.
2Bei den Angaben handelt es sich um ortsübliche Werte. Individuelle Kosten können abweichen.
Lage

Baiersdorf (91083)
Der Anbieter hat die genaue Adresse nicht freigegeben
Weitere Informationen
Weitere Services
Lust auf eine Besichtigung?
Eine Frage zur Immobilie?
Über den Anbieter
Schmidt Gewerbeimmobilien GmbH & Co. KGMaklerbüro
Nussbaumstraße 35, 91301 Forchheim
Partnerschaft

Herr Thomas SchmidtDein Kontakt
Online-ID: 2jebh5s
Referenznummer: 097


Schmidt Gewerbeimmobilien GmbH & Co. KG
Bewertung: 5 von 5 Sternen
Wie zufrieden bist du mit dieser Seite (nicht mit der Immobilie selbst)?

